|
|
|
| Larry Stein Oklahoma County Assessor (405) 713-1200 - Public Access System |
|
|
|
|
|
|
| Real Property Display - Screen Produced 2/27/2026 3:28:37 AM | ||||
|---|---|---|---|---|
| Account: R212401060 | Type: Residential | Location: |
16904 FOX TROT CT |
|
| Building Name/Occupant: |
|
CHOCTAW |
||
| Owner Name 1: | JENNINGS JOINT REV TRUST |
Parcel PIN#: |
1021-21-240-1060 |
|
| Owner Name 2: | 1/4 section #: |
1021 |
||
| Owner Name 3: | Parent Acct: |
1021-16-867-0430 |
||
| Billing Address: | 16904 FOX TROT CT | Tax District: |
|
|
| City, State, Zip | CHOCTAW, OK 73020-6966 | School System: |
Choctaw #4 |
|
|
Country: (If noted) |
Land Size: |
1.1900 Acres |
||
|
Land Value: 94,010 |
|
|||
|
Sect 6-T11N-R1E Qtr NE |
FOX HOLLOW OF CHOCTAW
Block
000
Lot
007
|
|||
| Full Legal Description: FOX HOLLOW OF CHOCTAW LOT 007 |
| Photo & Sketch (if available) | Comp Sales (ordered by relevancy) |
|
||||||||||||||||||
|
||||||||||||||||||||
| Value History (*The County Treasurer 405-713-1300 posts & collects actual tax amounts. Contact information HERE) | |||||||||||||
|---|---|---|---|---|---|---|---|---|---|---|---|---|---|
| Year | Market Value | Taxable Mkt Value | Gross Assessed | Exemption | Net Assessed | Millage | Est. Tax | Tax Savings | |||||
|
2025 |
603,500 |
603,500 |
66,385 |
1,000 |
65,385 |
117.21 |
$7,664 |
$117 |
|||||
|
2024 |
590,000 |
590,000 |
64,900 |
1,000 |
63,900 |
116.35 |
$7,435 |
$116 |
|||||
|
2023 |
597,500 |
470,767 |
51,783 |
0 |
51,783 |
118.06 |
$6,114 |
$1,646 |
|||||
|
2022 |
495,000 |
448,350 |
49,318 |
0 |
49,318 |
116.14 |
$5,728 |
$596 |
|||||
|
2021 |
427,000 |
427,000 |
46,970 |
0 |
46,970 |
116.17 |
$5,457 |
$0 |
|||||
| Property Account Status/Adjustments/Exemptions | ||
|---|---|---|
| Account # | Exemption Description | Amount |
|
R212401060 |
3% Cap Homestead |
0 |
|
R212401060 |
Homestead |
1,000 |
| Property Deed Transaction History (Recorded in the County Clerk's Office) | |||||||
|---|---|---|---|---|---|---|---|
| Date | Type | Book | Page | Price | Grantor | Grantee | |
|
8/25/2023 |
|
Deeds |
$600,000 |
SIRVA RELOCATION CREDIT LLC |
JENNINGS JOINT REV TRUST |
||
|
8/11/2023 |
|
Deeds |
$600,000 |
CISPER DENNIS E & CAROL J REV TRUST |
SIRVA RELOCATION CREDIT LLC |
||
|
9/30/2022 |
|
Deeds |
$0 |
CISPER DENNIS E & CAROL J |
CISPER DENNIS E & CAROL J REV TRUST |
||
|
12/18/2015 |
|
Deeds |
$408,500 |
CISPER DENNIS E & CAROL J S W M & SONS INC |
CISPER DENNIS E & CAROL J |
||
|
7/8/2015 |
|
Deeds |
$57,000 |
FOX HOLLOW PROPERTIES LLC |
CISPER DENNIS E & CAROL J S W M & SONS INC |
||
| Last Mailed Notice of Value (N.O.V.) Information/History | ||||||||
|---|---|---|---|---|---|---|---|---|
| Year | Date | Market Value | Taxable Market Value | Gross Assessed | Exemption | Net Assessed | ||
|
2026 |
02/06/2026 |
635,500 |
621,605 |
68,376 |
1,000 |
67,376 |
||
|
2025 |
01/31/2025 |
603,500 |
603,500 |
66,385 |
1,000 |
65,385 |
||
|
2024 |
01/22/2024 |
590,000 |
590,000 |
64,900 |
1,000 |
63,900 |
||
|
2023 |
01/23/2023 |
597,500 |
470,767 |
51,783 |
0 |
51,783 |
||
|
2022 |
02/22/2022 |
495,000 |
448,350 |
49,318 |
0 |
49,318 |
||
| Property Building Permit History | ||||||
|---|---|---|---|---|---|---|
| Issued | Permit # | Provided by | Bldg # | Description | Est Construction Cost | Status |
|
3/25/2016 |
10482902 |
CHOCTAW |
1 |
Swimming Pool |
30,000 |
Inactive |
|
6/25/2015 |
10473791 |
CHOCTAW |
1 |
Main Dwellin |
325,875 |
Inactive |
| Click button on building number to access detailed information: | ||||||
|---|---|---|---|---|---|---|
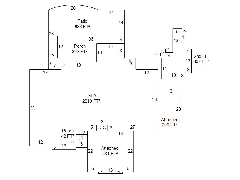
| Bldg # | Vacant/Improved Land | Bldg Description | Year Built | SqFt | # Stories | |
|
1 |
Improved |
1½ Story Fin |
2015 |
3,126 |
1.5 Stories |
|