|
|
|
| Larry Stein Oklahoma County Assessor (405) 713-1200 - Public Access System |
|
|
|
|
|
|
| Real Property Display - Screen Produced 3/30/2026 7:07:16 AM | ||||
|---|---|---|---|---|
| Account: R212881230 | Type: Residential | Location: |
7301 NW 149TH ST |
|
| Building Name/Occupant: |
|
OKLAHOMA CITY |
||
| Owner Name 1: | MOATE JOSEPH & JULIIA |
Parcel PIN#: |
3829-21-288-1230 |
|
| Owner Name 2: | 1/4 section #: |
3829 |
||
| Owner Name 3: | Parent Acct: |
3829-14-952-1015 |
||
| Billing Address: | 7301 NW 149TH ST | Tax District: |
|
|
| City, State, Zip | OKLAHOMA CITY, OK 73142-7857 | School System: |
Deer Creek #6 |
|
|
Country: (If noted) |
Land Size: |
0.1717 Acres |
||
|
Land Value: 51,975 |
|
|||
|
Sect 8-T13N-R4W Qtr NE |
FALLING SPRINGS SEC 1
Block
003
Lot
009
|
|||
| Full Legal Description: FALLING SPRINGS SEC 1 003 009 |
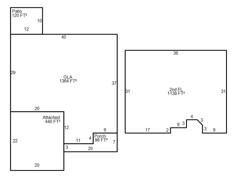
| Photo & Sketch (if available) | Comp Sales (ordered by relevancy) |
|
||||||||||||||||||
|
||||||||||||||||||||
| Value History (*The County Treasurer 405-713-1300 posts & collects actual tax amounts. Contact information HERE) | |||||||||||||
|---|---|---|---|---|---|---|---|---|---|---|---|---|---|
| Year | Market Value | Taxable Mkt Value | Gross Assessed | Exemption | Net Assessed | Millage | Est. Tax | Tax Savings | |||||
|
2026 |
359,000 |
359,000 |
39,490 |
1,000 |
38,490 |
129.51 |
$4,985 |
$130 |
|||||
|
2025 |
354,500 |
354,500 |
38,995 |
1,000 |
37,995 |
129.51 |
$4,921 |
$130 |
|||||
|
2024 |
357,000 |
357,000 |
39,270 |
1,000 |
38,270 |
131.12 |
$5,018 |
$131 |
|||||
|
2023 |
343,500 |
268,263 |
29,508 |
1,000 |
28,508 |
131.55 |
$3,750 |
$1,220 |
|||||
|
2022 |
317,500 |
260,450 |
28,649 |
1,000 |
27,649 |
130.27 |
$3,602 |
$948 |
|||||
| Property Account Status/Adjustments/Exemptions | ||
|---|---|---|
| Account # | Exemption Description | Amount |
|
R212881230 |
3% Cap Homestead |
0 |
|
R212881230 |
Homestead |
1,000 |
| Property Deed Transaction History (Recorded in the County Clerk's Office) | |||||||
|---|---|---|---|---|---|---|---|
| Date | Type | Book | Page | Price | Grantor | Grantee | |
|
4/16/2024 |
|
Deeds |
$335,000 |
CARTUS FINANCIAL CORPORATION |
MOATE JOSEPH |
||
|
4/16/2024 |
|
Hmstd Off & |
$0 |
CARTUS FINANCIAL CORPORATION |
MOATE JOSEPH & JULIIA |
||
|
9/15/2023 |
|
Deeds |
$335,000 |
GRIFFIN AARON & DOREE L |
CARTUS FINANCIAL CORPORATION |
||
|
2/19/2016 |
|
Deeds |
$230,000 |
D R HORTON TEXAS LTD |
GRIFFIN AARON & DOREE L |
||
| Last Mailed Notice of Value (N.O.V.) Information/History | ||||||||
|---|---|---|---|---|---|---|---|---|
| Year | Date | Market Value | Taxable Market Value | Gross Assessed | Exemption | Net Assessed | ||
|
2026 |
02/23/2026 |
359,000 |
359,000 |
39,490 |
1,000 |
38,490 |
||
|
2024 |
02/13/2024 |
357,000 |
276,310 |
30,393 |
1,000 |
29,393 |
||
|
2024 |
05/10/2024 |
357,000 |
357,000 |
39,270 |
1,000 |
38,270 |
||
|
2023 |
02/14/2023 |
343,500 |
268,263 |
29,508 |
1,000 |
28,508 |
||
|
2022 |
03/15/2022 |
317,500 |
260,450 |
28,649 |
1,000 |
27,649 |
||
| Property Building Permit History | ||||||
|---|---|---|---|---|---|---|
| Issued | Permit # | Provided by | Bldg # | Description | Est Construction Cost | Status |
|
3/19/2015 |
10472707 |
OKLAHOMA CITY |
1 |
Main Dwellin |
156,250 |
Inactive |
| Click button on building number to access detailed information: | ||||||
|---|---|---|---|---|---|---|
| Bldg # | Vacant/Improved Land | Bldg Description | Year Built | SqFt | # Stories | |
|
1 |
Improved |
2 Story |
2015 |
2,502 |
2 Stories |
|