|
|
|
| Larry Stein Oklahoma County Assessor (405) 713-1200 - Public Access System |
|
|
|
|
|
|
| Real Property Display - Screen Produced 3/16/2026 8:34:02 PM | ||||
|---|---|---|---|---|
| Account: R113271870 | Type: Residential | Location: |
3028 PARKER DR |
|
| Building Name/Occupant: |
|
OKLAHOMA CITY |
||
| Owner Name 1: | LMRK OWNER I LLC |
Parcel PIN#: |
1475-11-327-1870 |
|
| Owner Name 2: | 1/4 section #: |
1475 |
||
| Owner Name 3: | Parent Acct: |
|
||
| Billing Address: | 345 HERITAGE AVE, Unit 130 | Tax District: |
|
|
| City, State, Zip | PORTSMOUTH, NH 03802-3809 | School System: |
Oklahoma City #89 |
|
|
Country: (If noted) |
Land Size: |
0.1553 Acres |
||
|
Land Value: 11,839 |
|
|||
|
Sect 19-T11N-R2W Qtr SW |
OAKCLIFF SEC 4
Block
031
Lot
005
|
|||
| Full Legal Description: OAKCLIFF SEC 4 031 005 |
| Photo & Sketch (if available) | Comp Sales (ordered by relevancy) |
|
||||||||||||||||||
|
||||||||||||||||||||
| Value History (*The County Treasurer 405-713-1300 posts & collects actual tax amounts. Contact information HERE) | |||||||||||||
|---|---|---|---|---|---|---|---|---|---|---|---|---|---|
| Year | Market Value | Taxable Mkt Value | Gross Assessed | Exemption | Net Assessed | Millage | Est. Tax | Tax Savings | |||||
|
2025 |
129,000 |
129,000 |
14,190 |
0 |
14,190 |
122.90 |
$1,744 |
$0 |
|||||
|
2024 |
87,500 |
73,316 |
8,064 |
0 |
8,064 |
123.89 |
$999 |
$193 |
|||||
|
2023 |
77,000 |
69,825 |
7,680 |
0 |
7,680 |
122.82 |
$943 |
$97 |
|||||
|
2022 |
66,500 |
66,500 |
7,315 |
0 |
7,315 |
117.63 |
$860 |
$0 |
|||||
|
2021 |
52,500 |
49,875 |
5,486 |
0 |
5,486 |
117.70 |
$646 |
$34 |
|||||
| Property Account Status/Adjustments/Exemptions | ||
|---|---|---|
| Account # | Exemption Description | Amount |
|
R113271870 |
5% Capped Account |
0 |
| Property Deed Transaction History (Recorded in the County Clerk's Office) | ||||||||||
|---|---|---|---|---|---|---|---|---|---|---|
| Date | Type | Book | Page | Price | Grantor | Grantee | ||||
|
11/12/2025 |
|
Hmstd Off & |
$0 |
TH PROPERTY OWNER I LLC |
LMRK OWNER I LLC |
|||||
|
6/25/2024 |
|
Deeds |
$123,000 |
SANCHEZ MIRIAM YANET |
TH PROPERTY OWNER I LLC |
|||||
|
6/29/2021 |
|
Deeds |
$70,000 |
HOLDER ROBERT L & RUTH B |
SANCHEZ MIRIAM YANET |
|||||
|
4/10/2005 |
|
Deeds |
$0 |
ADAMS DONNA M |
HOLDER ROBERT L & RUTH B |
|||||
|
10/29/2004 |
|
Deeds |
$40,000 |
ADAMS RICK RAY ADAMS DONNA MAE |
HOLDER ROBERT & RUTH REV FAMILY TRUST ADAMS DONNA MAE |
|||||
| Last Mailed Notice of Value (N.O.V.) Information/History | ||||||||
|---|---|---|---|---|---|---|---|---|
| Year | Date | Market Value | Taxable Market Value | Gross Assessed | Exemption | Net Assessed | ||
|
2026 |
02/06/2026 |
129,500 |
129,500 |
14,245 |
0 |
14,245 |
||
|
2025 |
01/31/2025 |
129,000 |
129,000 |
14,190 |
0 |
14,190 |
||
|
2024 |
01/22/2024 |
87,500 |
73,316 |
8,064 |
0 |
8,064 |
||
|
2023 |
01/23/2023 |
77,000 |
69,825 |
7,680 |
0 |
7,680 |
||
|
2022 |
02/22/2022 |
66,500 |
66,500 |
7,315 |
0 |
7,315 |
||
| Property Building Permit History | |||||||||||
|---|---|---|---|---|---|---|---|---|---|---|---|
| Issued | Permit # | Provided by | Bldg # | Description | Est Construction Cost | Status | |||||
| No Building Permit records returned. | |||||||||||
| Click button on building number to access detailed information: | ||||||
|---|---|---|---|---|---|---|
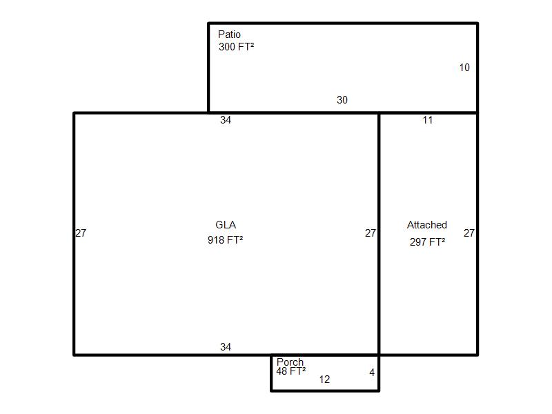
| Bldg # | Vacant/Improved Land | Bldg Description | Year Built | SqFt | # Stories | |
|
1 |
Improved |
Ranch 1 Story |
1969 |
918 |
1 Stories |
|