|
|
|
| Larry Stein Oklahoma County Assessor (405) 713-1200 - Public Access System |
|
|
|
|
|
|
| Real Property Display - Screen Produced 3/16/2026 12:51:25 PM | ||||
|---|---|---|---|---|
| Account: R115251390 | Type: Residential | Location: |
3208 SE 54TH ST |
|
| Building Name/Occupant: |
|
OKLAHOMA CITY |
||
| Owner Name 1: | KETCHUM BRITNEY N |
Parcel PIN#: |
1475-11-525-1390 |
|
| Owner Name 2: | 1/4 section #: |
1475 |
||
| Owner Name 3: | Parent Acct: |
|
||
| Billing Address: | 3208 SE 54TH ST | Tax District: |
|
|
| City, State, Zip | OKLAHOMA CITY, OK 73135-1444 | School System: |
Oklahoma City #89 |
|
|
Country: (If noted) |
Land Size: |
0.1540 Acres |
||
|
Land Value: 11,743 |
|
|||
|
Sect 19-T11N-R2W Qtr SW |
OAKCLIFF SEC 8
Block
032
Lot
014
|
|||
| Full Legal Description: OAKCLIFF SEC 8 032 014 |
| Photo & Sketch (if available) | Comp Sales (ordered by relevancy) |
|
||||||||||||||||||
|
||||||||||||||||||||
| Value History (*The County Treasurer 405-713-1300 posts & collects actual tax amounts. Contact information HERE) | |||||||||||||
|---|---|---|---|---|---|---|---|---|---|---|---|---|---|
| Year | Market Value | Taxable Mkt Value | Gross Assessed | Exemption | Net Assessed | Millage | Est. Tax | Tax Savings | |||||
|
2025 |
147,000 |
147,000 |
16,170 |
0 |
16,170 |
122.90 |
$1,987 |
$0 |
|||||
|
2024 |
123,000 |
79,380 |
8,731 |
0 |
8,731 |
123.89 |
$1,082 |
$594 |
|||||
|
2023 |
106,500 |
75,600 |
8,316 |
0 |
8,316 |
122.82 |
$1,021 |
$417 |
|||||
|
2022 |
72,000 |
72,000 |
7,920 |
0 |
7,920 |
117.63 |
$932 |
$0 |
|||||
|
2021 |
75,000 |
75,000 |
8,250 |
0 |
8,250 |
117.70 |
$971 |
$0 |
|||||
| Property Account Status/Adjustments/Exemptions | ||
|---|---|---|
| Account # | Exemption Description | Amount |
|
R115251390 |
5% Capped Account |
0 |
| Property Deed Transaction History (Recorded in the County Clerk's Office) | ||||||||||
|---|---|---|---|---|---|---|---|---|---|---|
| Date | Type | Book | Page | Price | Grantor | Grantee | ||||
|
10/4/2024 |
|
Deeds |
$175,000 |
HOME REVIVAL OKC LLC |
KETCHUM BRITNEY N |
|||||
|
7/17/2024 |
|
Deeds |
$105,000 |
ATHENON PROPERTIES LLC |
HOME REVIVAL OKC LLC |
|||||
|
1/10/2020 |
|
Hmstd Off & |
$0 |
SIVETS PATRICK |
ATHENON PROPERTIES LLC |
|||||
|
1/8/2020 |
|
Hmstd Off & |
$0 |
ATHENON PROPERTIES LLC |
SIVETS PATRICK |
|||||
|
7/15/2019 |
|
Deeds |
$75,000 |
STANDARD PROPERTIES INVESTMENTS LLC |
ATHENON PROPERTIES LLC |
|||||
| Last Mailed Notice of Value (N.O.V.) Information/History | ||||||||
|---|---|---|---|---|---|---|---|---|
| Year | Date | Market Value | Taxable Market Value | Gross Assessed | Exemption | Net Assessed | ||
|
2026 |
02/06/2026 |
148,500 |
148,500 |
16,335 |
0 |
16,335 |
||
|
2025 |
01/31/2025 |
147,000 |
147,000 |
16,170 |
0 |
16,170 |
||
|
2024 |
01/22/2024 |
123,000 |
79,380 |
8,731 |
0 |
8,731 |
||
|
2023 |
01/23/2023 |
106,500 |
75,600 |
8,316 |
0 |
8,316 |
||
|
2021 |
02/24/2021 |
75,000 |
75,000 |
8,250 |
0 |
8,250 |
||
| Property Building Permit History | |||||||||||
|---|---|---|---|---|---|---|---|---|---|---|---|
| Issued | Permit # | Provided by | Bldg # | Description | Est Construction Cost | Status | |||||
| No Building Permit records returned. | |||||||||||
| Click button on building number to access detailed information: | ||||||
|---|---|---|---|---|---|---|
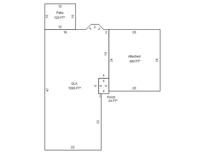
| Bldg # | Vacant/Improved Land | Bldg Description | Year Built | SqFt | # Stories | |
|
1 |
Improved |
Ranch 1 Story |
1972 |
1,095 |
1 Stories |
|