|
|
|
| Larry Stein Oklahoma County Assessor (405) 713-1200 - Public Access System |
|
|
|
|
|
|
| Real Property Display - Screen Produced 4/12/2026 1:15:02 PM | ||||
|---|---|---|---|---|
| Account: R214741070 | Type: Residential | Location: |
9301 FARMHOUSE LN |
|
| Building Name/Occupant: |
|
EDMOND |
||
| Owner Name 1: | LACY CHRIS W |
Parcel PIN#: |
4497-21-474-1070 |
|
| Owner Name 2: | LACY ASHLEY SUMMER | 1/4 section #: |
4497 |
|
| Owner Name 3: | Parent Acct: |
4497-16-863-4060 |
||
| Billing Address: | 9301 FARMHOUSE LN | Tax District: |
|
|
| City, State, Zip | ARCADIA, OK 73007-9560 | School System: |
Edmond #12 |
|
|
Country: (If noted) |
Land Size: |
1.4300 Acres |
||
|
Land Value: 225,797 |
|
|||
|
Sect 25-T14N-R2W Qtr NE |
THE PRAIRIE AT POST
Block
000
Lot
008
|
|||
| Full Legal Description: THE PRAIRIE AT POST 000 008 |
| Photo & Sketch (if available) | Comp Sales (ordered by relevancy) |
|
||||||||||||||||||
|
||||||||||||||||||||
| Value History (*The County Treasurer 405-713-1300 posts & collects actual tax amounts. Contact information HERE) | |||||||||||||
|---|---|---|---|---|---|---|---|---|---|---|---|---|---|
| Year | Market Value | Taxable Mkt Value | Gross Assessed | Exemption | Net Assessed | Millage | Est. Tax | Tax Savings | |||||
|
2026 |
2,182,000 |
2,182,000 |
240,020 |
1,000 |
239,020 |
105.16 |
$25,135 |
$105 |
|||||
|
2025 |
2,383,500 |
2,383,500 |
262,185 |
0 |
262,185 |
105.16 |
$27,571 |
$0 |
|||||
|
2024 |
2,388,500 |
2,341,705 |
257,587 |
1,000 |
256,587 |
105.03 |
$26,949 |
$646 |
|||||
|
2023 |
2,273,500 |
2,273,500 |
250,085 |
1,000 |
249,085 |
104.24 |
$25,965 |
$104 |
|||||
|
2022 |
1,587,500 |
1,587,500 |
174,625 |
1,000 |
173,625 |
104.64 |
$18,168 |
$105 |
|||||
| Property Account Status/Adjustments/Exemptions | ||
|---|---|---|
| Account # | Exemption Description | Amount |
|
R214741070 |
3% Cap Homestead |
0 |
|
R214741070 |
Homestead |
1,000 |
| Property Deed Transaction History (Recorded in the County Clerk's Office) | ||||||||||
|---|---|---|---|---|---|---|---|---|---|---|
| Date | Type | Book | Page | Price | Grantor | Grantee | ||||
|
10/31/2024 |
|
Deeds |
$2,350,000 |
JARWIN BLAKE |
LACY CHRIS W |
|||||
|
8/18/2022 |
|
Deeds |
$2,215,000 |
WEICHERT WORKFORCE MOBILITY INC |
JARWIN BLAKE |
|||||
|
6/9/2022 |
|
Deeds |
$2,215,000 |
FINNEY PATRICK L & AMY ORDOYNE TRS |
WEICHERT WORKFORCE MOBILITY INC |
|||||
|
10/11/2019 |
|
Deeds |
$0 |
FIVE FINNS TRUST |
FINNEY PATRICK L & AMY ORDOYNE TRS |
|||||
|
10/11/2019 |
|
Deeds |
$0 |
FINNEY PATRICK L & AMY |
FIVE FINNS TRUST |
|||||
| Last Mailed Notice of Value (N.O.V.) Information/History | ||||||||
|---|---|---|---|---|---|---|---|---|
| Year | Date | Market Value | Taxable Market Value | Gross Assessed | Exemption | Net Assessed | ||
|
2025 |
01/31/2025 |
2,383,500 |
2,383,500 |
262,185 |
0 |
262,185 |
||
|
2024 |
01/22/2024 |
2,388,500 |
2,341,705 |
257,587 |
1,000 |
256,587 |
||
|
2023 |
01/23/2023 |
2,273,500 |
2,273,500 |
250,085 |
0 |
250,085 |
||
|
2020 |
02/21/2020 |
1,649,500 |
1,649,500 |
181,445 |
1,000 |
180,445 |
||
|
2019 |
02/26/2019 |
1,662,000 |
1,609,699 |
177,067 |
1,000 |
176,067 |
||
| Property Building Permit History | ||||||
|---|---|---|---|---|---|---|
| Issued | Permit # | Provided by | Bldg # | Description | Est Construction Cost | Status |
|
1/9/2018 |
|
|
|
Swimming Pool |
145,000 |
Inactive |
|
7/21/2017 |
10495217 |
EDMOND |
1 |
Cabana |
48,000 |
Inactive |
|
4/26/2017 |
10496336 |
EDMOND |
1 |
Main Dwellin |
1,050,000 |
Inactive |
| Click button on building number to access detailed information: | ||||||
|---|---|---|---|---|---|---|
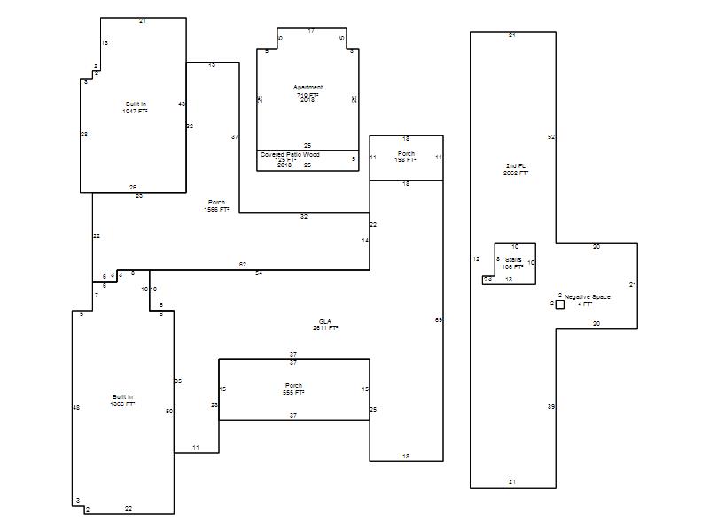
| Bldg # | Vacant/Improved Land | Bldg Description | Year Built | SqFt | # Stories | |
|
1 |
Improved |
2 Story |
2017 |
5,273 |
2 Stories |
|