|
|
|
| Larry Stein Oklahoma County Assessor (405) 713-1200 - Public Access System |
|
|
|
|
|
|
| Real Property Display - Screen Produced 4/1/2026 12:37:20 AM | ||||
|---|---|---|---|---|
| Account: R216091070 | Type: Residential | Location: |
842 NW 72ND ST |
|
| Building Name/Occupant: |
|
OKLAHOMA CITY |
||
| Owner Name 1: | SPILMAN DIANE TERESA & RONALD CHARLES |
Parcel PIN#: |
2616-21-609-1070 |
|
| Owner Name 2: | 1/4 section #: |
2616 |
||
| Owner Name 3: | Parent Acct: |
2616-13-296-4300 |
||
| Billing Address: | 842 NW 72ND ST | Tax District: |
|
|
| City, State, Zip | OKLAHOMA CITY, OK 73116-7104 | School System: |
Oklahoma City #89 |
|
|
Country: (If noted) |
Land Size: |
0.1355 Acres |
||
|
Land Value: 174,056 |
|
|||
|
Sect 4-T12N-R3W Qtr NW |
WILSHIRE POINT
Block
002
Lot
006
|
|||
| Full Legal Description: WILSHIRE POINT BLK 002 LOT 006 |
| Photo & Sketch (if available) | Comp Sales (ordered by relevancy) |
|
||||||||||||||||||
|
||||||||||||||||||||
| Value History (*The County Treasurer 405-713-1300 posts & collects actual tax amounts. Contact information HERE) | |||||||||||||
|---|---|---|---|---|---|---|---|---|---|---|---|---|---|
| Year | Market Value | Taxable Mkt Value | Gross Assessed | Exemption | Net Assessed | Millage | Est. Tax | Tax Savings | |||||
|
2026 |
911,000 |
901,250 |
99,137 |
1,000 |
98,137 |
122.90 |
$12,061 |
$255 |
|||||
|
2025 |
875,000 |
875,000 |
96,250 |
1,000 |
95,250 |
122.90 |
$11,706 |
$123 |
|||||
|
2024 |
867,500 |
729,328 |
80,225 |
1,000 |
79,225 |
123.89 |
$9,815 |
$2,007 |
|||||
|
2023 |
864,000 |
708,086 |
77,888 |
1,000 |
76,888 |
122.82 |
$9,444 |
$2,229 |
|||||
|
2022 |
730,000 |
687,463 |
75,620 |
1,000 |
74,620 |
117.63 |
$8,778 |
$668 |
|||||
| Property Account Status/Adjustments/Exemptions | ||
|---|---|---|
| Account # | Exemption Description | Amount |
|
R216091070 |
3% Cap Homestead |
0 |
|
R216091070 |
Homestead |
1,000 |
| Property Deed Transaction History (Recorded in the County Clerk's Office) | |||||||
|---|---|---|---|---|---|---|---|
| Date | Type | Book | Page | Price | Grantor | Grantee | |
|
3/25/2024 |
|
Deeds |
$875,000 |
STALLINGS GEOFFREY |
SPILMAN DIANE TERESA & RONALD CHARLES |
||
|
8/26/2019 |
|
Deeds |
$635,500 |
BURLINGTON CROSSING LLC |
STALLINGS GEOFFREY |
||
|
9/10/2015 |
|
Mult Parcel |
$2,200,000 |
CHESAPEAKE LAND DEVEL CO LLC FKA CHESAPEAKE LAND COMPANY LLC |
BURLINGTON CROSSING LLC |
||
| Last Mailed Notice of Value (N.O.V.) Information/History | ||||||||
|---|---|---|---|---|---|---|---|---|
| Year | Date | Market Value | Taxable Market Value | Gross Assessed | Exemption | Net Assessed | ||
|
2026 |
02/23/2026 |
911,000 |
901,250 |
99,137 |
1,000 |
98,137 |
||
|
2025 |
02/14/2025 |
949,500 |
949,500 |
104,445 |
1,000 |
103,445 |
||
|
2024 |
02/13/2024 |
867,500 |
729,328 |
80,225 |
1,000 |
79,225 |
||
|
2023 |
02/14/2023 |
864,000 |
708,086 |
77,888 |
1,000 |
76,888 |
||
|
2022 |
03/15/2022 |
730,000 |
687,463 |
75,620 |
1,000 |
74,620 |
||
| Property Building Permit History | ||||||
|---|---|---|---|---|---|---|
| Issued | Permit # | Provided by | Bldg # | Description | Est Construction Cost | Status |
|
7/24/2019 |
|
|
1 |
Swimming Pool |
50,000 |
Inactive |
|
2/13/2019 |
|
|
|
Main Dwellin |
356,000 |
Inactive |
| Click button on building number to access detailed information: | ||||||
|---|---|---|---|---|---|---|
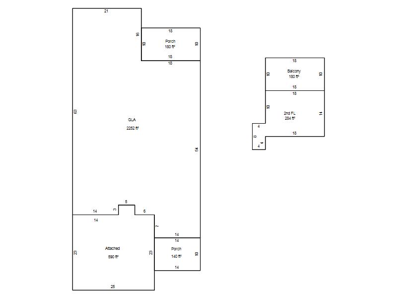
| Bldg # | Vacant/Improved Land | Bldg Description | Year Built | SqFt | # Stories | |
|
1 |
Improved |
1½ Story Fin |
2019 |
2,536 |
1.5 Stories |
|