|
|
|
| Larry Stein Oklahoma County Assessor (405) 713-1200 - Public Access System |
|
|
|
|
|
|
| Real Property Display - Screen Produced 4/6/2026 7:15:20 AM | ||||
|---|---|---|---|---|
| Account: R217341650 | Type: Residential | Location: |
5109 MONTFORD WAY |
|
| Building Name/Occupant: |
|
OKLAHOMA CITY |
||
| Owner Name 1: | WILSON ATUEAYU |
Parcel PIN#: |
1296-21-734-1650 |
|
| Owner Name 2: | WILSON KALEI | 1/4 section #: |
1296 |
|
| Owner Name 3: | Parent Acct: |
|
||
| Billing Address: | 5109 MONTFORD WAY | Tax District: |
|
|
| City, State, Zip | CHOCTAW, OK 73020-2170 | School System: |
Choctaw #4 |
|
|
Country: (If noted) |
Land Size: |
0.7527 Acres |
||
|
Land Value: 81,970 |
|
|||
|
Sect 24-T11N-R1W Qtr NW |
ASHEVILLE PH V
Block
018
Lot
007
|
|||
| Full Legal Description: ASHEVILLE PH V BLK 018 LOT 007 |
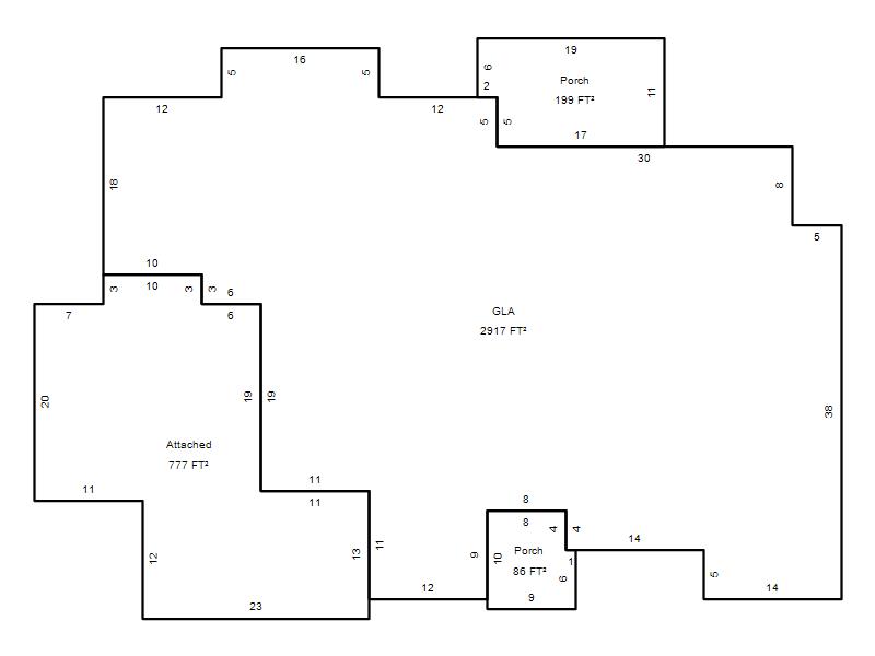
| Photo & Sketch (if available) | Comp Sales (ordered by relevancy) |
|
||||||||||||||||||
|
||||||||||||||||||||
| Value History (*The County Treasurer 405-713-1300 posts & collects actual tax amounts. Contact information HERE) | |||||||||||||
|---|---|---|---|---|---|---|---|---|---|---|---|---|---|
| Year | Market Value | Taxable Mkt Value | Gross Assessed | Exemption | Net Assessed | Millage | Est. Tax | Tax Savings | |||||
|
2026 |
515,500 |
505,730 |
55,630 |
55,630 |
0 |
132.37 |
$0 |
$7,506 |
|||||
|
2025 |
491,000 |
491,000 |
54,010 |
54,010 |
0 |
132.37 |
$0 |
$7,149 |
|||||
|
2024 |
6,701 |
6,701 |
737 |
307 |
430 |
131.28 |
$56 |
$40 |
|||||
|
2023 |
6,701 |
6,701 |
737 |
0 |
737 |
131.88 |
$97 |
$0 |
|||||
|
2022 |
6,701 |
6,701 |
737 |
0 |
737 |
130.63 |
$96 |
$0 |
|||||
| Property Account Status/Adjustments/Exemptions | ||
|---|---|---|
| Account # | Exemption Description | Amount |
|
R217341650 |
3% Cap Homestead |
0 |
|
R217341650 |
100% DAV Exemption |
100 |
|
R217341650 |
DAV Homestead |
0 |
| Property Deed Transaction History (Recorded in the County Clerk's Office) | |||||||
|---|---|---|---|---|---|---|---|
| Date | Type | Book | Page | Price | Grantor | Grantee | |
|
2/24/2026 |
|
Deeds |
$0 |
WILSON ATUEAYU D & KALEI A CO TRS |
WILSON ATUEAYU |
||
|
10/18/2024 |
|
Deeds |
$0 |
WILSON ATUEAYU D |
WILSON ATUEAYU D & KALEI A CO TRS |
||
|
8/21/2024 |
|
Deeds |
$490,000 |
NU HOMES OF OKLAHOMA LLC |
WILSON ATUEAYU D |
||
|
5/26/2021 |
|
Deeds |
$65,000 |
TD INVESTMENTS LLC |
NU HOMES OF OKLAHOMA LLC |
||
|
3/21/2008 |
|
Mult Parcel |
$1,400,000 |
SOUTHEAST DEVELOPERS INC |
TD INVESTMENTS LLC |
||
| Last Mailed Notice of Value (N.O.V.) Information/History | ||||||
|---|---|---|---|---|---|---|
| Year | Date | Market Value | Taxable Market Value | Gross Assessed | Exemption | Net Assessed |
|
2026 |
02/06/2026 |
515,500 |
505,730 |
55,630 |
55,630 |
0 |
|
2026 |
03/30/2026 |
515,500 |
505,730 |
55,630 |
55,630 |
0 |
|
2025 |
01/31/2025 |
491,000 |
491,000 |
54,010 |
54,010 |
0 |
|
2021 |
02/24/2021 |
6,701 |
6,701 |
737 |
0 |
737 |
| Property Building Permit History | ||||||
|---|---|---|---|---|---|---|
| Issued | Permit # | Provided by | Bldg # | Description | Est Construction Cost | Status |
|
8/5/2021 |
BLDR-2021-03215 |
|
|
Main Dwellin |
200,410 |
Inactive |
| Click button on building number to access detailed information: | ||||||
|---|---|---|---|---|---|---|
| Bldg # | Vacant/Improved Land | Bldg Description | Year Built | SqFt | # Stories | |
|
1 |
Improved |
Ranch 1 Story |
2022 |
2,917 |
1 Stories |
|