|
|
|
| Larry Stein Oklahoma County Assessor (405) 713-1200 - Public Access System |
|
|
|
|
|
|
| Real Property Display - Screen Produced 3/14/2026 3:33:58 AM | ||||
|---|---|---|---|---|
| Account: R149011480 | Type: Residential | Location: |
5301 RYAN CT |
|
| Building Name/Occupant: |
|
OKLAHOMA CITY |
||
| Owner Name 1: | HAMEL LANDON BRYCE |
Parcel PIN#: |
1478-14-901-1480 |
|
| Owner Name 2: | 1/4 section #: |
1478 |
||
| Owner Name 3: | Parent Acct: |
|
||
| Billing Address: | 5301 RYAN CT | Tax District: |
|
|
| City, State, Zip | OKLAHOMA CITY, OK 73135-4509 | School System: |
Mid-Del #52 |
|
|
Country: (If noted) |
Land Size: |
0.2265 Acres |
||
|
Land Value: 35,423 |
|
|||
|
Sect 20-T11N-R2W Qtr SE |
FROLICH MEADOWS SEC 5
Block
002
Lot
020
|
|||
| Full Legal Description: FROLICH MEADOWS SEC 5 002 020 |
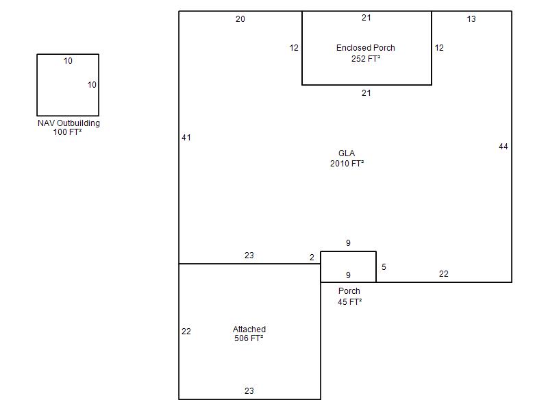
| Photo & Sketch (if available) | Comp Sales (ordered by relevancy) |
|
||||||||||||||||||
|
||||||||||||||||||||
| Value History (*The County Treasurer 405-713-1300 posts & collects actual tax amounts. Contact information HERE) | |||||||||||||
|---|---|---|---|---|---|---|---|---|---|---|---|---|---|
| Year | Market Value | Taxable Mkt Value | Gross Assessed | Exemption | Net Assessed | Millage | Est. Tax | Tax Savings | |||||
|
2025 |
260,500 |
211,861 |
23,304 |
0 |
23,304 |
126.46 |
$2,947 |
$677 |
|||||
|
2024 |
251,500 |
201,773 |
22,194 |
0 |
22,194 |
128.51 |
$2,852 |
$703 |
|||||
|
2023 |
237,000 |
192,165 |
21,137 |
0 |
21,137 |
122.94 |
$2,599 |
$606 |
|||||
|
2022 |
204,500 |
183,015 |
20,131 |
0 |
20,131 |
122.11 |
$2,458 |
$289 |
|||||
|
2021 |
181,500 |
174,300 |
19,173 |
0 |
19,173 |
124.74 |
$2,392 |
$99 |
|||||
| Property Account Status/Adjustments/Exemptions | ||
|---|---|---|
| Account # | Exemption Description | Amount |
|
R149011480 |
Homestead |
1,000 |
| Property Deed Transaction History (Recorded in the County Clerk's Office) | ||||||||||
|---|---|---|---|---|---|---|---|---|---|---|
| Date | Type | Book | Page | Price | Grantor | Grantee | ||||
|
9/5/2025 |
|
Deeds |
$240,000 |
SALINAS JOSE FELES |
HAMEL LANDON BRYCE |
|||||
|
1/27/2024 |
|
Deeds |
$0 |
SALINAS JOSE FELES |
SALINAS JOSE FELES |
|||||
|
1/29/2019 |
|
Deeds |
$162,000 |
BROWN RYAN |
SALINAS JOSE FELES |
|||||
|
11/17/2017 |
|
Deeds |
$160,000 |
BULLARD CHARLES C & ROSIE P |
BROWN RYAN |
|||||
|
1/30/2009 |
|
Deeds |
$155,000 |
L C PROPERTY IMPROVEMENTS LLC |
BULLARD CHARLES C & ROSIE P |
|||||
| Last Mailed Notice of Value (N.O.V.) Information/History | ||||||||
|---|---|---|---|---|---|---|---|---|
| Year | Date | Market Value | Taxable Market Value | Gross Assessed | Exemption | Net Assessed | ||
|
2026 |
02/06/2026 |
263,500 |
263,500 |
28,985 |
0 |
28,985 |
||
|
2025 |
01/31/2025 |
260,500 |
211,861 |
23,304 |
0 |
23,304 |
||
|
2024 |
01/22/2024 |
251,500 |
201,773 |
22,194 |
0 |
22,194 |
||
|
2023 |
01/23/2023 |
237,000 |
192,165 |
21,137 |
0 |
21,137 |
||
|
2022 |
02/22/2022 |
204,500 |
183,015 |
20,131 |
0 |
20,131 |
||
| Property Building Permit History | ||||||
|---|---|---|---|---|---|---|
| Issued | Permit # | Provided by | Bldg # | Description | Est Construction Cost | Status |
|
3/22/2012 |
10441381 |
OKLAHOMA CITY |
1 |
Main Dwellin |
3,000 |
Inactive |
| Click button on building number to access detailed information: | ||||||
|---|---|---|---|---|---|---|
| Bldg # | Vacant/Improved Land | Bldg Description | Year Built | SqFt | # Stories | |
|
1 |
Improved |
Ranch 1 Story |
1978 |
2,010 |
1 Stories |
|