|
|
|
| Larry Stein Oklahoma County Assessor (405) 713-1200 - Public Access System |
|
|
|
|
|
|
| Real Property Display - Screen Produced 4/2/2026 1:35:22 AM | ||||
|---|---|---|---|---|
| Account: R217801270 | Type: Residential | Location: |
2816 RIDGEWAY CIR |
|
| Building Name/Occupant: |
|
EDMOND |
||
| Owner Name 1: | TOWNE PETER LYLE |
Parcel PIN#: |
3223-21-780-1270 |
|
| Owner Name 2: | TOWNE TAYLOR DONN | 1/4 section #: |
3223 |
|
| Owner Name 3: | Parent Acct: |
3223-16-869-0070 |
||
| Billing Address: | 2816 RIDGEWAY CIR | Tax District: |
|
|
| City, State, Zip | JONES, OK 73049 | School System: |
Edmond #12 |
|
|
Country: (If noted) |
Land Size: |
0.9561 Acres |
||
|
Land Value: 145,765 |
|
|||
|
Sect 6-T13N-R1W Qtr SW |
RIDGE AT CHITWOOD
Block
003
Lot
004
|
|||
| Full Legal Description: RIDGE AT CHITWOOD BLK 003 LOT 004 |
| Photo & Sketch (if available) | Comp Sales (ordered by relevancy) |
|
||||||||||||||||||
|
||||||||||||||||||||
| Value History (*The County Treasurer 405-713-1300 posts & collects actual tax amounts. Contact information HERE) | |||||||||||||
|---|---|---|---|---|---|---|---|---|---|---|---|---|---|
| Year | Market Value | Taxable Mkt Value | Gross Assessed | Exemption | Net Assessed | Millage | Est. Tax | Tax Savings | |||||
|
2026 |
889,000 |
708,632 |
77,949 |
1,000 |
76,949 |
105.16 |
$8,092 |
$2,192 |
|||||
|
2025 |
892,000 |
687,993 |
75,679 |
1,000 |
74,679 |
105.16 |
$7,853 |
$2,465 |
|||||
|
2024 |
849,000 |
667,955 |
73,475 |
1,000 |
72,475 |
105.03 |
$7,612 |
$2,197 |
|||||
|
2023 |
648,500 |
648,500 |
71,335 |
0 |
71,335 |
104.24 |
$7,436 |
$0 |
|||||
|
2022 |
16,393 |
16,393 |
1,803 |
0 |
1,803 |
104.64 |
$189 |
$0 |
|||||
| Property Account Status/Adjustments/Exemptions | ||
|---|---|---|
| Account # | Exemption Description | Amount |
|
R217801270 |
3% Cap Homestead |
0 |
|
R217801270 |
Homestead |
1,000 |
| Property Deed Transaction History (Recorded in the County Clerk's Office) | |||||||
|---|---|---|---|---|---|---|---|
| Date | Type | Book | Page | Price | Grantor | Grantee | |
|
2/23/2022 |
|
Deeds |
$647,000 |
DISTINCTIVE BUILDERS LLC |
TOWNE PETER LYLE |
||
|
1/28/2021 |
|
Deeds |
$129,000 |
CHITWOOD FARMS LLC |
DISTINCTIVE BUILDERS LLC |
||
|
10/26/2018 |
|
Deeds |
$702,000 |
B & R FARMS INC |
CHITWOOD FARMS LLC |
||
| Last Mailed Notice of Value (N.O.V.) Information/History | ||||||
|---|---|---|---|---|---|---|
| Year | Date | Market Value | Taxable Market Value | Gross Assessed | Exemption | Net Assessed |
|
2026 |
02/06/2026 |
889,000 |
708,632 |
77,949 |
1,000 |
76,949 |
|
2025 |
01/31/2025 |
892,000 |
687,993 |
75,679 |
1,000 |
74,679 |
|
2024 |
01/22/2024 |
849,000 |
680,925 |
74,901 |
0 |
74,901 |
|
2023 |
01/23/2023 |
648,500 |
648,500 |
71,335 |
0 |
71,335 |
|
2021 |
02/24/2021 |
16,393 |
16,393 |
1,803 |
0 |
1,803 |
| Property Building Permit History | ||||||
|---|---|---|---|---|---|---|
| Issued | Permit # | Provided by | Bldg # | Description | Est Construction Cost | Status |
|
5/26/2021 |
B21-00133 |
|
|
Main Dwellin |
525,000 |
Inactive |
| Click button on building number to access detailed information: | ||||||
|---|---|---|---|---|---|---|
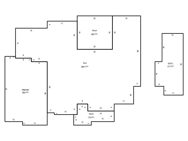
| Bldg # | Vacant/Improved Land | Bldg Description | Year Built | SqFt | # Stories | |
|
1 |
Improved |
1½ Story Fin |
2021 |
3,132 |
1.5 Stories |
|