|
|
|
| Larry Stein Oklahoma County Assessor (405) 713-1200 - Public Access System |
|
|
|
|
|
|
| Real Property Display - Screen Produced 3/21/2026 9:03:48 AM | ||||
|---|---|---|---|---|
| Account: R218051010 | Type: Residential | Location: |
1304 BLACKWELDER AVE |
|
| Building Name/Occupant: |
|
OKLAHOMA CITY |
||
| Owner Name 1: | PHILIPP RENEE |
Parcel PIN#: |
2714-21-805-1010 |
|
| Owner Name 2: | 1/4 section #: |
2714 |
||
| Owner Name 3: | Parent Acct: |
2714-06-190-6765 |
||
| Billing Address: | 1304 N BLACKWELDER AVE | Tax District: |
|
|
| City, State, Zip | OKLAHOMA CITY, OK 73106 | School System: |
Oklahoma City #89 |
|
|
Country: (If noted) |
Land Size: |
0.0552 Acres |
||
|
Land Value: 98,083 |
|
|||
|
Sect 29-T12N-R3W Qtr SE |
BLACKWELDER COTTAGES
Block
000
Lot
002
|
|||
| Full Legal Description: BLACKWELDER COTTAGES BLK 000 LOT 002 |
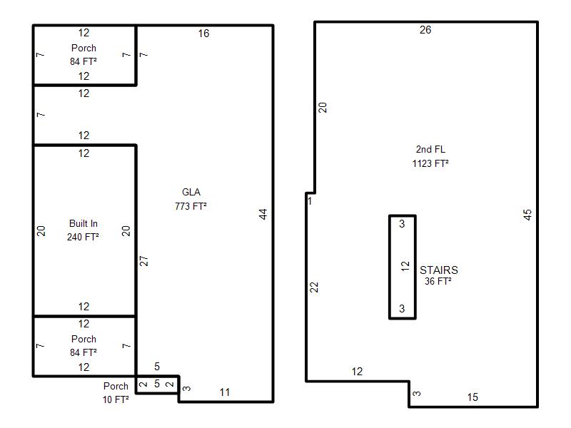
| Photo & Sketch (if available) | Comp Sales (ordered by relevancy) |
|
||||||||||||||||||
|
||||||||||||||||||||
| Value History (*The County Treasurer 405-713-1300 posts & collects actual tax amounts. Contact information HERE) | ||||||||
|---|---|---|---|---|---|---|---|---|
| Year | Market Value | Taxable Mkt Value | Gross Assessed | Exemption | Net Assessed | Millage | Est. Tax | Tax Savings |
|
2025 |
496,500 |
458,350 |
50,418 |
1,000 |
49,418 |
122.90 |
$6,074 |
$639 |
|
2024 |
445,000 |
445,000 |
48,950 |
1,000 |
47,950 |
123.89 |
$5,941 |
$124 |
|
2023 |
506,000 |
506,000 |
55,660 |
1,000 |
54,660 |
122.82 |
$6,713 |
$123 |
|
2022 |
3,647 |
3,647 |
401 |
0 |
401 |
117.63 |
$47 |
$0 |
| Property Account Status/Adjustments/Exemptions | ||
|---|---|---|
| Account # | Exemption Description | Amount |
|
R218051010 |
3% Cap Homestead |
0 |
|
R218051010 |
Homestead |
1,000 |
| Property Deed Transaction History (Recorded in the County Clerk's Office) | |||||||
|---|---|---|---|---|---|---|---|
| Date | Type | Book | Page | Price | Grantor | Grantee | |
|
7/1/2022 |
|
Deeds |
$494,000 |
BLACKWELDER LLC |
PHILIPP RENEE |
||
|
1/28/2016 |
|
Hmstd Off & |
$0 |
2003 REALTY LLC |
BLACKWELDER LLC |
||
| Last Mailed Notice of Value (N.O.V.) Information/History | ||||||
|---|---|---|---|---|---|---|
| Year | Date | Market Value | Taxable Market Value | Gross Assessed | Exemption | Net Assessed |
|
2026 |
02/23/2026 |
503,500 |
472,100 |
51,930 |
1,000 |
50,930 |
|
2025 |
02/14/2025 |
496,500 |
458,350 |
50,418 |
1,000 |
49,418 |
|
2023 |
02/14/2023 |
506,000 |
506,000 |
55,660 |
1,000 |
54,660 |
|
2022 |
03/15/2022 |
3,647 |
3,647 |
401 |
0 |
401 |
| Property Building Permit History | |||||||||||
|---|---|---|---|---|---|---|---|---|---|---|---|
| Issued | Permit # | Provided by | Bldg # | Description | Est Construction Cost | Status | |||||
| No Building Permit records returned. | |||||||||||
| Click button on building number to access detailed information: | ||||||
|---|---|---|---|---|---|---|
| Bldg # | Vacant/Improved Land | Bldg Description | Year Built | SqFt | # Stories | |
|
1 |
Improved |
2 Story |
2021 |
1,896 |
2 Stories |
|