|
|
|
| Larry Stein Oklahoma County Assessor (405) 713-1200 - Public Access System |
|
|
|
|
|
|
| Real Property Display - Screen Produced 2/27/2026 3:28:37 AM | ||||
|---|---|---|---|---|
| Account: R260122160 | Type: Residential | Location: |
21315 PIONEER CIR |
|
| Building Name/Occupant: |
|
UNINCORPORATED |
||
| Owner Name 1: | CUEVAS ANTHONY R & AMBER L |
Parcel PIN#: |
2048-26-012-2160 |
|
| Owner Name 2: | 1/4 section #: |
2048 |
||
| Owner Name 3: | Parent Acct: |
2048-26-012-2003 |
||
| Billing Address: | 21315 PIONEER CIR | Tax District: |
|
|
| City, State, Zip | HARRAH, OK 73045 | School System: |
Harrah #7 |
|
|
Country: (If noted) |
Land Size: |
2.5400 Acres |
||
|
Land Value: 30,321 |
|
|||
|
Sect 12-T12N-R1E Qtr NW |
ELK TOWNSHIP
Block
000
Lot
000
|
|||
| Full Legal Description: ELK TOWNSHIP PT NW4 SEC 12 12N 1E BEG 1325.05FT E & 1052.42FTS OF NW/C NW4 TH S275.99FT W416.73FT NELY160.57FT NELY119.39FT E388.15FT TO BEG CONT 2.54ACRS MORE OR LESS |
| Photo & Sketch (if available) | Comp Sales (ordered by relevancy) |
|
||||||||||||||||||
|
||||||||||||||||||||
| Value History (*The County Treasurer 405-713-1300 posts & collects actual tax amounts. Contact information HERE) | ||||||||
|---|---|---|---|---|---|---|---|---|
| Year | Market Value | Taxable Mkt Value | Gross Assessed | Exemption | Net Assessed | Millage | Est. Tax | Tax Savings |
|
2025 |
164,661 |
164,661 |
18,112 |
0 |
18,112 |
107.54 |
$1,948 |
$0 |
|
2024 |
164,661 |
164,661 |
18,112 |
0 |
18,112 |
110.62 |
$2,004 |
$0 |
|
2023 |
30,321 |
30,321 |
3,335 |
0 |
3,335 |
97.88 |
$326 |
$0 |
|
2022 |
30,321 |
30,321 |
3,334 |
0 |
3,334 |
99.50 |
$332 |
$0 |
|
2021 |
0 |
|
0 |
|
|
|
$ |
$ |
| Property Account Status/Adjustments/Exemptions | ||
|---|---|---|
| Account # | Exemption Description | Amount |
|
R260122160 |
5% Capped Account |
0 |
| Property Deed Transaction History (Recorded in the County Clerk's Office) | |||||||
|---|---|---|---|---|---|---|---|
| Date | Type | Book | Page | Price | Grantor | Grantee | |
|
8/25/2023 |
|
Deeds |
$341,000 |
TIMBER RIDGE CUSTOM HOMES LLC |
CUEVAS ANTHONY R & AMBER L |
||
|
3/29/2022 |
|
Hmstd Off & |
$0 |
CUEVAS ANTHONY & AMBER |
TIMBER RIDGE CUSTOM HOMES LLC |
||
|
1/13/2022 |
|
Hmstd Off & |
$0 |
SKORKOWSKY GEORGE J & SUZETTEE TRS |
CUEVAS ANTHONY & AMBER |
||
|
9/17/2021 |
|
Deeds |
$ |
HALVERSON HELEN L |
SKORKOWSKY GEORGE J & SUZETTE TRS |
||
| Last Mailed Notice of Value (N.O.V.) Information/History | ||||||
|---|---|---|---|---|---|---|
| Year | Date | Market Value | Taxable Market Value | Gross Assessed | Exemption | Net Assessed |
|
2024 |
01/22/2024 |
299,000 |
299,000 |
32,890 |
0 |
32,890 |
|
2022 |
02/22/2022 |
30,321 |
30,321 |
3,335 |
0 |
3,335 |
| Property Building Permit History | ||||||
|---|---|---|---|---|---|---|
| Issued | Permit # | Provided by | Bldg # | Description | Est Construction Cost | Status |
|
11/25/2024 |
|
|
|
Remodeled |
|
Inactive |
|
3/21/2023 |
BP-2023-68 |
|
|
Main Dwellin |
200,000 |
Inactive |
| Click button on building number to access detailed information: | ||||||
|---|---|---|---|---|---|---|
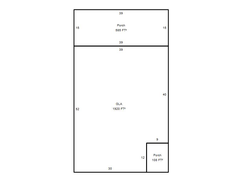
| Bldg # | Vacant/Improved Land | Bldg Description | Year Built | SqFt | # Stories | |
|
1 |
Improved |
Ranch 1 Story |
2022 |
1,920 |
1 Stories |
|