|
|
|
| Larry Stein Oklahoma County Assessor (405) 713-1200 - Public Access System |
|
|
|
|
|
|
| Real Property Display - Screen Produced 3/12/2026 12:43:53 PM | ||||
|---|---|---|---|---|
| Account: R143865200 | Type: Residential | Location: |
4324 SE 57TH ST |
|
| Building Name/Occupant: |
|
OKLAHOMA CITY |
||
| Owner Name 1: | BAEZA ERICK |
Parcel PIN#: |
1479-14-386-5200 |
|
| Owner Name 2: | CHAVEZ ANA C PIMENTAL | 1/4 section #: |
1479 |
|
| Owner Name 3: | Parent Acct: |
|
||
| Billing Address: | 4324 SE 57TH ST | Tax District: |
|
|
| City, State, Zip | OKLAHOMA CITY, OK 73013 | School System: |
Mid-Del #52 |
|
|
Country: (If noted) |
Land Size: |
1.7200 Acres |
||
|
Land Value: 29,133 |
|
|||
|
Sect 20-T11N-R2W Qtr SW |
UNPLTD PT SEC 20 11N 2W
Block
000
Lot
000
|
|||
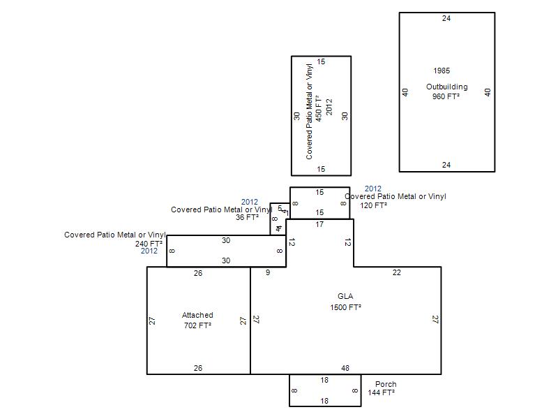
| Full Legal Description: UNPLTD PT OF SW4 SEC 20 11N 2W BEG 683FT E & 583FT N OF SW/C OF SW4 TH E150FT N500FT W150FT S500FT TO BEG OF LOT 9 BLK 3 PROSPERITY ACRES UNREC PLAT |
| Photo & Sketch (if available) | Comp Sales (ordered by relevancy) |
|
||||||||||||||||||
|
||||||||||||||||||||
| Value History (*The County Treasurer 405-713-1300 posts & collects actual tax amounts. Contact information HERE) | |||||||||||||
|---|---|---|---|---|---|---|---|---|---|---|---|---|---|
| Year | Market Value | Taxable Mkt Value | Gross Assessed | Exemption | Net Assessed | Millage | Est. Tax | Tax Savings | |||||
|
2025 |
304,000 |
265,508 |
29,205 |
1,000 |
28,205 |
126.46 |
$3,567 |
$662 |
|||||
|
2024 |
268,500 |
257,775 |
28,355 |
0 |
28,355 |
128.51 |
$3,644 |
$152 |
|||||
|
2023 |
245,500 |
245,500 |
27,005 |
0 |
27,005 |
122.94 |
$3,320 |
$0 |
|||||
|
2022 |
174,000 |
174,000 |
19,140 |
0 |
19,140 |
122.11 |
$2,337 |
$0 |
|||||
|
2021 |
166,843 |
166,843 |
18,352 |
1,000 |
17,352 |
124.74 |
$2,165 |
$125 |
|||||
| Property Account Status/Adjustments/Exemptions | ||
|---|---|---|
| Account # | Exemption Description | Amount |
|
R143865200 |
Homestead |
1,000 |
|
R143865200 |
3% Cap Homestead |
0 |
| Property Deed Transaction History (Recorded in the County Clerk's Office) | ||||||||||
|---|---|---|---|---|---|---|---|---|---|---|
| Date | Type | Book | Page | Price | Grantor | Grantee | ||||
|
4/15/2022 |
|
Deeds |
$245,000 |
BANUELOS MIGUEL A & ELIZABETH |
BAEZA ERICK |
|||||
|
11/23/2021 |
|
Deeds |
$170,000 |
WISE JOVONNA F MAYNARD |
BANUELOS MIGUEL A & ELIZABETH |
|||||
|
11/2/2018 |
|
Deeds |
$0 |
WISE THOMAS D & JOVONNA F MAYNARD |
WISE JOVONNA F MAYNARD |
|||||
|
3/31/2017 |
|
Deeds |
$0 |
WISE THOMAS D |
WISE THOMAS D & JOVONNA F MAYNARD |
|||||
|
2/13/2015 |
|
Deeds |
$163,000 |
PHAM DON & KIM DO |
WISE THOMAS D |
|||||
| Last Mailed Notice of Value (N.O.V.) Information/History | ||||||||
|---|---|---|---|---|---|---|---|---|
| Year | Date | Market Value | Taxable Market Value | Gross Assessed | Exemption | Net Assessed | ||
|
2026 |
02/06/2026 |
314,500 |
273,473 |
30,081 |
1,000 |
29,081 |
||
|
2025 |
01/31/2025 |
304,000 |
265,508 |
29,205 |
1,000 |
28,205 |
||
|
2024 |
01/22/2024 |
268,500 |
257,775 |
28,355 |
0 |
28,355 |
||
|
2023 |
01/23/2023 |
245,500 |
245,500 |
27,005 |
0 |
27,005 |
||
|
2022 |
02/22/2022 |
174,000 |
174,000 |
19,140 |
0 |
19,140 |
||
| Property Building Permit History | ||||||
|---|---|---|---|---|---|---|
| Issued | Permit # | Provided by | Bldg # | Description | Est Construction Cost | Status |
|
7/2/1999 |
10238255 |
OKLAHOMA CITY |
1 |
Main Dwellin |
86,000 |
Inactive |
| Click button on building number to access detailed information: | ||||||
|---|---|---|---|---|---|---|
| Bldg # | Vacant/Improved Land | Bldg Description | Year Built | SqFt | # Stories | |
|
1 |
Improved |
Ranch 1 Story |
1999 |
1,500 |
1 Stories |
|