|
|
|
| Larry Stein Oklahoma County Assessor (405) 713-1200 - Public Access System |
|
|
|
|
|
|
| Real Property Display - Screen Produced 3/28/2026 2:48:56 PM | ||||
|---|---|---|---|---|
| Account: R218631550 | Type: Residential | Location: |
6316 NW 150TH TER |
|
| Building Name/Occupant: |
|
OKLAHOMA CITY |
||
| Owner Name 1: | COTTINGHAM CHRIS & ALICEA |
Parcel PIN#: |
3833-21-863-1550 |
|
| Owner Name 2: | 1/4 section #: |
3833 |
||
| Owner Name 3: | Parent Acct: |
3833-16-868-1300 |
||
| Billing Address: | 6316 NW 150TH TER | Tax District: |
|
|
| City, State, Zip | OKLAHOMA CITY, OK 73142-6605 | School System: |
Deer Creek #6 |
|
|
Country: (If noted) |
Land Size: |
0.2342 Acres |
||
|
Land Value: 133,212 |
|
|||
|
Sect 9-T13N-R4W Qtr NE |
THE LAKES AT ANNECY PH 1
Block
007
Lot
005
|
|||
| Full Legal Description: THE LAKES AT ANNECY PH 1 BLK 007 LOT 005 |
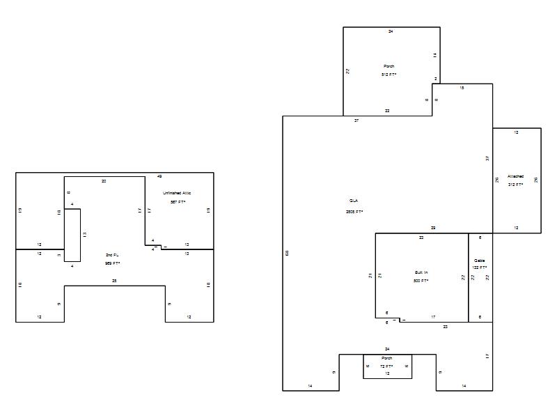
| Photo & Sketch (if available) | Comp Sales (ordered by relevancy) |
|
||||||||||||||||||
|
||||||||||||||||||||
| Value History (*The County Treasurer 405-713-1300 posts & collects actual tax amounts. Contact information HERE) | ||||||||
|---|---|---|---|---|---|---|---|---|
| Year | Market Value | Taxable Mkt Value | Gross Assessed | Exemption | Net Assessed | Millage | Est. Tax | Tax Savings |
|
2026 |
1,180,000 |
1,154,527 |
126,997 |
0 |
126,997 |
129.51 |
$16,448 |
$363 |
|
2025 |
1,170,500 |
1,099,550 |
120,950 |
0 |
120,950 |
129.51 |
$15,664 |
$1,011 |
|
2024 |
1,021,000 |
1,021,000 |
112,310 |
0 |
112,310 |
131.12 |
$14,726 |
$0 |
|
2023 |
25,229 |
25,229 |
2,775 |
0 |
2,775 |
131.55 |
$365 |
$0 |
| Property Account Status/Adjustments/Exemptions | ||
|---|---|---|
| Account # | Exemption Description | Amount |
|
R218631550 |
5% Capped Account |
0 |
| Property Deed Transaction History (Recorded in the County Clerk's Office) | |||||||
|---|---|---|---|---|---|---|---|
| Date | Type | Book | Page | Price | Grantor | Grantee | |
|
3/28/2023 |
|
Deeds |
$1,048,500 |
SEAGULL CUSTOM HOMES INC |
COTTINGHAM CHRIS & ALICEA |
||
|
3/21/2022 |
|
Deeds |
$115,000 |
ANNECY LLC |
SEAGULL CUSTOM HOMES INC |
||
|
8/7/2019 |
|
Mult Parcel |
$7,163,499 |
7M COMPANY LLC |
ANNECY LLC |
||
| Last Mailed Notice of Value (N.O.V.) Information/History | ||||||
|---|---|---|---|---|---|---|
| Year | Date | Market Value | Taxable Market Value | Gross Assessed | Exemption | Net Assessed |
|
2026 |
02/23/2026 |
1,180,000 |
1,154,527 |
126,997 |
0 |
126,997 |
|
2025 |
03/28/2025 |
1,170,500 |
1,099,550 |
120,950 |
0 |
120,950 |
|
2024 |
02/13/2024 |
1,021,000 |
1,021,000 |
112,310 |
0 |
112,310 |
|
2023 |
02/14/2023 |
25,229 |
25,229 |
2,775 |
0 |
2,775 |
| Property Building Permit History | ||||||
|---|---|---|---|---|---|---|
| Issued | Permit # | Provided by | Bldg # | Description | Est Construction Cost | Status |
|
3/29/2024 |
POOL-2024-00004 |
|
1 |
Swimming Pool |
60,000 |
Inactive |
|
6/29/2022 |
BLDR-2022-01676 |
|
|
Main Dwellin |
900,000 |
Inactive |
| Click button on building number to access detailed information: | ||||||
|---|---|---|---|---|---|---|
| Bldg # | Vacant/Improved Land | Bldg Description | Year Built | SqFt | # Stories | |
|
1 |
Improved |
1½ Story Fin |
2023 |
3,777 |
1.5 Stories |
|