|
|
|
| Larry Stein Oklahoma County Assessor (405) 713-1200 - Public Access System |
|
|
|
|
|
|
| Real Property Display - Screen Produced 4/4/2026 8:52:10 PM | ||||
|---|---|---|---|---|
| Account: R219271110 | Type: Residential | Location: |
944 HANGAR DR |
|
| Building Name/Occupant: |
|
OKLAHOMA CITY |
||
| Owner Name 1: | GO BOP LLC |
Parcel PIN#: |
1629-21-927-1110 |
|
| Owner Name 2: | 1/4 section #: |
1629 |
||
| Owner Name 3: | Parent Acct: |
1629-21-762-1000 |
||
| Billing Address: | 9116 N KELLEY AVE | Tax District: |
|
|
| City, State, Zip | OKLAHOMA CITY, OK 73131-2418 | School System: |
Oklahoma City #89 |
|
|
Country: (If noted) |
Land Size: |
0.0348 Acres |
||
|
Land Value: 69,731 |
|
|||
|
Sect 8-T11N-R3W Qtr NE |
WHEELER DISTRICT PH 2A REPLAT
Block
002
Lot
012
|
|||
| Full Legal Description: WHEELER DISTRICT PH 2A REPLAT BLK 002 PT OF LOT 11 & LOT 12 BEG NE/C LOT 12 TH NE7.50FT SE33.02FT S21.25FT W26.71FT NW49.27FT NE22.50FT TO BEG |
| Photo & Sketch (if available) | Comp Sales (ordered by relevancy) |
|
||||||||||||||||||
|
||||||||||||||||||||
| Value History (*The County Treasurer 405-713-1300 posts & collects actual tax amounts. Contact information HERE) | ||||||||
|---|---|---|---|---|---|---|---|---|
| Year | Market Value | Taxable Mkt Value | Gross Assessed | Exemption | Net Assessed | Millage | Est. Tax | Tax Savings |
|
2026 |
391,500 |
391,500 |
43,065 |
0 |
43,065 |
119.02 |
$5,126 |
$0 |
|
2025 |
5,496 |
5,496 |
604 |
0 |
604 |
119.02 |
$72 |
$0 |
|
2024 |
5,496 |
5,496 |
604 |
0 |
604 |
119.70 |
$72 |
$0 |
| Property Account Status/Adjustments/Exemptions | ||||||
|---|---|---|---|---|---|---|
| Account # | Exemption Description | Amount | ||||
| No adjustment/exemption records returned. | ||||||
| Property Deed Transaction History (Recorded in the County Clerk's Office) | |||||||
|---|---|---|---|---|---|---|---|
| Date | Type | Book | Page | Price | Grantor | Grantee | |
|
5/15/2025 |
|
Deeds |
$385,000 |
WHEELER HOME LLC |
GO BOP LLC |
||
|
10/19/2023 |
|
Hmstd Off & |
$0 |
WHEELER DISTRICT LLC |
WHEELER DISTRICT LLC |
||
|
10/19/2023 |
|
Deeds |
$41,000 |
WHEELER DISTRICT LLC |
WHEELER HOME LLC |
||
|
8/23/2023 |
|
Hmstd Off & |
$0 |
WHEELER DISTRICT LLC |
WHEELER DISTRICT LLC |
||
|
12/21/2017 |
|
Hmstd Off & |
$0 |
HUMPHREYS PARTNERS 2006 LLC |
HUMPHREYS PARTNERS 2006 LLC |
||
| Last Mailed Notice of Value (N.O.V.) Information/History | ||||||
|---|---|---|---|---|---|---|
| Year | Date | Market Value | Taxable Market Value | Gross Assessed | Exemption | Net Assessed |
|
2026 |
02/06/2026 |
391,500 |
391,500 |
43,065 |
0 |
43,065 |
|
2024 |
01/22/2024 |
5,496 |
5,496 |
604 |
0 |
604 |
| Property Building Permit History | ||||||
|---|---|---|---|---|---|---|
| Issued | Permit # | Provided by | Bldg # | Description | Est Construction Cost | Status |
|
6/11/2024 |
BLDC-2023-07134 |
|
|
Main Dwellin |
|
Inactive |
| Click button on building number to access detailed information: | ||||||
|---|---|---|---|---|---|---|
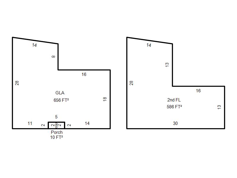
| Bldg # | Vacant/Improved Land | Bldg Description | Year Built | SqFt | # Stories | |
|
1 |
Improved |
Townhouse Multiple Story |
2024 |
1,242 |
2 Stories |
|