|
|
|
| Larry Stein Oklahoma County Assessor (405) 713-1200 - Public Access System |
|
|
|
|
|
|
| Real Property Display - Screen Produced 4/8/2026 7:08:43 AM | ||||
|---|---|---|---|---|
| Account: R220271600 | Type: Residential | Location: |
617 NE 106TH ST |
|
| Building Name/Occupant: |
|
OKLAHOMA CITY |
||
| Owner Name 1: | BLACK SHEEP PROPERTIES OK LLC |
Parcel PIN#: |
3705-22-027-1600 |
|
| Owner Name 2: | 1/4 section #: |
3705 |
||
| Owner Name 3: | Parent Acct: |
3705-13-448-0910 |
||
| Billing Address: | 621 PARK VALLEY DR W | Tax District: |
|
|
| City, State, Zip | HOPKINS, MN 55343-7740 | School System: |
Oklahoma City #89 |
|
|
Country: (If noted) |
Land Size: |
0.1102 Acres |
||
|
Land Value: 44,640 |
|
|||
|
Sect 27-T13N-R3W Qtr NE |
ENCLAVE AT HEFNER CROSSING PH 1
Block
003
Lot
017
|
|||
| Full Legal Description: ENCLAVE AT HEFNER CROSSING PH 1 BLK 003 LOT 017 |
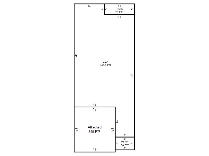
| Photo & Sketch (if available) | Comp Sales (ordered by relevancy) |
|
||||||||||||||||||
|
||||||||||||||||||||
| Value History (*The County Treasurer 405-713-1300 posts & collects actual tax amounts. Contact information HERE) | ||||||||
|---|---|---|---|---|---|---|---|---|
| Year | Market Value | Taxable Mkt Value | Gross Assessed | Exemption | Net Assessed | Millage | Est. Tax | Tax Savings |
|
2026 |
232,500 |
232,500 |
25,575 |
0 |
25,575 |
122.90 |
$3,143 |
$0 |
|
2025 |
14,865 |
14,865 |
1,635 |
0 |
1,635 |
122.90 |
$201 |
$0 |
| Property Account Status/Adjustments/Exemptions | ||||||
|---|---|---|---|---|---|---|
| Account # | Exemption Description | Amount | ||||
| No adjustment/exemption records returned. | ||||||
| Property Deed Transaction History (Recorded in the County Clerk's Office) | |||||||
|---|---|---|---|---|---|---|---|
| Date | Type | Book | Page | Price | Grantor | Grantee | |
|
9/19/2025 |
|
Deeds |
$248,500 |
D R HORTON TEXAS LTD |
BLACK SHEEP PROPERTIES OK LLC |
||
|
4/8/2025 |
|
Mult Parcel |
$921,500 |
HEFNER CROSSING DEVELOPMENT LLC |
D R HORTON TEXAS LTD |
||
|
11/1/2021 |
|
Mult Parcel |
$3,016,000 |
OKC L DEV LLC |
HEFNER CROSSING DEVELOPMENT LLC |
||
| Last Mailed Notice of Value (N.O.V.) Information/History | ||||||
|---|---|---|---|---|---|---|
| Year | Date | Market Value | Taxable Market Value | Gross Assessed | Exemption | Net Assessed |
|
2026 |
03/30/2026 |
232,500 |
232,500 |
25,575 |
0 |
25,575 |
|
2025 |
02/14/2025 |
14,865 |
14,865 |
1,635 |
0 |
1,635 |
| Property Building Permit History | ||||||
|---|---|---|---|---|---|---|
| Issued | Permit # | Provided by | Bldg # | Description | Est Construction Cost | Status |
|
6/10/2025 |
|
|
1 |
Main Dwellin |
|
Inactive |
| Click button on building number to access detailed information: | ||||||
|---|---|---|---|---|---|---|
| Bldg # | Vacant/Improved Land | Bldg Description | Year Built | SqFt | # Stories | |
|
1 |
Improved |
Ranch 1 Story |
2025 |
1,400 |
1 Stories |
|