|
|
|
| Larry Stein Oklahoma County Assessor (405) 713-1200 - Public Access System |
|
|
|
|
|
|
| Real Property Display - Screen Produced 3/18/2026 5:25:58 AM | ||||
|---|---|---|---|---|
| Account: R195820445 | Type: Residential | Location: |
2511 IVES WAY LN |
|
| Building Name/Occupant: |
|
OKLAHOMA COUNTY |
||
| Owner Name 1: | GRISSOM ERVIN JR |
Parcel PIN#: |
2279-19-582-0445 |
|
| Owner Name 2: | MAXWELL KATHERINE L | 1/4 section #: |
2279 |
|
| Owner Name 3: | Parent Acct: |
2279-19-582-0440 |
||
| Billing Address: | 2511 IVES WAY LN | Tax District: |
|
|
| City, State, Zip | NICOMA PARK, OK 73020 | School System: |
Choctaw #4 |
|
|
Country: (If noted) |
Land Size: |
1.0601 Acres |
||
|
Land Value: 31,805 |
|
|||
|
Sect 20-T12N-R1W Qtr SW |
NICOMA PARK ADDITION
Block
003
Lot
000
|
|||
| Full Legal Description: NICOMA PARK ADDITION 003 PT OF LOT 7 BEG 288.66FT W NE/C LOT 7 TH S169.84FT W271.90FT N169.84FT E271.34FT TO BEG CONT 1.06 AC MORE OR LESS |
| Photo & Sketch (if available) | Comp Sales (ordered by relevancy) |
|
||||||||||||||||||
|
||||||||||||||||||||
| Value History (*The County Treasurer 405-713-1300 posts & collects actual tax amounts. Contact information HERE) | ||||||||
|---|---|---|---|---|---|---|---|---|
| Year | Market Value | Taxable Mkt Value | Gross Assessed | Exemption | Net Assessed | Millage | Est. Tax | Tax Savings |
|
2025 |
298,000 |
298,000 |
32,780 |
1,000 |
31,780 |
117.21 |
$3,725 |
$117 |
|
2024 |
211,343 |
189,478 |
20,842 |
0 |
20,842 |
116.35 |
$2,425 |
$280 |
|
2023 |
0 |
|
0 |
|
|
|
$ |
$ |
| Property Account Status/Adjustments/Exemptions | ||
|---|---|---|
| Account # | Exemption Description | Amount |
|
R195820445 |
3% Cap Homestead |
0 |
|
R195820445 |
Homestead |
1,000 |
| Property Deed Transaction History (Recorded in the County Clerk's Office) | |||||||
|---|---|---|---|---|---|---|---|
| Date | Type | Book | Page | Price | Grantor | Grantee | |
|
10/4/2024 |
|
Hmstd Off & |
$0 |
GRISSOM ERWIN JR |
GRISSOM ERVIN JR |
||
|
6/11/2024 |
|
Other |
$0 |
FLORES CLAUDIA LORENE |
FLORES CLAUDIA LORENE TRS |
||
|
6/11/2024 |
|
Deeds |
$240,000 |
FLORES CLAUDIA LORENE TRS |
GRISSOM ERWIN JR |
||
|
6/9/2024 |
|
Other |
$0 |
THOMAS FREDERICK DANIEL CHERIE |
FLORES CLAUDIA LORENE TRS |
||
|
11/23/2020 |
|
Hmstd Off & |
$0 |
BALLARD RAYMOND VAL TRS |
THOMAS FREDERICK DANIEL CHERIE |
||
| Last Mailed Notice of Value (N.O.V.) Information/History | ||||||
|---|---|---|---|---|---|---|
| Year | Date | Market Value | Taxable Market Value | Gross Assessed | Exemption | Net Assessed |
|
2025 |
01/31/2025 |
298,000 |
298,000 |
32,780 |
1,000 |
31,780 |
| Property Building Permit History | |||||||||||
|---|---|---|---|---|---|---|---|---|---|---|---|
| Issued | Permit # | Provided by | Bldg # | Description | Est Construction Cost | Status | |||||
| No Building Permit records returned. | |||||||||||
| Click button on building number to access detailed information: | ||||||
|---|---|---|---|---|---|---|
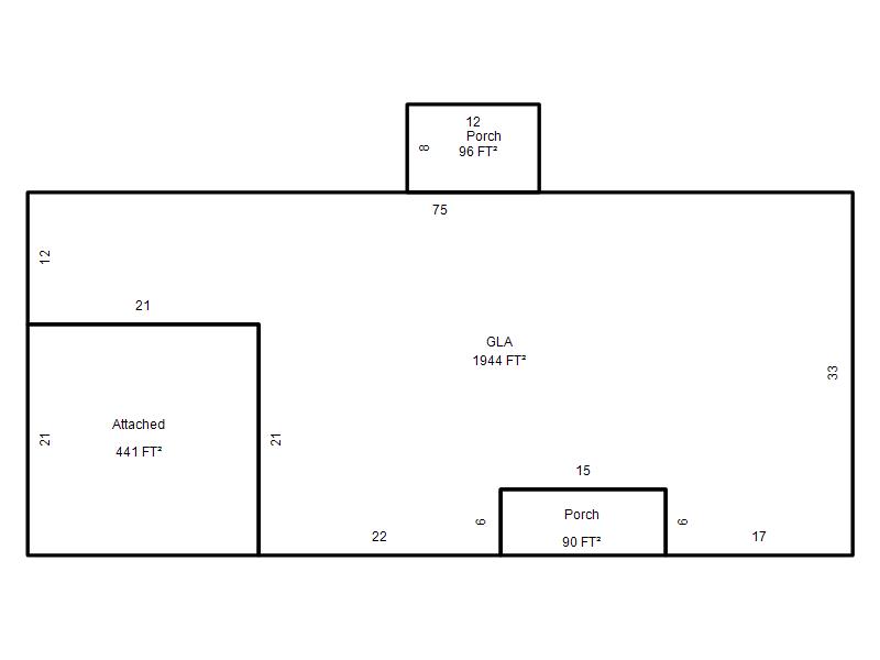
| Bldg # | Vacant/Improved Land | Bldg Description | Year Built | SqFt | # Stories | |
|
1 |
Improved |
Ranch 1 Story |
2001 |
1,944 |
1 Stories |
|