|
|
|
| Larry Stein Oklahoma County Assessor (405) 713-1200 - Public Access System |
|
|
|
|
|
|
| Real Property Display - Screen Produced 3/12/2026 9:39:28 AM | ||||
|---|---|---|---|---|
| Account: R200441150 | Type: Residential | Location: |
8908 SCIROCCO CIR |
|
| Building Name/Occupant: |
|
OKLAHOMA CITY |
||
| Owner Name 1: | WEMYSS STEVEN & ANGELA LIV TRUST |
Parcel PIN#: |
1526-20-044-1150 |
|
| Owner Name 2: | 1/4 section #: |
1526 |
||
| Owner Name 3: | Parent Acct: |
|
||
| Billing Address: | 8908 SCIROCCO CIR | Tax District: |
|
|
| City, State, Zip | OKLAHOMA CITY, OK 73135-6510 | School System: |
Moore #2 |
|
|
Country: (If noted) |
Land Size: |
0.3191 Acres |
||
|
Land Value: 75,000 |
|
|||
|
Sect 32-T11N-R2W Qtr SE |
WIND WOOD ESTATES SEC 10
Block
046
Lot
016
|
|||
| Full Legal Description: WIND WOOD ESTATES SEC 10 046 016 |
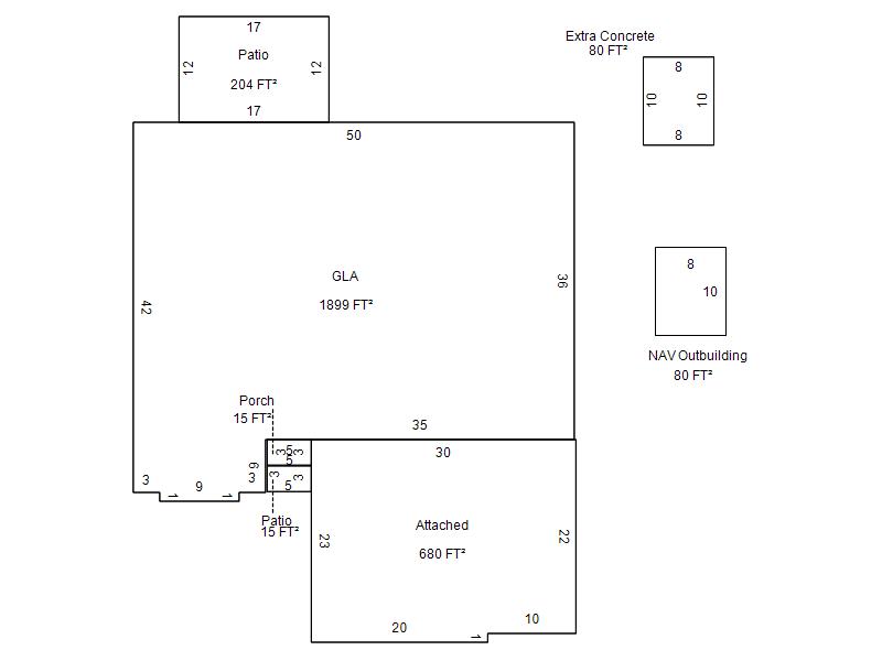
| Photo & Sketch (if available) | Comp Sales (ordered by relevancy) |
|
||||||||||||||||||
|
||||||||||||||||||||
| Value History (*The County Treasurer 405-713-1300 posts & collects actual tax amounts. Contact information HERE) | |||||||||||||
|---|---|---|---|---|---|---|---|---|---|---|---|---|---|
| Year | Market Value | Taxable Mkt Value | Gross Assessed | Exemption | Net Assessed | Millage | Est. Tax | Tax Savings | |||||
|
2025 |
75,000 |
75,000 |
8,250 |
4,813 |
3,437 |
123.20 |
$423 |
$593 |
|||||
|
2024 |
35,200 |
35,200 |
3,872 |
0 |
3,872 |
122.28 |
$473 |
$0 |
|||||
|
2023 |
244,500 |
202,132 |
22,233 |
1,000 |
21,233 |
121.63 |
$2,583 |
$688 |
|||||
|
2022 |
215,000 |
196,245 |
21,586 |
0 |
21,586 |
124.33 |
$2,684 |
$256 |
|||||
|
2021 |
192,000 |
186,900 |
20,559 |
0 |
20,559 |
123.94 |
$2,548 |
$70 |
|||||
| Property Account Status/Adjustments/Exemptions | ||
|---|---|---|
| Account # | Exemption Description | Amount |
|
R200441150 |
100% DAV Exemption |
100 |
|
R200441150 |
DAV Homestead |
0 |
| Property Deed Transaction History (Recorded in the County Clerk's Office) | ||||||||||
|---|---|---|---|---|---|---|---|---|---|---|
| Date | Type | Book | Page | Price | Grantor | Grantee | ||||
|
10/24/2025 |
|
Deeds |
$0 |
WEMYSS STEVEN PAUL & ANGELA HILTON |
WEMYSS STEVEN & ANGELA LIV TRUST |
|||||
|
6/24/2025 |
|
Deeds |
$261,000 |
MEDINA HOMES LLC |
WEMYSS STEVEN PAUL & ANGELA HILTON |
|||||
|
12/9/2024 |
|
Deeds |
$68,000 |
RUTH DANIEL L & DEANNA L |
PAGO SOLUTIONS LLC |
|||||
|
12/9/2024 |
|
Deeds |
$75,000 |
PAGO SOLUTIONS LLC |
MEDINA HOMES LLC |
|||||
|
11/13/2012 |
|
Deeds |
$0 |
RUTH DANIEL |
RUTH DANIEL L & DEANNA L |
|||||
| Last Mailed Notice of Value (N.O.V.) Information/History | ||||||||
|---|---|---|---|---|---|---|---|---|
| Year | Date | Market Value | Taxable Market Value | Gross Assessed | Exemption | Net Assessed | ||
|
2026 |
02/06/2026 |
264,000 |
264,000 |
29,040 |
29,040 |
0 |
||
|
2025 |
01/31/2025 |
75,000 |
75,000 |
8,250 |
0 |
8,250 |
||
|
2024 |
01/22/2024 |
253,500 |
208,195 |
22,901 |
1,000 |
21,901 |
||
|
2023 |
01/23/2023 |
244,500 |
206,057 |
22,665 |
0 |
22,665 |
||
|
2022 |
02/22/2022 |
215,000 |
196,245 |
21,586 |
0 |
21,586 |
||
| Property Building Permit History | ||||||
|---|---|---|---|---|---|---|
| Issued | Permit # | Provided by | Bldg # | Description | Est Construction Cost | Status |
|
12/6/2024 |
BLDR-2024-08172 |
|
1 |
Remodeled |
10,000 |
Inactive |
|
11/1/2001 |
10266450 |
OKLAHOMA CITY |
1 |
Main Dwellin |
94,500 |
Inactive |
| Click button on building number to access detailed information: | ||||||
|---|---|---|---|---|---|---|
| Bldg # | Vacant/Improved Land | Bldg Description | Year Built | SqFt | # Stories | |
|
1 |
Improved |
Ranch 1 Story |
2002 |
1,899 |
1 Stories |
|