|
|
|
| Larry Stein Oklahoma County Assessor (405) 713-1200 - Public Access System |
|
|
|
|
|
|
| Real Property Display - Screen Produced 3/14/2026 3:50:16 AM | ||||
|---|---|---|---|---|
| Account: R200441300 | Type: Residential | Location: |
8909 WOODBEND DR |
|
| Building Name/Occupant: |
|
OKLAHOMA CITY |
||
| Owner Name 1: | TH PROPERTY OWNER I LLC |
Parcel PIN#: |
1526-20-044-1300 |
|
| Owner Name 2: | 1/4 section #: |
1526 |
||
| Owner Name 3: | Parent Acct: |
|
||
| Billing Address: | 2875 W RAY RD, Unit 6 430 34788 | Tax District: |
|
|
| City, State, Zip | CHANDLER, AZ 85224 | School System: |
Moore #2 |
|
|
Country: (If noted) |
Land Size: |
0.3721 Acres |
||
|
Land Value: 38,720 |
|
|||
|
Sect 32-T11N-R2W Qtr SE |
WIND WOOD ESTATES SEC 10
Block
047
Lot
007
|
|||
| Full Legal Description: WIND WOOD ESTATES SEC 10 047 007 |
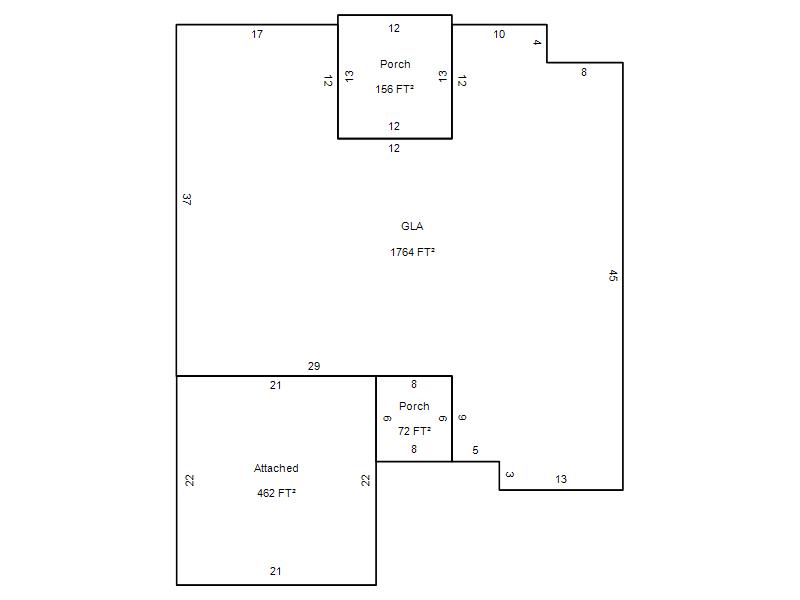
| Photo & Sketch (if available) | Comp Sales (ordered by relevancy) |
|
||||||||||||||||||
|
||||||||||||||||||||
| Value History (*The County Treasurer 405-713-1300 posts & collects actual tax amounts. Contact information HERE) | |||||||||||||
|---|---|---|---|---|---|---|---|---|---|---|---|---|---|
| Year | Market Value | Taxable Mkt Value | Gross Assessed | Exemption | Net Assessed | Millage | Est. Tax | Tax Savings | |||||
| No PropertyValuation records returned. | |||||||||||||
| Property Account Status/Adjustments/Exemptions | ||
|---|---|---|
| Account # | Exemption Description | Amount |
|
R200441300 |
5% Capped Account |
0 |
| Property Deed Transaction History (Recorded in the County Clerk's Office) | ||||||||||
|---|---|---|---|---|---|---|---|---|---|---|
| Date | Type | Book | Page | Price | Grantor | Grantee | ||||
|
5/2/2024 |
|
Deeds |
$227,000 |
WILLIAMS CHRISTOPHER S |
TH PROPERTY OWNER I LLC |
|||||
|
10/13/2016 |
|
Deeds |
$0 |
WILLIAMS CHRISTOPHER S WILLIAMS BONNIE M |
WILLIAMS CHRISTOPHER S |
|||||
|
7/12/2007 |
|
Deeds |
$143,000 |
CABODIE FRANK KEVIN |
WILLIAMS CHRISTOPHER S WILLIAMS BONNIE M |
|||||
|
5/19/2004 |
|
Deeds |
$123,000 |
HUNTER MICHAEL E |
CABODIE FRANK KEVIN |
|||||
|
3/29/2002 |
|
Deeds |
$110,000 |
LEONHARDT ENTERPRISES INC |
HUNTER MICHAEL E |
|||||
| Last Mailed Notice of Value (N.O.V.) Information/History | ||||||||
|---|---|---|---|---|---|---|---|---|
| Year | Date | Market Value | Taxable Market Value | Gross Assessed | Exemption | Net Assessed | ||
| No Notice of Value N.O.V. records returned. | ||||||||
| Property Building Permit History | ||||||
|---|---|---|---|---|---|---|
| Issued | Permit # | Provided by | Bldg # | Description | Est Construction Cost | Status |
|
12/3/2024 |
|
|
|
Remodeled |
|
Active |
|
5/14/2001 |
10266472 |
OKLAHOMA CITY |
1 |
Main Dwellin |
90,000 |
Inactive |
| Click button on building number to access detailed information: | ||||||
|---|---|---|---|---|---|---|
| Bldg # | Vacant/Improved Land | Bldg Description | Year Built | SqFt | # Stories | |
|
1 |
Improved |
Ranch 1 Story |
2002 |
1,764 |
1 Stories |
|