|
|
|
| Larry Stein Oklahoma County Assessor (405) 713-1200 - Public Access System |
|
|
|
|
|
|
| Real Property Display - Screen Produced 3/12/2026 9:49:10 PM | ||||
|---|---|---|---|---|
| Account: R124772620 | Type: Residential | Location: |
5908 SE 85TH ST |
|
| Building Name/Occupant: |
|
OKLAHOMA CITY |
||
| Owner Name 1: | CLARK ALLISON M |
Parcel PIN#: |
1531-12-477-2620 |
|
| Owner Name 2: | LAWRENCE GARY D JR | 1/4 section #: |
1531 |
|
| Owner Name 3: | Parent Acct: |
|
||
| Billing Address: | 5908 SE 85TH ST | Tax District: |
|
|
| City, State, Zip | OKLAHOMA CITY, OK 73135-6009 | School System: |
Moore #2 |
|
|
Country: (If noted) |
Land Size: |
0.1515 Acres |
||
|
Land Value: 27,786 |
|
|||
|
Sect 33-T11N-R2W Qtr SW |
PRAIRIE RIDGE
Block
011
Lot
003
|
|||
| Full Legal Description: PRAIRIE RIDGE 011 003 |
| Photo & Sketch (if available) | Comp Sales (ordered by relevancy) |
|
||||||||||||||||||
|
||||||||||||||||||||
| Value History (*The County Treasurer 405-713-1300 posts & collects actual tax amounts. Contact information HERE) | |||||||||||||
|---|---|---|---|---|---|---|---|---|---|---|---|---|---|
| Year | Market Value | Taxable Mkt Value | Gross Assessed | Exemption | Net Assessed | Millage | Est. Tax | Tax Savings | |||||
|
2025 |
212,000 |
212,000 |
23,320 |
0 |
23,320 |
123.20 |
$2,873 |
$0 |
|||||
|
2024 |
197,000 |
168,427 |
18,526 |
0 |
18,526 |
122.28 |
$2,265 |
$384 |
|||||
|
2023 |
200,500 |
160,407 |
17,644 |
0 |
17,644 |
121.63 |
$2,146 |
$536 |
|||||
|
2022 |
173,500 |
152,769 |
16,804 |
1,000 |
15,804 |
124.33 |
$1,965 |
$408 |
|||||
|
2021 |
152,500 |
148,320 |
16,315 |
1,000 |
15,315 |
123.94 |
$1,898 |
$181 |
|||||
| Property Account Status/Adjustments/Exemptions | ||
|---|---|---|
| Account # | Exemption Description | Amount |
|
R124772620 |
Homestead |
1,000 |
| Property Deed Transaction History (Recorded in the County Clerk's Office) | ||||||||||
|---|---|---|---|---|---|---|---|---|---|---|
| Date | Type | Book | Page | Price | Grantor | Grantee | ||||
|
8/11/2025 |
|
Deeds |
$263,000 |
S MARSHALL ENTERPRISES LLC |
CLARK ALLISON M |
|||||
|
4/26/2024 |
|
Deeds |
$158,000 |
WRIGHT RACHEL DELPHINE & MAURICE |
S MARSHALL ENTERPRISES LLC |
|||||
|
2/5/2018 |
|
Deeds |
$0 |
FOREMAN RACHEL DELPHINE |
WRIGHT RACHEL DELPHINE & MAURICE |
|||||
|
10/18/2012 |
|
Deeds |
$0 |
FOREMAN RACHEL DELPHINE PENN ALLICIA CHARAE |
FOREMAN RACHEL DELPHINE |
|||||
|
8/29/2008 |
|
Deeds |
$0 |
JONES RACHEL D |
FOREMAN RACHEL DELPHINE |
|||||
| Last Mailed Notice of Value (N.O.V.) Information/History | ||||||||
|---|---|---|---|---|---|---|---|---|
| Year | Date | Market Value | Taxable Market Value | Gross Assessed | Exemption | Net Assessed | ||
|
2026 |
02/06/2026 |
255,500 |
255,500 |
28,105 |
1,000 |
27,105 |
||
|
2025 |
01/31/2025 |
212,000 |
212,000 |
23,320 |
0 |
23,320 |
||
|
2024 |
01/22/2024 |
197,000 |
168,427 |
18,526 |
0 |
18,526 |
||
|
2023 |
01/23/2023 |
200,500 |
157,352 |
17,308 |
1,000 |
16,308 |
||
|
2023 |
03/02/2023 |
200,500 |
160,407 |
17,644 |
0 |
17,644 |
||
| Property Building Permit History | |||||||||||
|---|---|---|---|---|---|---|---|---|---|---|---|
| Issued | Permit # | Provided by | Bldg # | Description | Est Construction Cost | Status | |||||
| No Building Permit records returned. | |||||||||||
| Click button on building number to access detailed information: | ||||||
|---|---|---|---|---|---|---|
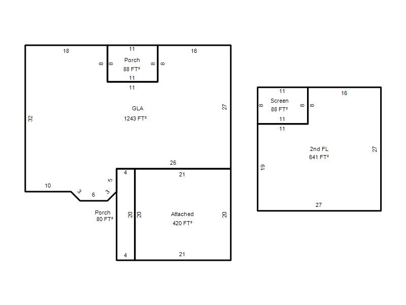
| Bldg # | Vacant/Improved Land | Bldg Description | Year Built | SqFt | # Stories | |
|
1 |
Improved |
1½ Story Fin |
1986 |
1,884 |
1.5 Stories |
|