|
|
|
| Larry Stein Oklahoma County Assessor (405) 713-1200 - Public Access System |
|
|
|
|
|
|
| Real Property Display - Screen Produced 4/1/2026 7:20:08 AM | ||||
|---|---|---|---|---|
| Account: R107986300 | Type: Residential | Location: |
2431 SW 24TH ST |
|
| Building Name/Occupant: |
|
OKLAHOMA CITY |
||
| Owner Name 1: | CONTRERAS ERIKA |
Parcel PIN#: |
1626-10-798-6300 |
|
| Owner Name 2: | 1/4 section #: |
1626 |
||
| Owner Name 3: | Parent Acct: |
|
||
| Billing Address: | 2431 SW 24TH ST | Tax District: |
|
|
| City, State, Zip | OKLAHOMA CITY, OK 73108 | School System: |
Oklahoma City #89 |
|
|
Country: (If noted) |
UNITED STATES |
Land Size: |
0.1607 Acres |
|
|
Land Value: 13,300 |
|
|||
|
Sect 7-T11N-R3W Qtr SE |
INDUSTRIAL ADDITION
Block
067
Lot
000
|
|||
| Full Legal Description: INDUSTRIAL ADDITION 067 000 LOTS 24 & 25 |
| Photo & Sketch (if available) | Comp Sales (ordered by relevancy) |
|
||||||||||||||||||
|
||||||||||||||||||||
| Value History (*The County Treasurer 405-713-1300 posts & collects actual tax amounts. Contact information HERE) | |||||||||||||
|---|---|---|---|---|---|---|---|---|---|---|---|---|---|
| Year | Market Value | Taxable Mkt Value | Gross Assessed | Exemption | Net Assessed | Millage | Est. Tax | Tax Savings | |||||
|
2026 |
135,000 |
135,000 |
14,850 |
1,000 |
13,850 |
119.02 |
$1,648 |
$119 |
|||||
|
2025 |
136,500 |
136,500 |
15,015 |
0 |
15,015 |
119.02 |
$1,787 |
$0 |
|||||
|
2024 |
87,500 |
49,198 |
5,411 |
0 |
5,411 |
119.70 |
$648 |
$504 |
|||||
|
2023 |
87,000 |
46,856 |
5,153 |
0 |
5,153 |
118.33 |
$610 |
$523 |
|||||
|
2022 |
73,500 |
44,625 |
4,908 |
0 |
4,908 |
112.69 |
$553 |
$358 |
|||||
| Property Account Status/Adjustments/Exemptions | ||
|---|---|---|
| Account # | Exemption Description | Amount |
|
R107986300 |
3% Cap Homestead |
0 |
|
R107986300 |
Homestead |
1,000 |
| Property Deed Transaction History (Recorded in the County Clerk's Office) | ||||||||||
|---|---|---|---|---|---|---|---|---|---|---|
| Date | Type | Book | Page | Price | Grantor | Grantee | ||||
|
9/18/2024 |
|
Deeds |
$135,000 |
HAWKINS JOHN R |
CONTRERAS ERIKA |
|||||
|
11/20/2002 |
|
Deeds |
$42,000 |
SANCHEZ ENTERPRISES |
HAWKINS JOHN R |
|||||
|
6/3/2002 |
|
Mult Parcel |
$33,500 |
METROPOLITAN DISTRIBUTION CENTER INC |
SANCHEZ ENTERPRISES |
|||||
|
8/21/1996 |
|
Historical |
$13,000 |
MYERS DIANE LYNN |
METROPOLITAN DISTRIBUTION |
|||||
|
6/22/1995 |
|
Historical |
$12,000 |
MYERS DIANE L PERS REP |
MYERS DIANE LYNN |
|||||
| Last Mailed Notice of Value (N.O.V.) Information/History | ||||||||
|---|---|---|---|---|---|---|---|---|
| Year | Date | Market Value | Taxable Market Value | Gross Assessed | Exemption | Net Assessed | ||
|
2025 |
01/31/2025 |
136,500 |
136,500 |
15,015 |
0 |
15,015 |
||
|
2024 |
01/22/2024 |
87,500 |
49,198 |
5,411 |
0 |
5,411 |
||
|
2023 |
01/23/2023 |
87,000 |
46,856 |
5,153 |
0 |
5,153 |
||
|
2022 |
02/22/2022 |
73,500 |
44,625 |
4,908 |
0 |
4,908 |
||
|
2019 |
02/26/2019 |
46,000 |
46,000 |
5,060 |
0 |
5,060 |
||
| Property Building Permit History | |||||||||||
|---|---|---|---|---|---|---|---|---|---|---|---|
| Issued | Permit # | Provided by | Bldg # | Description | Est Construction Cost | Status | |||||
| No Building Permit records returned. | |||||||||||
| Click button on building number to access detailed information: | ||||||
|---|---|---|---|---|---|---|
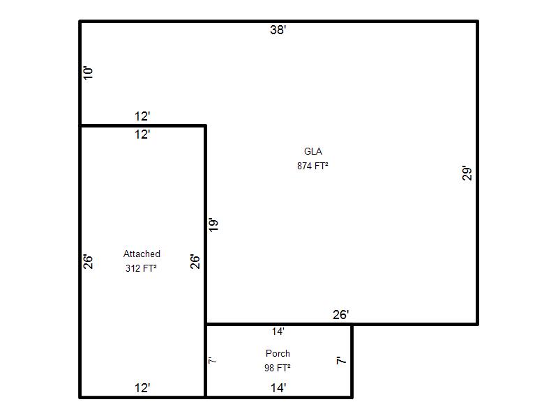
| Bldg # | Vacant/Improved Land | Bldg Description | Year Built | SqFt | # Stories | |
|
1 |
Improved |
Ranch 1 Story |
1959 |
874 |
1 Stories |
|