|
|
|
| Larry Stein Oklahoma County Assessor (405) 713-1200 - Public Access System |
|
|
|
|
|
|
| Real Property Display - Screen Produced 3/14/2026 6:53:00 AM | ||||
|---|---|---|---|---|
| Account: R144441910 | Type: Residential | Location: |
18624 SUNRISE RD |
|
| Building Name/Occupant: |
|
OKLAHOMA CITY |
||
| Owner Name 1: | COLE LANDEN |
Parcel PIN#: |
1129-14-444-1910 |
|
| Owner Name 2: | 1/4 section #: |
1129 |
||
| Owner Name 3: | Parent Acct: |
|
||
| Billing Address: | 18624 SUNRISE RD | Tax District: |
|
|
| City, State, Zip | NEWALLA, OK 74857 | School System: |
McLoud #1 |
|
|
Country: (If noted) |
Land Size: |
4.3300 Acres |
||
|
Land Value: 47,630 |
|
|||
|
Sect 33-T11N-R1E Qtr NE |
UNPLTD PT SEC 33 11N 1E
Block
000
Lot
000
|
|||
| Full Legal Description: UNPLTD PT NE4 SEC 33 11N 1E W 1/2 OF SE4 NW4 NE4 EX THE W30FT & N30FT |
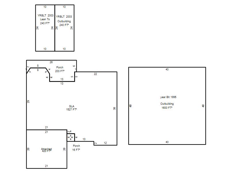
| Photo & Sketch (if available) | Comp Sales (ordered by relevancy) |
|
||||||||||||||||||
|
||||||||||||||||||||
| Value History (*The County Treasurer 405-713-1300 posts & collects actual tax amounts. Contact information HERE) | |||||||||||||
|---|---|---|---|---|---|---|---|---|---|---|---|---|---|
| Year | Market Value | Taxable Mkt Value | Gross Assessed | Exemption | Net Assessed | Millage | Est. Tax | Tax Savings | |||||
|
2025 |
350,000 |
257,268 |
28,299 |
1,000 |
27,299 |
107.58 |
$2,937 |
$1,205 |
|||||
|
2024 |
339,000 |
249,775 |
27,475 |
1,000 |
26,475 |
108.01 |
$2,860 |
$1,168 |
|||||
|
2023 |
242,500 |
242,500 |
26,675 |
1,000 |
25,675 |
106.94 |
$2,746 |
$107 |
|||||
|
2022 |
269,000 |
179,815 |
19,779 |
1,000 |
18,779 |
108.95 |
$2,046 |
$1,178 |
|||||
|
2021 |
246,000 |
174,578 |
19,203 |
1,000 |
18,203 |
135.78 |
$2,472 |
$1,203 |
|||||
| Property Account Status/Adjustments/Exemptions | ||
|---|---|---|
| Account # | Exemption Description | Amount |
|
R144441910 |
3% Cap Homestead |
0 |
|
R144441910 |
Homestead |
1,000 |
| Property Deed Transaction History (Recorded in the County Clerk's Office) | ||||||||||
|---|---|---|---|---|---|---|---|---|---|---|
| Date | Type | Book | Page | Price | Grantor | Grantee | ||||
|
9/16/2022 |
|
Deeds |
$0 |
GAMBLE ALICE TRS |
GAMBLE ALICE L TRS |
|||||
|
9/16/2022 |
|
Deeds |
$240,000 |
GAMBLE ALICE L TRS |
COLE LANDEN |
|||||
|
2/3/2020 |
|
Deeds |
$0 |
GAMBLE ALFRED B JR & ALICE L |
GAMBLE ALICE L |
|||||
|
2/3/2020 |
|
Deeds |
$0 |
GAMBLE ALICE L |
GAMBLE ALICE TRS |
|||||
|
5/16/1995 |
|
Historical |
$15,000 |
RUNIONS CHARLES R & PHYLLIS J |
GAMBLE ALFRED B JR & ALICE L |
|||||
| Last Mailed Notice of Value (N.O.V.) Information/History | ||||||||
|---|---|---|---|---|---|---|---|---|
| Year | Date | Market Value | Taxable Market Value | Gross Assessed | Exemption | Net Assessed | ||
|
2026 |
02/06/2026 |
349,500 |
264,986 |
29,147 |
1,000 |
28,147 |
||
|
2025 |
01/31/2025 |
350,000 |
257,268 |
28,299 |
1,000 |
27,299 |
||
|
2024 |
01/22/2024 |
339,000 |
249,775 |
27,475 |
1,000 |
26,475 |
||
|
2023 |
01/23/2023 |
242,500 |
242,500 |
26,675 |
0 |
26,675 |
||
|
2022 |
02/22/2022 |
269,000 |
179,815 |
19,779 |
1,000 |
18,779 |
||
| Property Building Permit History | ||||||
|---|---|---|---|---|---|---|
| Issued | Permit # | Provided by | Bldg # | Description | Est Construction Cost | Status |
|
4/24/1995 |
10239795 |
OKLAHOMA CITY |
1 |
Main Dwellin |
60,000 |
Inactive |
| Click button on building number to access detailed information: | ||||||
|---|---|---|---|---|---|---|
| Bldg # | Vacant/Improved Land | Bldg Description | Year Built | SqFt | # Stories | |
|
1 |
Improved |
Ranch 1 Story |
1995 |
1,527 |
1 Stories |
|