|
|
|
| Larry Stein Oklahoma County Assessor (405) 713-1200 - Public Access System |
|
|
|
|
|
|
| Real Property Display - Screen Produced 3/18/2026 5:37:16 AM | ||||
|---|---|---|---|---|
| Account: R073648200 | Type: Residential | Location: |
604 SE 39TH ST |
|
| Building Name/Occupant: |
|
OKLAHOMA CITY |
||
| Owner Name 1: | FAMILY HOME SOLUTIONS LLC |
Parcel PIN#: |
1658-07-364-8200 |
|
| Owner Name 2: | 1/4 section #: |
1658 |
||
| Owner Name 3: | Parent Acct: |
|
||
| Billing Address: | PO BOX 50660 | Tax District: |
|
|
| City, State, Zip | MIDWEST CITY, OK 73140 | School System: |
Oklahoma City #89 |
|
|
Country: (If noted) |
UNITED STATES |
Land Size: |
0.2806 Acres |
|
|
Land Value: 13,448 |
|
|||
|
Sect 15-T11N-R3W Qtr SE |
TAPPAN HEIGHTS ADD
Block
020
Lot
000
|
|||
| Full Legal Description: TAPPAN HEIGHTS ADD 020 000 LOTS 61 THRU 63 |
| Photo & Sketch (if available) | Comp Sales (ordered by relevancy) |
|
||||||||||||||||||
|
||||||||||||||||||||
| Value History (*The County Treasurer 405-713-1300 posts & collects actual tax amounts. Contact information HERE) | |||||||||||||
|---|---|---|---|---|---|---|---|---|---|---|---|---|---|
| Year | Market Value | Taxable Mkt Value | Gross Assessed | Exemption | Net Assessed | Millage | Est. Tax | Tax Savings | |||||
|
2025 |
102,000 |
102,000 |
11,220 |
0 |
11,220 |
119.02 |
$1,335 |
$0 |
|||||
|
2024 |
89,000 |
25,655 |
2,821 |
0 |
2,821 |
119.70 |
$338 |
$834 |
|||||
|
2023 |
79,500 |
24,434 |
2,687 |
2,000 |
687 |
118.33 |
$81 |
$953 |
|||||
|
2022 |
66,000 |
24,434 |
2,687 |
2,000 |
687 |
112.69 |
$78 |
$741 |
|||||
|
2021 |
56,000 |
24,434 |
2,687 |
2,000 |
687 |
112.29 |
$77 |
$614 |
|||||
| Property Account Status/Adjustments/Exemptions | ||
|---|---|---|
| Account # | Exemption Description | Amount |
|
R073648200 |
5% Capped Account |
0 |
| Property Deed Transaction History (Recorded in the County Clerk's Office) | ||||||||||
|---|---|---|---|---|---|---|---|---|---|---|
| Date | Type | Book | Page | Price | Grantor | Grantee | ||||
|
5/13/2025 |
|
Hmstd Off & |
$0 |
BIGHAM EMMA N |
BIGHAM MARTHA N |
|||||
|
5/24/2024 |
|
Deeds |
$96,000 |
NEXT LEVEL FLIPPING LLP |
FAMILY HOUSE SOLUTIONS LLC |
|||||
|
4/29/2024 |
|
Hmstd Off & |
$0 |
BIGHAM EMMA |
BIGHAM SHERI ANNETTE |
|||||
|
4/29/2024 |
|
Deeds |
$85,000 |
BIGHAM SHERI ANNETTE |
NEXT LEVEL FLIPPING LLP |
|||||
|
8/3/2023 |
|
Hmstd Off & |
$0 |
BIGHAM MARTHA NELL |
BIGHAM SHERI ANNETTE |
|||||
| Last Mailed Notice of Value (N.O.V.) Information/History | ||||||||
|---|---|---|---|---|---|---|---|---|
| Year | Date | Market Value | Taxable Market Value | Gross Assessed | Exemption | Net Assessed | ||
|
2026 |
02/06/2026 |
107,500 |
107,100 |
11,781 |
0 |
11,781 |
||
|
2025 |
01/31/2025 |
102,000 |
102,000 |
11,220 |
0 |
11,220 |
||
|
2024 |
01/22/2024 |
89,000 |
25,655 |
2,821 |
0 |
2,821 |
||
|
2023 |
01/23/2023 |
79,500 |
24,434 |
2,687 |
2,000 |
687 |
||
|
2022 |
02/22/2022 |
66,000 |
24,434 |
2,687 |
2,000 |
687 |
||
| Property Building Permit History | |||||||||||
|---|---|---|---|---|---|---|---|---|---|---|---|
| Issued | Permit # | Provided by | Bldg # | Description | Est Construction Cost | Status | |||||
| No Building Permit records returned. | |||||||||||
| Click button on building number to access detailed information: | ||||||
|---|---|---|---|---|---|---|
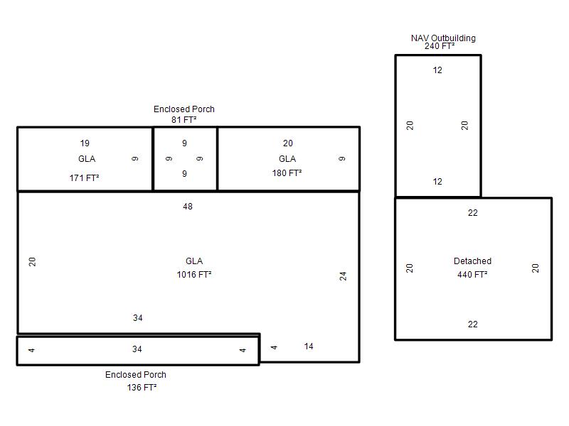
| Bldg # | Vacant/Improved Land | Bldg Description | Year Built | SqFt | # Stories | |
|
1 |
Improved |
Ranch 1 Story |
1937 |
1,367 |
1 Stories |
|