|
|
|
| Larry Stein Oklahoma County Assessor (405) 713-1200 - Public Access System |
|
|
|
|
|
|
| Real Property Display - Screen Produced 4/2/2026 9:08:53 AM | ||||
|---|---|---|---|---|
| Account: R094558090 | Type: Residential | Location: |
320 SE 41ST ST |
|
| Building Name/Occupant: |
|
OKLAHOMA CITY |
||
| Owner Name 1: | VENTURA PROPERTY LLC |
Parcel PIN#: |
1659-09-455-8090 |
|
| Owner Name 2: | 1/4 section #: |
1659 |
||
| Owner Name 3: | Parent Acct: |
|
||
| Billing Address: | 311 SE 41ST ST | Tax District: |
|
|
| City, State, Zip | OKLAHOMA CITY, OK 73129 | School System: |
Oklahoma City #89 |
|
|
Country: (If noted) |
Land Size: |
0.1607 Acres |
||
|
Land Value: 11,900 |
|
|||
|
Sect 15-T11N-R3W Qtr SW |
SHIELDS SO OKLA CITY
Block
081
Lot
000
|
|||
| Full Legal Description: SHIELDS SO OKLA CITY 081 000 LOTS 11 & 12 |
| Photo & Sketch (if available) | Comp Sales (ordered by relevancy) |
|
||||||||||||||||||
|
||||||||||||||||||||
| Value History (*The County Treasurer 405-713-1300 posts & collects actual tax amounts. Contact information HERE) | |||||||||||||
|---|---|---|---|---|---|---|---|---|---|---|---|---|---|
| Year | Market Value | Taxable Mkt Value | Gross Assessed | Exemption | Net Assessed | Millage | Est. Tax | Tax Savings | |||||
|
2026 |
105,500 |
87,979 |
9,676 |
0 |
9,676 |
119.02 |
$1,152 |
$229 |
|||||
|
2025 |
93,500 |
83,790 |
9,216 |
0 |
9,216 |
119.02 |
$1,097 |
$127 |
|||||
|
2024 |
89,500 |
79,800 |
8,778 |
0 |
8,778 |
119.70 |
$1,051 |
$128 |
|||||
|
2023 |
76,000 |
76,000 |
8,360 |
0 |
8,360 |
118.33 |
$989 |
$0 |
|||||
|
2022 |
68,500 |
63,525 |
6,987 |
0 |
6,987 |
112.69 |
$787 |
$62 |
|||||
| Property Account Status/Adjustments/Exemptions | ||
|---|---|---|
| Account # | Exemption Description | Amount |
|
R094558090 |
5% Capped Account |
0 |
| Property Deed Transaction History (Recorded in the County Clerk's Office) | ||||||||||
|---|---|---|---|---|---|---|---|---|---|---|
| Date | Type | Book | Page | Price | Grantor | Grantee | ||||
|
12/1/2022 |
|
Hmstd Off & |
$0 |
VENTURA PROPERTY MAINTENANCE LLC |
VENTURA PROPERTY LLC |
|||||
|
8/3/2022 |
|
Deeds |
$80,000 |
ORTEGA MIGUEL |
VENTURA PROPERTY MAINTENANCE LLC |
|||||
|
7/26/2022 |
|
Hmstd Off & |
$0 |
GOMEZ JAVIER HERRERA |
ORTEGA MIGUEL |
|||||
|
2/13/2020 |
|
Deeds |
$35,000 |
GOMEZ JAVIER HERRERA |
ORTEGA MIGUEL |
|||||
|
4/22/2009 |
|
Deeds |
$23,000 |
MANRIQUEZ MARIA DEL CARMEN |
GOMEZ JAVIER HERRERA |
|||||
| Last Mailed Notice of Value (N.O.V.) Information/History | ||||||||
|---|---|---|---|---|---|---|---|---|
| Year | Date | Market Value | Taxable Market Value | Gross Assessed | Exemption | Net Assessed | ||
|
2026 |
02/06/2026 |
105,500 |
87,979 |
9,676 |
0 |
9,676 |
||
|
2025 |
01/31/2025 |
93,500 |
83,790 |
9,216 |
0 |
9,216 |
||
|
2024 |
01/22/2024 |
89,500 |
79,800 |
8,778 |
0 |
8,778 |
||
|
2023 |
01/23/2023 |
76,000 |
76,000 |
8,360 |
0 |
8,360 |
||
|
2022 |
02/22/2022 |
68,500 |
63,525 |
6,987 |
0 |
6,987 |
||
| Property Building Permit History | |||||||||||
|---|---|---|---|---|---|---|---|---|---|---|---|
| Issued | Permit # | Provided by | Bldg # | Description | Est Construction Cost | Status | |||||
| No Building Permit records returned. | |||||||||||
| Click button on building number to access detailed information: | ||||||
|---|---|---|---|---|---|---|
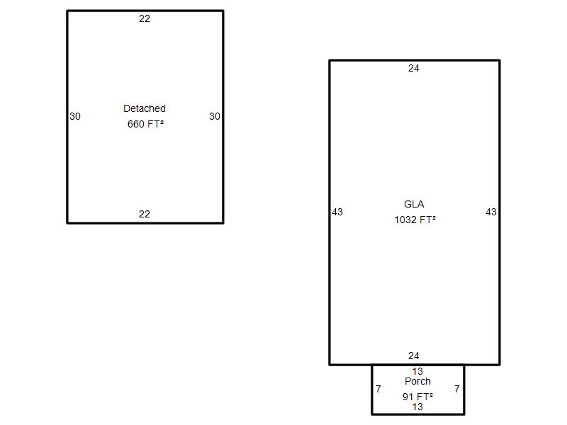
| Bldg # | Vacant/Improved Land | Bldg Description | Year Built | SqFt | # Stories | |
|
1 |
Improved |
Ranch 1 Story |
1922 |
1,032 |
1 Stories |
|