|
|
|
| Larry Stein Oklahoma County Assessor (405) 713-1200 - Public Access System |
|
|
|
|
|
|
| Real Property Display - Screen Produced 3/26/2026 11:30:01 AM | ||||
|---|---|---|---|---|
| Account: R105344400 | Type: Residential | Location: |
3241 S CLEGERN ST |
|
| Building Name/Occupant: |
|
OKLAHOMA CITY |
||
| Owner Name 1: | SERRANO DANNIA |
Parcel PIN#: |
1665-10-534-4400 |
|
| Owner Name 2: | 1/4 section #: |
1665 |
||
| Owner Name 3: | Parent Acct: |
|
||
| Billing Address: | 3241 S CLEGERN ST | Tax District: |
|
|
| City, State, Zip | OKLAHOMA CITY, OK 73109-2701 | School System: |
Oklahoma City #89 |
|
|
Country: (If noted) |
Land Size: |
0.1550 Acres |
||
|
Land Value: 12,150 |
|
|||
|
Sect 17-T11N-R3W Qtr NE |
W F HAMMOND ADDITION
Block
001
Lot
000
|
|||
| Full Legal Description: W F HAMMOND ADDITION 001 000 LOTS 21 & 22 |
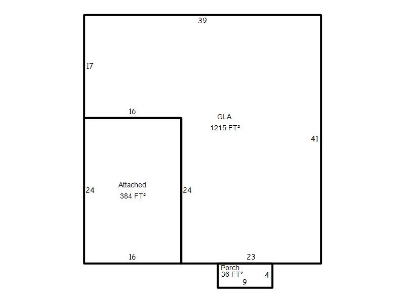
| Photo & Sketch (if available) | Comp Sales (ordered by relevancy) |
|
||||||||||||||||||
|
||||||||||||||||||||
| Value History (*The County Treasurer 405-713-1300 posts & collects actual tax amounts. Contact information HERE) | |||||||||||||
|---|---|---|---|---|---|---|---|---|---|---|---|---|---|
| Year | Market Value | Taxable Mkt Value | Gross Assessed | Exemption | Net Assessed | Millage | Est. Tax | Tax Savings | |||||
|
2026 |
161,000 |
161,000 |
17,710 |
0 |
17,710 |
119.02 |
$2,108 |
$0 |
|||||
|
2025 |
159,500 |
159,500 |
17,545 |
0 |
17,545 |
119.02 |
$2,088 |
$0 |
|||||
|
2024 |
150,000 |
110,555 |
12,161 |
0 |
12,161 |
119.70 |
$1,456 |
$519 |
|||||
|
2023 |
136,000 |
105,291 |
11,581 |
0 |
11,581 |
118.33 |
$1,370 |
$400 |
|||||
|
2022 |
125,500 |
100,278 |
11,030 |
0 |
11,030 |
112.69 |
$1,243 |
$313 |
|||||
| Property Account Status/Adjustments/Exemptions | ||
|---|---|---|
| Account # | Exemption Description | Amount |
|
R105344400 |
5% Capped Account |
0 |
| Property Deed Transaction History (Recorded in the County Clerk's Office) | ||||||||||
|---|---|---|---|---|---|---|---|---|---|---|
| Date | Type | Book | Page | Price | Grantor | Grantee | ||||
|
5/30/2024 |
|
Deeds |
$150,500 |
WE BUY HOUSES LLC |
SERRANO DANNIA |
|||||
|
2/3/2016 |
|
Hmstd Off & |
$0 |
WE BUY HOUSES LLC 3241 S CLEGERN SERIES |
WE BUY HOUSES LLC |
|||||
|
6/8/2015 |
|
Hmstd Off & |
$0 |
WE BUY HOUSES LLC |
WE BUY HOUSES LLC 3241 S CLEGERN SERIES |
|||||
|
3/9/2009 |
|
Deeds |
$1,500 |
KENNEDY ALAN L & KATHLEEN S |
WE BUY HOUSES LLC |
|||||
|
9/11/2006 |
|
Deeds |
$57,000 |
FEDERAL NATIONAL MORTGAGE ASSOCIATON |
KENNEDY ALAN L & KATHLEEN S |
|||||
| Last Mailed Notice of Value (N.O.V.) Information/History | ||||||||
|---|---|---|---|---|---|---|---|---|
| Year | Date | Market Value | Taxable Market Value | Gross Assessed | Exemption | Net Assessed | ||
|
2026 |
02/06/2026 |
161,000 |
161,000 |
17,710 |
0 |
17,710 |
||
|
2025 |
01/31/2025 |
159,500 |
159,500 |
17,545 |
0 |
17,545 |
||
|
2024 |
01/22/2024 |
150,000 |
110,555 |
12,161 |
0 |
12,161 |
||
|
2023 |
01/23/2023 |
136,000 |
105,291 |
11,581 |
0 |
11,581 |
||
|
2022 |
02/22/2022 |
125,500 |
100,278 |
11,030 |
0 |
11,030 |
||
| Property Building Permit History | ||||||
|---|---|---|---|---|---|---|
| Issued | Permit # | Provided by | Bldg # | Description | Est Construction Cost | Status |
|
8/27/2009 |
10361192 |
OKLAHOMA CITY |
1 |
Fire Remodel |
20,000 |
Inactive |
|
7/15/2008 |
10357559 |
OKLAHOMA CITY |
1 |
Burn - Trip |
20,000 |
Inactive |
| Click button on building number to access detailed information: | ||||||
|---|---|---|---|---|---|---|
| Bldg # | Vacant/Improved Land | Bldg Description | Year Built | SqFt | # Stories | |
|
1 |
Improved |
Ranch 1 Story |
1988 |
1,215 |
1 Stories |
|