|
|
|
| Larry Stein Oklahoma County Assessor (405) 713-1200 - Public Access System |
|
|
|
|
|
|
| Real Property Display - Screen Produced 4/6/2026 5:02:20 AM | ||||
|---|---|---|---|---|
| Account: R155303310 | Type: Residential | Location: |
700 S FRIENDLY RD |
|
| Building Name/Occupant: |
|
MIDWEST CITY |
||
| Owner Name 1: | IRVIN LANDON & STACIE |
Parcel PIN#: |
1220-15-530-3310 |
|
| Owner Name 2: | 1/4 section #: |
1220 |
||
| Owner Name 3: | Parent Acct: |
|
||
| Billing Address: | 700 S FRIENDLY RD | Tax District: |
|
|
| City, State, Zip | MIDWEST CITY, OK 73130-5807 | School System: |
Choctaw #4 |
|
|
Country: (If noted) |
Land Size: |
0.6100 Acres |
||
|
Land Value: 37,491 |
|
|||
|
Sect 5-T11N-R1W Qtr NW |
FRIENDLY ACRES SUB
Block
001
Lot
000
|
|||
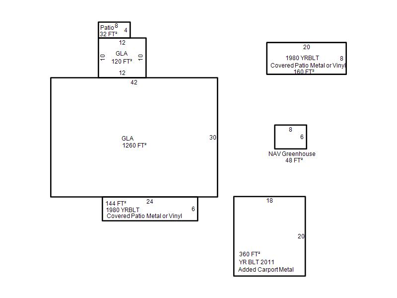
| Full Legal Description: FRIENDLY ACRES SUB 001 000 PT OF S200FT OF BLK 1 DESC BEG 100FT N OF SW/C BLK 1 TH N100FT E266FT S200FT W10FT N100FT W256FT TO BEG PT OF LOTS 13 & 14 |
| Photo & Sketch (if available) | Comp Sales (ordered by relevancy) |
|
||||||||||||||||||
|
||||||||||||||||||||
| Value History (*The County Treasurer 405-713-1300 posts & collects actual tax amounts. Contact information HERE) | |||||||||||||
|---|---|---|---|---|---|---|---|---|---|---|---|---|---|
| Year | Market Value | Taxable Mkt Value | Gross Assessed | Exemption | Net Assessed | Millage | Est. Tax | Tax Savings | |||||
|
2026 |
156,500 |
156,500 |
17,215 |
0 |
17,215 |
127.03 |
$2,187 |
$0 |
|||||
|
2025 |
115,000 |
44,075 |
4,848 |
1,000 |
3,848 |
127.03 |
$489 |
$1,118 |
|||||
|
2024 |
99,500 |
42,792 |
4,707 |
1,000 |
3,707 |
127.00 |
$471 |
$919 |
|||||
|
2023 |
102,000 |
41,546 |
4,569 |
1,000 |
3,569 |
128.50 |
$459 |
$983 |
|||||
|
2022 |
92,500 |
40,336 |
4,436 |
1,000 |
3,436 |
127.22 |
$437 |
$857 |
|||||
| Property Account Status/Adjustments/Exemptions | ||||||
|---|---|---|---|---|---|---|
| Account # | Exemption Description | Amount | ||||
| No adjustment/exemption records returned. | ||||||
| Property Deed Transaction History (Recorded in the County Clerk's Office) | ||||||||||
|---|---|---|---|---|---|---|---|---|---|---|
| Date | Type | Book | Page | Price | Grantor | Grantee | ||||
|
5/16/2025 |
|
Deeds |
$177,000 |
DILL BILLY RAY & MARY ANN |
IRVIN LANDON & STACIE |
|||||
|
5/6/2024 |
|
Deeds |
$0 |
DILL BILLY RAY |
DILL BILLY RAY & MARY ANN |
|||||
|
8/30/2019 |
|
Deeds |
$0 |
DILL BILLY RAY & MARY ANN |
DILL BRIAN RAY |
|||||
|
9/23/2016 |
|
Hmstd Off & |
$0 |
DILL LOLA M |
DILL BILLY RAY & MARY ANN |
|||||
|
1/6/2015 |
|
Deeds |
$0 |
DILL LOLA M MCBRIDE LOIS A |
DILL LOLA M |
|||||
| Last Mailed Notice of Value (N.O.V.) Information/History | ||||||||
|---|---|---|---|---|---|---|---|---|
| Year | Date | Market Value | Taxable Market Value | Gross Assessed | Exemption | Net Assessed | ||
|
2026 |
02/06/2026 |
156,500 |
156,500 |
17,215 |
0 |
17,215 |
||
|
2025 |
01/31/2025 |
115,000 |
44,075 |
4,848 |
1,000 |
3,848 |
||
|
2024 |
01/22/2024 |
99,500 |
42,792 |
4,707 |
1,000 |
3,707 |
||
|
2023 |
01/23/2023 |
102,000 |
41,546 |
4,569 |
1,000 |
3,569 |
||
|
2022 |
02/22/2022 |
92,500 |
40,336 |
4,436 |
1,000 |
3,436 |
||
| Property Building Permit History | |||||||||||
|---|---|---|---|---|---|---|---|---|---|---|---|
| Issued | Permit # | Provided by | Bldg # | Description | Est Construction Cost | Status | |||||
| No Building Permit records returned. | |||||||||||
| Click button on building number to access detailed information: | ||||||
|---|---|---|---|---|---|---|
| Bldg # | Vacant/Improved Land | Bldg Description | Year Built | SqFt | # Stories | |
|
1 |
Improved |
Ranch 1 Story |
1940 |
1,380 |
1 Stories |
|