|
|
|
| Larry Stein Oklahoma County Assessor (405) 713-1200 - Public Access System |
|
|
|
|
|
|
| Real Property Display - Screen Produced 3/16/2026 3:55:48 AM | ||||
|---|---|---|---|---|
| Account: R155351245 | Type: Residential | Location: |
10628 E RENO AVE |
|
| Building Name/Occupant: |
|
MIDWEST CITY |
||
| Owner Name 1: | PHOENIX RENOVATIONS LLC |
Parcel PIN#: |
1221-15-535-1245 |
|
| Owner Name 2: | 1/4 section #: |
1221 |
||
| Owner Name 3: | Parent Acct: |
|
||
| Billing Address: | PO BOX 30287 | Tax District: |
|
|
| City, State, Zip | OKLAHOMA CITY, OK 73140 | School System: |
Choctaw #4 |
|
|
Country: (If noted) |
Land Size: |
0.4304 Acres |
||
|
Land Value: 32,208 |
|
|||
|
Sect 6-T11N-R1W Qtr NE |
POINTONS GLENDALE ADD
Block
001
Lot
015
|
|||
| Full Legal Description: POINTONS GLENDALE ADD 001 015 |
| Photo & Sketch (if available) | Comp Sales (ordered by relevancy) |
|
||||||||||||||||||
|
||||||||||||||||||||
| Value History (*The County Treasurer 405-713-1300 posts & collects actual tax amounts. Contact information HERE) | |||||||||||||
|---|---|---|---|---|---|---|---|---|---|---|---|---|---|
| Year | Market Value | Taxable Mkt Value | Gross Assessed | Exemption | Net Assessed | Millage | Est. Tax | Tax Savings | |||||
|
2025 |
87,500 |
80,325 |
8,835 |
0 |
8,835 |
127.03 |
$1,122 |
$100 |
|||||
|
2024 |
76,500 |
76,500 |
8,415 |
0 |
8,415 |
127.00 |
$1,069 |
$0 |
|||||
|
2023 |
70,500 |
60,196 |
6,621 |
0 |
6,621 |
128.50 |
$851 |
$146 |
|||||
|
2022 |
65,500 |
57,330 |
6,306 |
0 |
6,306 |
127.22 |
$802 |
$114 |
|||||
|
2021 |
56,000 |
54,600 |
6,006 |
0 |
6,006 |
126.69 |
$761 |
$20 |
|||||
| Property Account Status/Adjustments/Exemptions | ||
|---|---|---|
| Account # | Exemption Description | Amount |
|
R155351245 |
5% Capped Account |
0 |
| Property Deed Transaction History (Recorded in the County Clerk's Office) | ||||||||||
|---|---|---|---|---|---|---|---|---|---|---|
| Date | Type | Book | Page | Price | Grantor | Grantee | ||||
|
1/6/2023 |
|
Deeds |
$66,500 |
SM INVESTMENTS LLC |
PHOENIX RENOVATIONS LLC |
|||||
|
5/22/2017 |
|
Mult Parcel |
$45,000 |
EFUZZ LLC |
SM INVESTMENTS LLC |
|||||
|
7/17/2013 |
|
Hmstd Off & |
$0 |
PRICE JANET SUE VOTAW JUANITA ANN |
EFUZZ LLC |
|||||
|
6/27/2013 |
|
Hmstd Off & |
$0 |
BURNETT ETHEL A TRS |
PRICE JANET SUE VOTAW JUANITA ANN |
|||||
|
12/30/2002 |
|
Deeds |
$0 |
BURNETT ETHEL A |
BURNETT ETHEL A TRS |
|||||
| Last Mailed Notice of Value (N.O.V.) Information/History | ||||||||
|---|---|---|---|---|---|---|---|---|
| Year | Date | Market Value | Taxable Market Value | Gross Assessed | Exemption | Net Assessed | ||
|
2026 |
02/06/2026 |
85,500 |
84,341 |
9,276 |
0 |
9,276 |
||
|
2025 |
01/31/2025 |
87,500 |
80,325 |
8,835 |
0 |
8,835 |
||
|
2024 |
01/22/2024 |
76,500 |
76,500 |
8,415 |
0 |
8,415 |
||
|
2023 |
01/23/2023 |
70,500 |
60,196 |
6,621 |
0 |
6,621 |
||
|
2022 |
02/22/2022 |
65,500 |
57,330 |
6,306 |
0 |
6,306 |
||
| Property Building Permit History | |||||||||||
|---|---|---|---|---|---|---|---|---|---|---|---|
| Issued | Permit # | Provided by | Bldg # | Description | Est Construction Cost | Status | |||||
| No Building Permit records returned. | |||||||||||
| Click button on building number to access detailed information: | ||||||
|---|---|---|---|---|---|---|
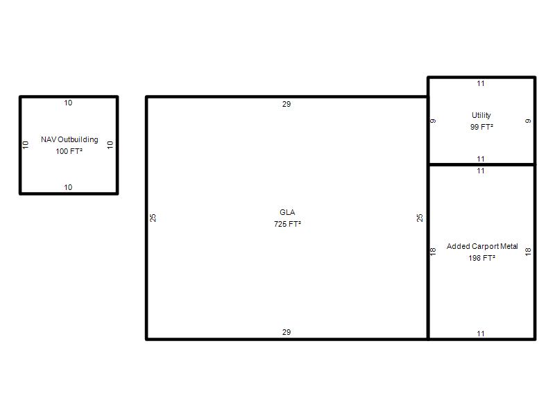
| Bldg # | Vacant/Improved Land | Bldg Description | Year Built | SqFt | # Stories | |
|
1 |
Improved |
Ranch 1 Story |
1953 |
725 |
1 Stories |
|