|
|
|
| Larry Stein Oklahoma County Assessor (405) 713-1200 - Public Access System |
|
|
|
|
|
|
| Real Property Display - Screen Produced 3/16/2026 10:11:10 PM | ||||
|---|---|---|---|---|
| Account: R074429038 | Type: Residential | Location: |
5209 S YOUNGS BLVD |
|
| Building Name/Occupant: |
|
OKLAHOMA CITY |
||
| Owner Name 1: | BUSH KOBE |
Parcel PIN#: |
1673-07-442-9038 |
|
| Owner Name 2: | 1/4 section #: |
1673 |
||
| Owner Name 3: | Parent Acct: |
|
||
| Billing Address: | 5209 S YOUNGS BLVD | Tax District: |
|
|
| City, State, Zip | OKLAHOMA CITY, OK 73119-4803 | School System: |
Oklahoma City #89 |
|
|
Country: (If noted) |
Land Size: |
0.1607 Acres |
||
|
Land Value: 15,750 |
|
|||
|
Sect 19-T11N-R3W Qtr NE |
MOORE HEIGHTS ADD
Block
030
Lot
000
|
|||
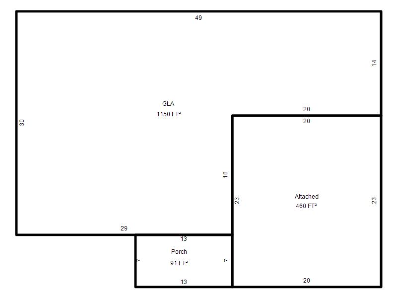
| Full Legal Description: MOORE HEIGHTS ADD 030 000 S70FT LOTS 1 THRU 4 |
| Photo & Sketch (if available) | Comp Sales (ordered by relevancy) |
|
||||||||||||||||||
|
||||||||||||||||||||
| Value History (*The County Treasurer 405-713-1300 posts & collects actual tax amounts. Contact information HERE) | |||||||||||||
|---|---|---|---|---|---|---|---|---|---|---|---|---|---|
| Year | Market Value | Taxable Mkt Value | Gross Assessed | Exemption | Net Assessed | Millage | Est. Tax | Tax Savings | |||||
|
2025 |
165,500 |
165,500 |
18,205 |
0 |
18,205 |
119.02 |
$2,167 |
$0 |
|||||
|
2024 |
114,000 |
114,000 |
12,540 |
0 |
12,540 |
119.70 |
$1,501 |
$0 |
|||||
|
2023 |
105,000 |
79,875 |
8,785 |
0 |
8,785 |
118.33 |
$1,040 |
$327 |
|||||
|
2022 |
90,500 |
76,072 |
8,367 |
0 |
8,367 |
112.69 |
$943 |
$179 |
|||||
|
2021 |
76,500 |
72,450 |
7,969 |
0 |
7,969 |
112.29 |
$895 |
$50 |
|||||
| Property Account Status/Adjustments/Exemptions | ||
|---|---|---|
| Account # | Exemption Description | Amount |
|
R074429038 |
5% Capped Account |
0 |
| Property Deed Transaction History (Recorded in the County Clerk's Office) | ||||||||||
|---|---|---|---|---|---|---|---|---|---|---|
| Date | Type | Book | Page | Price | Grantor | Grantee | ||||
|
6/10/2024 |
|
Deeds |
$180,000 |
ALEX STEELE PROPERTIES LLC |
BUSH KOBE |
|||||
|
11/10/2023 |
|
Deeds |
$95,000 |
AUSTIN PATRICIA |
ALEX STEELE PROPERTIES LLC |
|||||
|
8/15/2023 |
|
Hmstd Off & |
$0 |
AUSTIN DEWAYNE |
AUSTIN PATRICIA |
|||||
|
2/7/2007 |
|
Hmstd Off & |
$0 |
AUSTIN PATRICIA A & BOB J TRS AUSTIN PATRICIA A LIVING TRUS |
AUSTIN DEWAYNE |
|||||
|
7/16/1996 |
|
Historical |
$0 |
AUSTIN BOB J & PATRICIA A |
AUSTIN BOB J & PATRICIA A TRS |
|||||
| Last Mailed Notice of Value (N.O.V.) Information/History | ||||||||
|---|---|---|---|---|---|---|---|---|
| Year | Date | Market Value | Taxable Market Value | Gross Assessed | Exemption | Net Assessed | ||
|
2026 |
02/06/2026 |
168,000 |
168,000 |
18,480 |
0 |
18,480 |
||
|
2025 |
01/31/2025 |
165,500 |
165,500 |
18,205 |
0 |
18,205 |
||
|
2024 |
01/22/2024 |
114,000 |
114,000 |
12,540 |
0 |
12,540 |
||
|
2023 |
01/23/2023 |
105,000 |
79,875 |
8,785 |
0 |
8,785 |
||
|
2022 |
02/22/2022 |
90,500 |
76,072 |
8,367 |
0 |
8,367 |
||
| Property Building Permit History | |||||||||||
|---|---|---|---|---|---|---|---|---|---|---|---|
| Issued | Permit # | Provided by | Bldg # | Description | Est Construction Cost | Status | |||||
| No Building Permit records returned. | |||||||||||
| Click button on building number to access detailed information: | ||||||
|---|---|---|---|---|---|---|
| Bldg # | Vacant/Improved Land | Bldg Description | Year Built | SqFt | # Stories | |
|
1 |
Improved |
Ranch 1 Story |
1957 |
1,150 |
1 Stories |
|