|
|
|
| Larry Stein Oklahoma County Assessor (405) 713-1200 - Public Access System |
|
|
|
|
|
|
| Real Property Display - Screen Produced 4/3/2026 1:36:18 AM | ||||
|---|---|---|---|---|
| Account: R074411295 | Type: Residential | Location: |
2424 SW 54TH ST |
|
| Building Name/Occupant: |
|
OKLAHOMA CITY |
||
| Owner Name 1: | DUQUE JOSE |
Parcel PIN#: |
1674-07-441-1295 |
|
| Owner Name 2: | 1/4 section #: |
1674 |
||
| Owner Name 3: | Parent Acct: |
|
||
| Billing Address: | 2424 SW 54TH ST | Tax District: |
|
|
| City, State, Zip | OKLAHOMA CITY, OK 73119-6020 | School System: |
Oklahoma City #89 |
|
|
Country: (If noted) |
Land Size: |
0.1612 Acres |
||
|
Land Value: 18,603 |
|
|||
|
Sect 19-T11N-R3W Qtr SE |
MOORES HEIGHTS 2ND
Block
002
Lot
007
|
|||
| Full Legal Description: MOORES HEIGHTS 2ND 002 007 |
| Photo & Sketch (if available) | Comp Sales (ordered by relevancy) |
|
||||||||||||||||||
|
||||||||||||||||||||
| Value History (*The County Treasurer 405-713-1300 posts & collects actual tax amounts. Contact information HERE) | |||||||||||||
|---|---|---|---|---|---|---|---|---|---|---|---|---|---|
| Year | Market Value | Taxable Mkt Value | Gross Assessed | Exemption | Net Assessed | Millage | Est. Tax | Tax Savings | |||||
|
2026 |
143,000 |
143,000 |
15,730 |
0 |
15,730 |
119.02 |
$1,872 |
$0 |
|||||
|
2025 |
143,000 |
143,000 |
15,730 |
0 |
15,730 |
119.02 |
$1,872 |
$0 |
|||||
|
2024 |
136,500 |
136,500 |
15,015 |
0 |
15,015 |
119.70 |
$1,797 |
$0 |
|||||
|
2023 |
79,000 |
54,483 |
5,992 |
1,000 |
4,992 |
118.33 |
$591 |
$437 |
|||||
|
2022 |
70,500 |
52,897 |
5,818 |
1,000 |
4,818 |
112.69 |
$543 |
$331 |
|||||
| Property Account Status/Adjustments/Exemptions | ||
|---|---|---|
| Account # | Exemption Description | Amount |
|
R074411295 |
5% Capped Account |
0 |
| Property Deed Transaction History (Recorded in the County Clerk's Office) | ||||||||||
|---|---|---|---|---|---|---|---|---|---|---|
| Date | Type | Book | Page | Price | Grantor | Grantee | ||||
|
8/3/2023 |
|
Deeds |
$145,000 |
HORIZON ROCK LLC |
DUQUE JOSE |
|||||
|
1/31/2023 |
|
Deeds |
$65,000 |
HICKS JAMES L |
HORIZON ROCK LLC |
|||||
|
9/25/2003 |
|
Deeds |
$0 |
ELROD PUAL EUGENE TRS ETAL |
HICKS JAMES L |
|||||
|
6/30/1999 |
|
Other |
$0 |
ELROD EVERETT |
HICKS JAMES L |
|||||
|
8/30/1996 |
|
Historical |
$0 |
ELROD EVERETT H & RUBY MAE |
ELROD EVERETT |
|||||
| Last Mailed Notice of Value (N.O.V.) Information/History | ||||||||
|---|---|---|---|---|---|---|---|---|
| Year | Date | Market Value | Taxable Market Value | Gross Assessed | Exemption | Net Assessed | ||
|
2025 |
01/31/2025 |
143,000 |
143,000 |
15,730 |
0 |
15,730 |
||
|
2024 |
01/22/2024 |
136,500 |
136,500 |
15,015 |
0 |
15,015 |
||
|
2023 |
01/23/2023 |
79,000 |
54,483 |
5,992 |
1,000 |
4,992 |
||
|
2023 |
03/02/2023 |
79,000 |
54,483 |
5,992 |
1,000 |
4,992 |
||
|
2022 |
02/22/2022 |
70,500 |
52,897 |
5,817 |
1,000 |
4,817 |
||
| Property Building Permit History | |||||||||||
|---|---|---|---|---|---|---|---|---|---|---|---|
| Issued | Permit # | Provided by | Bldg # | Description | Est Construction Cost | Status | |||||
| No Building Permit records returned. | |||||||||||
| Click button on building number to access detailed information: | ||||||
|---|---|---|---|---|---|---|
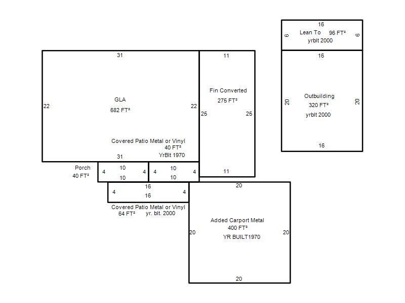
| Bldg # | Vacant/Improved Land | Bldg Description | Year Built | SqFt | # Stories | |
|
1 |
Improved |
Ranch 1 Story |
1955 |
682 |
1 Stories |
|