|
|
|
| Larry Stein Oklahoma County Assessor (405) 713-1200 - Public Access System |
|
|
|
|
|
|
| Real Property Display - Screen Produced 3/14/2026 6:21:11 AM | ||||
|---|---|---|---|---|
| Account: R121571630 | Type: Residential | Location: |
10541 REITER DR |
|
| Building Name/Occupant: |
|
MIDWEST CITY |
||
| Owner Name 1: | BATES ROGER |
Parcel PIN#: |
1222-12-157-1630 |
|
| Owner Name 2: | BATES CAROL | 1/4 section #: |
1222 |
|
| Owner Name 3: | Parent Acct: |
|
||
| Billing Address: | 2109 CADWELL AVE | Tax District: |
|
|
| City, State, Zip | OKLAHOMA CITY, OK 73170 | School System: |
Choctaw #4 |
|
|
Country: (If noted) |
UNITED STATES |
Land Size: |
0.1515 Acres |
|
|
Land Value: 36,300 |
|
|||
|
Sect 6-T11N-R1W Qtr SE |
WILLOW RIDGE ESTATES TO MWC
Block
002
Lot
036
|
|||
| Full Legal Description: WILLOW RIDGE ESTATES TO MWC 002 036 |
| Photo & Sketch (if available) | Comp Sales (ordered by relevancy) |
|
||||||||||||||||||
|
||||||||||||||||||||
| Value History (*The County Treasurer 405-713-1300 posts & collects actual tax amounts. Contact information HERE) | |||||||||||||
|---|---|---|---|---|---|---|---|---|---|---|---|---|---|
| Year | Market Value | Taxable Mkt Value | Gross Assessed | Exemption | Net Assessed | Millage | Est. Tax | Tax Savings | |||||
|
2025 |
208,500 |
164,638 |
18,109 |
0 |
18,109 |
127.03 |
$2,301 |
$613 |
|||||
|
2024 |
203,500 |
156,799 |
17,247 |
0 |
17,247 |
127.00 |
$2,190 |
$652 |
|||||
|
2023 |
190,000 |
149,333 |
16,426 |
0 |
16,426 |
128.50 |
$2,111 |
$575 |
|||||
|
2022 |
160,500 |
142,222 |
15,643 |
0 |
15,643 |
127.22 |
$1,990 |
$256 |
|||||
|
2021 |
141,500 |
135,450 |
14,899 |
0 |
14,899 |
126.69 |
$1,888 |
$84 |
|||||
| Property Account Status/Adjustments/Exemptions | ||||||
|---|---|---|---|---|---|---|
| Account # | Exemption Description | Amount | ||||
| No adjustment/exemption records returned. | ||||||
| Property Deed Transaction History (Recorded in the County Clerk's Office) | ||||||||||
|---|---|---|---|---|---|---|---|---|---|---|
| Date | Type | Book | Page | Price | Grantor | Grantee | ||||
|
2/13/2025 |
|
Deeds |
$206,000 |
COLLINS JASEN C |
BATES ROGER |
|||||
|
5/18/2009 |
|
Other |
$0 |
SECRETARY OF HOUSING & URBAN DEV |
COLLINS JASEN C |
|||||
|
7/14/2008 |
|
Hmstd Off & |
$0 |
COUNTRYWIDE HOME LOANS |
SECRETARY OF HOUSING & URBAN DEV |
|||||
|
4/15/2008 |
|
Other |
$0 |
SECRETARY OF HOUSING & URBAN DEV |
COUNTRYWIDE HOME LOANS |
|||||
|
12/26/2007 |
|
Hmstd Off & |
$0 |
NIVISON JOHN W BELL SHELLY J |
SECRETARY OF HOUSING & URBAN DEV |
|||||
| Last Mailed Notice of Value (N.O.V.) Information/History | ||||||||
|---|---|---|---|---|---|---|---|---|
| Year | Date | Market Value | Taxable Market Value | Gross Assessed | Exemption | Net Assessed | ||
|
2026 |
02/06/2026 |
212,500 |
212,500 |
23,375 |
0 |
23,375 |
||
|
2025 |
01/31/2025 |
208,500 |
164,638 |
18,109 |
0 |
18,109 |
||
|
2025 |
03/28/2025 |
208,500 |
164,638 |
18,109 |
0 |
18,109 |
||
|
2024 |
01/22/2024 |
203,500 |
156,799 |
17,247 |
0 |
17,247 |
||
|
2023 |
01/23/2023 |
190,000 |
149,333 |
16,426 |
0 |
16,426 |
||
| Property Building Permit History | |||||||||||
|---|---|---|---|---|---|---|---|---|---|---|---|
| Issued | Permit # | Provided by | Bldg # | Description | Est Construction Cost | Status | |||||
| No Building Permit records returned. | |||||||||||
| Click button on building number to access detailed information: | ||||||
|---|---|---|---|---|---|---|
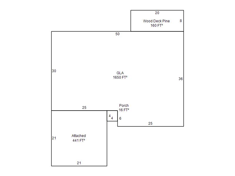
| Bldg # | Vacant/Improved Land | Bldg Description | Year Built | SqFt | # Stories | |
|
1 |
Improved |
Ranch 1 Story |
1984 |
1,650 |
1 Stories |
|