|
|
|
| Larry Stein Oklahoma County Assessor (405) 713-1200 - Public Access System |
|
|
|
|
|
|
| Real Property Display - Screen Produced 4/2/2026 3:58:25 PM | ||||
|---|---|---|---|---|
| Account: R113417180 | Type: Residential | Location: |
2845 SW 46TH TER |
|
| Building Name/Occupant: |
|
OKLAHOMA CITY |
||
| Owner Name 1: | GUYTON JAMES H IV |
Parcel PIN#: |
1676-11-341-7180 |
|
| Owner Name 2: | 1/4 section #: |
1676 |
||
| Owner Name 3: | Parent Acct: |
|
||
| Billing Address: | 2845 SW 46TH TER | Tax District: |
|
|
| City, State, Zip | OKLAHOMA CITY, OK 73119-4628 | School System: |
Oklahoma City #89 |
|
|
Country: (If noted) |
Land Size: |
0.1346 Acres |
||
|
Land Value: 17,595 |
|
|||
|
Sect 19-T11N-R3W Qtr NW |
KNOB HILL ADDITION
Block
019
Lot
012
|
|||
| Full Legal Description: KNOB HILL ADDITION 019 012 |
| Photo & Sketch (if available) | Comp Sales (ordered by relevancy) |
|
||||||||||||||||||
|
||||||||||||||||||||
| Value History (*The County Treasurer 405-713-1300 posts & collects actual tax amounts. Contact information HERE) | |||||||||||||
|---|---|---|---|---|---|---|---|---|---|---|---|---|---|
| Year | Market Value | Taxable Mkt Value | Gross Assessed | Exemption | Net Assessed | Millage | Est. Tax | Tax Savings | |||||
|
2026 |
108,500 |
108,500 |
11,935 |
0 |
11,935 |
119.02 |
$1,421 |
$0 |
|||||
|
2025 |
109,500 |
108,675 |
11,954 |
0 |
11,954 |
119.02 |
$1,423 |
$11 |
|||||
|
2024 |
103,500 |
103,500 |
11,385 |
0 |
11,385 |
119.70 |
$1,363 |
$0 |
|||||
|
2023 |
92,000 |
79,275 |
8,720 |
0 |
8,720 |
118.33 |
$1,032 |
$166 |
|||||
|
2022 |
75,500 |
75,500 |
8,305 |
0 |
8,305 |
112.69 |
$936 |
$0 |
|||||
| Property Account Status/Adjustments/Exemptions | ||
|---|---|---|
| Account # | Exemption Description | Amount |
|
R113417180 |
5% Capped Account |
0 |
| Property Deed Transaction History (Recorded in the County Clerk's Office) | ||||||||||
|---|---|---|---|---|---|---|---|---|---|---|
| Date | Type | Book | Page | Price | Grantor | Grantee | ||||
|
4/4/2023 |
|
Deeds |
$105,000 |
BALIR KARENA RENEE |
GUYTON JAMES H IV |
|||||
|
12/8/2020 |
|
Deeds |
$76,000 |
PHILLIPS MARCUS H II |
BLAIR KARENA RENEE |
|||||
|
9/6/2013 |
|
Deeds |
$44,000 |
HODGE KEN C |
PHILLIPS MARCUS H II |
|||||
|
9/13/2004 |
|
Deeds |
$36,000 |
ONSPAUGH NORMA PAULETTE |
HODGE KEN C |
|||||
|
2/23/1999 |
|
Historical |
$0 |
CHRISPENS NORMAN C & P H |
ONSPAUGH NORMA PAULETTE |
|||||
| Last Mailed Notice of Value (N.O.V.) Information/History | ||||||||
|---|---|---|---|---|---|---|---|---|
| Year | Date | Market Value | Taxable Market Value | Gross Assessed | Exemption | Net Assessed | ||
|
2025 |
01/31/2025 |
109,500 |
108,675 |
11,954 |
0 |
11,954 |
||
|
2024 |
01/22/2024 |
103,500 |
103,500 |
11,385 |
0 |
11,385 |
||
|
2023 |
01/23/2023 |
92,000 |
79,275 |
8,720 |
0 |
8,720 |
||
|
2021 |
04/09/2021 |
75,500 |
75,500 |
8,305 |
0 |
8,305 |
||
|
2019 |
02/26/2019 |
51,000 |
50,400 |
5,544 |
0 |
5,544 |
||
| Property Building Permit History | |||||||||||
|---|---|---|---|---|---|---|---|---|---|---|---|
| Issued | Permit # | Provided by | Bldg # | Description | Est Construction Cost | Status | |||||
| No Building Permit records returned. | |||||||||||
| Click button on building number to access detailed information: | ||||||
|---|---|---|---|---|---|---|
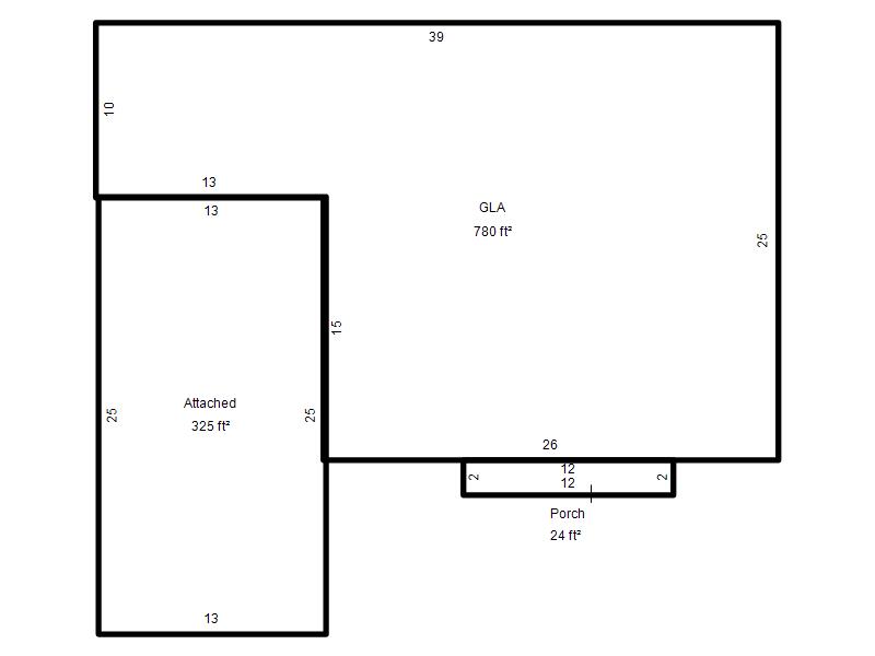
| Bldg # | Vacant/Improved Land | Bldg Description | Year Built | SqFt | # Stories | |
|
1 |
Improved |
Ranch 1 Story |
1953 |
780 |
1 Stories |
|