|
|
|
| Larry Stein Oklahoma County Assessor (405) 713-1200 - Public Access System |
|
|
|
|
|
|
| Real Property Display - Screen Produced 3/16/2026 3:55:48 AM | ||||
|---|---|---|---|---|
| Account: R121572650 | Type: Residential | Location: |
1104 LYNN FRY BLVD |
|
| Building Name/Occupant: |
|
MIDWEST CITY |
||
| Owner Name 1: | SHENOLD KELLI JEAN |
Parcel PIN#: |
1222-12-157-2650 |
|
| Owner Name 2: | LEATHERS JOHN | 1/4 section #: |
1222 |
|
| Owner Name 3: | Parent Acct: |
|
||
| Billing Address: | 1104 LYNN FRY BLVD | Tax District: |
|
|
| City, State, Zip | MIDWEST CITY, OK 73130-6022 | School System: |
Choctaw #4 |
|
|
Country: (If noted) |
Land Size: |
0.1846 Acres |
||
|
Land Value: 44,220 |
|
|||
|
Sect 6-T11N-R1W Qtr SE |
WILLOW RIDGE ESTATES TO MWC
Block
004
Lot
027
|
|||
| Full Legal Description: WILLOW RIDGE ESTATES TO MWC 004 027 |
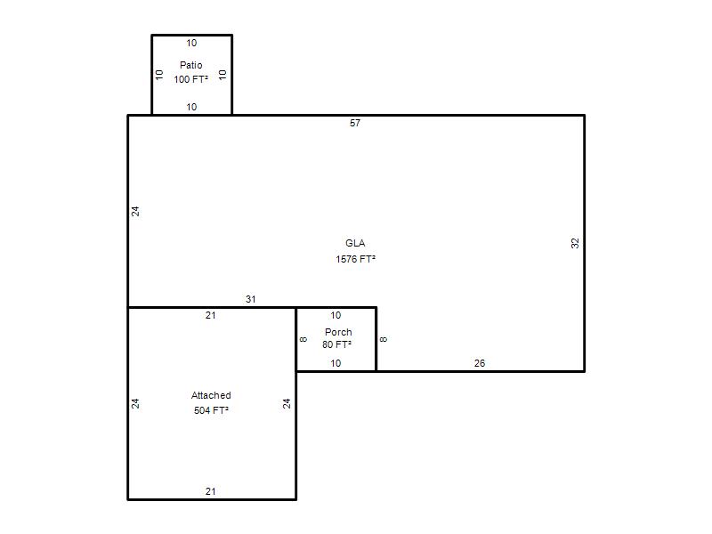
| Photo & Sketch (if available) | Comp Sales (ordered by relevancy) |
|
||||||||||||||||||
|
||||||||||||||||||||
| Value History (*The County Treasurer 405-713-1300 posts & collects actual tax amounts. Contact information HERE) | |||||||||||||
|---|---|---|---|---|---|---|---|---|---|---|---|---|---|
| Year | Market Value | Taxable Mkt Value | Gross Assessed | Exemption | Net Assessed | Millage | Est. Tax | Tax Savings | |||||
|
2025 |
204,500 |
204,500 |
22,495 |
1,000 |
21,495 |
127.03 |
$2,731 |
$127 |
|||||
|
2024 |
198,500 |
138,776 |
15,265 |
1,000 |
14,265 |
127.00 |
$1,812 |
$961 |
|||||
|
2023 |
186,500 |
138,776 |
15,264 |
1,000 |
14,264 |
128.50 |
$1,833 |
$803 |
|||||
|
2022 |
157,000 |
134,734 |
14,820 |
1,000 |
13,820 |
127.22 |
$1,758 |
$439 |
|||||
|
2021 |
138,500 |
130,810 |
14,389 |
1,000 |
13,389 |
126.69 |
$1,696 |
$234 |
|||||
| Property Account Status/Adjustments/Exemptions | ||
|---|---|---|
| Account # | Exemption Description | Amount |
|
R121572650 |
Homestead |
1,000 |
| Property Deed Transaction History (Recorded in the County Clerk's Office) | |||||||
|---|---|---|---|---|---|---|---|
| Date | Type | Book | Page | Price | Grantor | Grantee | |
|
3/5/2025 |
|
Deeds |
$0 |
SHENOLD KELLI JEAN |
SHENOLD KELLI JEAN |
||
|
11/1/2024 |
|
Deeds |
$195,000 |
PATTERSON THOMAS P & CYNTHIA D |
SHENOLD KELLI JEAN |
||
|
12/29/1987 |
|
Historical |
$62,600 |
SECRETARY OF HOUSING |
PATTERSON THOMAS P & CYNTHIA D |
||
|
9/24/1987 |
|
Historical |
$0 |
BERGLUND EDWARD GENE |
SECRETARY OF HOUSING |
||
|
9/1/1985 |
|
Historical |
$0 |
|
BERGLUND EDWARD GENE |
||
| Last Mailed Notice of Value (N.O.V.) Information/History | ||||||||
|---|---|---|---|---|---|---|---|---|
| Year | Date | Market Value | Taxable Market Value | Gross Assessed | Exemption | Net Assessed | ||
|
2026 |
02/06/2026 |
208,500 |
208,500 |
22,935 |
0 |
22,935 |
||
|
2025 |
01/31/2025 |
204,500 |
204,500 |
22,495 |
0 |
22,495 |
||
|
2025 |
03/28/2025 |
204,500 |
204,500 |
22,495 |
1,000 |
21,495 |
||
|
2024 |
01/22/2024 |
198,500 |
138,776 |
15,265 |
1,000 |
14,265 |
||
|
2023 |
01/23/2023 |
186,500 |
138,776 |
15,264 |
1,000 |
14,264 |
||
| Property Building Permit History | |||||||||||
|---|---|---|---|---|---|---|---|---|---|---|---|
| Issued | Permit # | Provided by | Bldg # | Description | Est Construction Cost | Status | |||||
| No Building Permit records returned. | |||||||||||
| Click button on building number to access detailed information: | ||||||
|---|---|---|---|---|---|---|
| Bldg # | Vacant/Improved Land | Bldg Description | Year Built | SqFt | # Stories | |
|
1 |
Improved |
Ranch 1 Story |
1983 |
1,576 |
1 Stories |
|