|
|
|
| Larry Stein Oklahoma County Assessor (405) 713-1200 - Public Access System |
|
|
|
|
|
|
| Real Property Display - Screen Produced 3/14/2026 9:23:49 AM | ||||
|---|---|---|---|---|
| Account: R121572860 | Type: Residential | Location: |
1109 LYNN FRY BLVD |
|
| Building Name/Occupant: |
|
MIDWEST CITY |
||
| Owner Name 1: | EVETT JACOB D |
Parcel PIN#: |
1222-12-157-2860 |
|
| Owner Name 2: | 1/4 section #: |
1222 |
||
| Owner Name 3: | Parent Acct: |
|
||
| Billing Address: | 1109 LYNN FRY BLVD | Tax District: |
|
|
| City, State, Zip | MIDWEST CITY, OK 73130 | School System: |
Choctaw #4 |
|
|
Country: (If noted) |
Land Size: |
0.1846 Acres |
||
|
Land Value: 44,220 |
|
|||
|
Sect 6-T11N-R1W Qtr SE |
WILLOW RIDGE ESTATES TO MWC
Block
005
Lot
018
|
|||
| Full Legal Description: WILLOW RIDGE ESTATES TO MWC 005 018 |
| Photo & Sketch (if available) | Comp Sales (ordered by relevancy) |
|
||||||||||||||||||
|
||||||||||||||||||||
| Value History (*The County Treasurer 405-713-1300 posts & collects actual tax amounts. Contact information HERE) | |||||||||||||
|---|---|---|---|---|---|---|---|---|---|---|---|---|---|
| Year | Market Value | Taxable Mkt Value | Gross Assessed | Exemption | Net Assessed | Millage | Est. Tax | Tax Savings | |||||
|
2025 |
209,000 |
209,000 |
22,990 |
0 |
22,990 |
127.03 |
$2,920 |
$0 |
|||||
|
2024 |
203,500 |
201,600 |
22,176 |
0 |
22,176 |
127.00 |
$2,816 |
$27 |
|||||
|
2023 |
192,000 |
192,000 |
21,120 |
0 |
21,120 |
128.50 |
$2,714 |
$0 |
|||||
|
2022 |
162,000 |
143,876 |
15,825 |
0 |
15,825 |
127.22 |
$2,013 |
$254 |
|||||
|
2021 |
143,000 |
137,025 |
15,072 |
0 |
15,072 |
126.69 |
$1,910 |
$83 |
|||||
| Property Account Status/Adjustments/Exemptions | ||
|---|---|---|
| Account # | Exemption Description | Amount |
|
R121572860 |
5% Capped Account |
0 |
| Property Deed Transaction History (Recorded in the County Clerk's Office) | ||||||||||
|---|---|---|---|---|---|---|---|---|---|---|
| Date | Type | Book | Page | Price | Grantor | Grantee | ||||
|
5/19/2022 |
|
Deeds |
$175,000 |
EVETT JAMES D JR & SARAH N |
EVETT JACOB D |
|||||
|
5/2/2006 |
|
Deeds |
$107,500 |
BOREN MICHAEL C & TRACY D |
EVETT JAMES D JR & SARAH N |
|||||
|
2/27/2001 |
|
Deeds |
$85,000 |
COLE KIM ANN |
BOREN MICHAEL C & TRACY D |
|||||
|
9/12/1988 |
|
Historical |
$55,000 |
SECRETARY OF HOUSING |
COLE KIM ANN |
|||||
|
5/31/1988 |
|
Historical |
$0 |
WILLIAMS STEVEN E & FAYE H |
SECRETARY OF HOUSING |
|||||
| Last Mailed Notice of Value (N.O.V.) Information/History | ||||||||
|---|---|---|---|---|---|---|---|---|
| Year | Date | Market Value | Taxable Market Value | Gross Assessed | Exemption | Net Assessed | ||
|
2026 |
02/06/2026 |
214,000 |
214,000 |
23,540 |
0 |
23,540 |
||
|
2025 |
01/31/2025 |
209,000 |
209,000 |
22,990 |
0 |
22,990 |
||
|
2024 |
01/22/2024 |
203,500 |
201,600 |
22,176 |
0 |
22,176 |
||
|
2023 |
01/23/2023 |
192,000 |
192,000 |
21,120 |
0 |
21,120 |
||
|
2022 |
02/22/2022 |
162,000 |
143,876 |
15,825 |
0 |
15,825 |
||
| Property Building Permit History | |||||||||||
|---|---|---|---|---|---|---|---|---|---|---|---|
| Issued | Permit # | Provided by | Bldg # | Description | Est Construction Cost | Status | |||||
| No Building Permit records returned. | |||||||||||
| Click button on building number to access detailed information: | ||||||
|---|---|---|---|---|---|---|
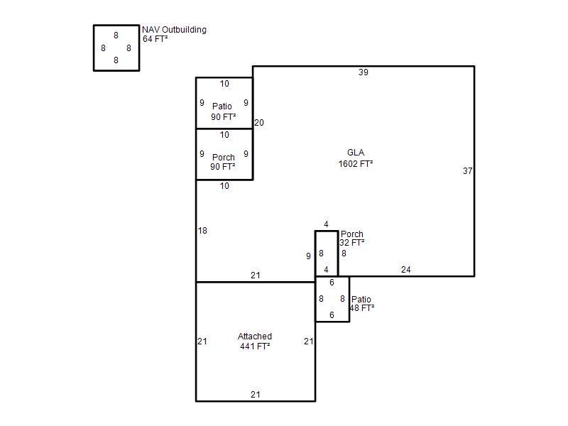
| Bldg # | Vacant/Improved Land | Bldg Description | Year Built | SqFt | # Stories | |
|
1 |
Improved |
Ranch 1 Story |
1983 |
1,602 |
1 Stories |
|