|
|
|
| Larry Stein Oklahoma County Assessor (405) 713-1200 - Public Access System |
|
|
|
|
|
|
| Real Property Display - Screen Produced 4/2/2026 7:20:15 AM | ||||
|---|---|---|---|---|
| Account: R113291310 | Type: Residential | Location: |
2705 SE 45TH ST |
|
| Building Name/Occupant: |
|
OKLAHOMA CITY |
||
| Owner Name 1: | SANDOVAL PRISCILA B CAMPOS |
Parcel PIN#: |
1693-11-329-1310 |
|
| Owner Name 2: | 1/4 section #: |
1693 |
||
| Owner Name 3: | Parent Acct: |
|
||
| Billing Address: | 2705 SE 45TH ST | Tax District: |
|
|
| City, State, Zip | OKLAHOMA CITY , OK 73129 | School System: |
Oklahoma City #89 |
|
|
Country: (If noted) |
Land Size: |
0.2052 Acres |
||
|
Land Value: 16,350 |
|
|||
|
Sect 24-T11N-R3W Qtr NE |
LUMBERMANS # 3 ADD
Block
002
Lot
010
|
|||
| Full Legal Description: LUMBERMANS # 3 ADD 002 010 |
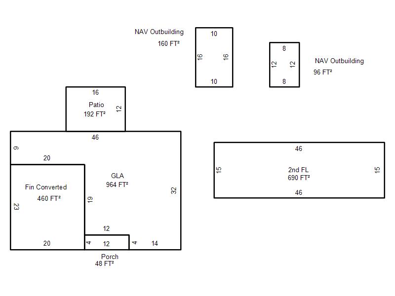
| Photo & Sketch (if available) | Comp Sales (ordered by relevancy) |
|
||||||||||||||||||
|
||||||||||||||||||||
| Value History (*The County Treasurer 405-713-1300 posts & collects actual tax amounts. Contact information HERE) | |||||||||||||
|---|---|---|---|---|---|---|---|---|---|---|---|---|---|
| Year | Market Value | Taxable Mkt Value | Gross Assessed | Exemption | Net Assessed | Millage | Est. Tax | Tax Savings | |||||
|
2026 |
169,000 |
168,152 |
18,496 |
1,000 |
17,496 |
119.02 |
$2,082 |
$130 |
|||||
|
2025 |
170,500 |
163,255 |
17,958 |
1,000 |
16,958 |
119.02 |
$2,018 |
$214 |
|||||
|
2024 |
158,500 |
158,500 |
17,435 |
1,000 |
16,435 |
119.70 |
$1,967 |
$120 |
|||||
|
2023 |
137,500 |
137,500 |
15,125 |
0 |
15,125 |
118.33 |
$1,790 |
$0 |
|||||
|
2022 |
107,500 |
107,500 |
11,825 |
0 |
11,825 |
112.69 |
$1,333 |
$0 |
|||||
| Property Account Status/Adjustments/Exemptions | ||
|---|---|---|
| Account # | Exemption Description | Amount |
|
R113291310 |
3% Cap Homestead |
0 |
|
R113291310 |
Homestead |
1,000 |
| Property Deed Transaction History (Recorded in the County Clerk's Office) | ||||||||||
|---|---|---|---|---|---|---|---|---|---|---|
| Date | Type | Book | Page | Price | Grantor | Grantee | ||||
|
2/2/2023 |
|
Deeds |
$146,000 |
BAYDOUN AMAL Y |
SANDOVAL PRISCILA B CAMPOS |
|||||
|
12/8/2022 |
|
Deeds |
$100,000 |
U S BANK NATIONAL ASSOCIATION |
BAYDOUN AMAL Y |
|||||
|
9/27/2022 |
|
Hmstd Off & |
$0 |
CLYDEN MITCHEL DANE |
U S BANK NATIONAL ASSOCIATION |
|||||
|
8/19/2019 |
|
Deeds |
$112,000 |
HURLEY GREGORY |
CLYDEN MITCHEL DANE |
|||||
|
6/3/2014 |
|
Hmstd Off & |
$0 |
HURLEY GREGORY B & CANDIDA |
HURLEY GREGORY |
|||||
| Last Mailed Notice of Value (N.O.V.) Information/History | ||||||||
|---|---|---|---|---|---|---|---|---|
| Year | Date | Market Value | Taxable Market Value | Gross Assessed | Exemption | Net Assessed | ||
|
2026 |
02/06/2026 |
169,000 |
168,152 |
18,496 |
1,000 |
17,496 |
||
|
2025 |
01/31/2025 |
170,500 |
163,255 |
17,958 |
1,000 |
16,958 |
||
|
2024 |
01/22/2024 |
158,500 |
158,500 |
17,435 |
1,000 |
16,435 |
||
|
2023 |
01/23/2023 |
137,500 |
137,500 |
15,125 |
0 |
15,125 |
||
|
2023 |
03/02/2023 |
137,500 |
137,500 |
15,125 |
0 |
15,125 |
||
| Property Building Permit History | |||||||||||
|---|---|---|---|---|---|---|---|---|---|---|---|
| Issued | Permit # | Provided by | Bldg # | Description | Est Construction Cost | Status | |||||
| No Building Permit records returned. | |||||||||||
| Click button on building number to access detailed information: | ||||||
|---|---|---|---|---|---|---|
| Bldg # | Vacant/Improved Land | Bldg Description | Year Built | SqFt | # Stories | |
|
1 |
Improved |
2 Story |
1967 |
1,654 |
2 Stories |
|