|
|
|
| Larry Stein Oklahoma County Assessor (405) 713-1200 - Public Access System |
|
|
|
|
|
|
| Real Property Display - Screen Produced 3/13/2026 2:38:06 AM | ||||
|---|---|---|---|---|
| Account: R113294770 | Type: Residential | Location: |
2508 EL TORO DR |
|
| Building Name/Occupant: |
|
OKLAHOMA CITY |
||
| Owner Name 1: | DELGADO MELODY JEZABEL |
Parcel PIN#: |
1693-11-329-4770 |
|
| Owner Name 2: | 1/4 section #: |
1693 |
||
| Owner Name 3: | Parent Acct: |
|
||
| Billing Address: | 2508 EL TORO DR | Tax District: |
|
|
| City, State, Zip | OKLAHOMA CITY, OK 73129-8738 | School System: |
Oklahoma City #89 |
|
|
Country: (If noted) |
Land Size: |
0.1708 Acres |
||
|
Land Value: 14,880 |
|
|||
|
Sect 24-T11N-R3W Qtr NE |
LUMBERMANS # 3 ADD
Block
021
Lot
016
|
|||
| Full Legal Description: LUMBERMANS # 3 ADD 021 016 |
| Photo & Sketch (if available) | Comp Sales (ordered by relevancy) |
|
||||||||||||||||||
|
||||||||||||||||||||
| Value History (*The County Treasurer 405-713-1300 posts & collects actual tax amounts. Contact information HERE) | |||||||||||||
|---|---|---|---|---|---|---|---|---|---|---|---|---|---|
| Year | Market Value | Taxable Mkt Value | Gross Assessed | Exemption | Net Assessed | Millage | Est. Tax | Tax Savings | |||||
|
2025 |
132,000 |
132,000 |
14,520 |
0 |
14,520 |
119.02 |
$1,728 |
$0 |
|||||
|
2024 |
94,500 |
29,233 |
3,215 |
1,000 |
2,215 |
119.70 |
$265 |
$979 |
|||||
|
2023 |
84,000 |
28,382 |
3,121 |
1,000 |
2,121 |
118.33 |
$251 |
$842 |
|||||
|
2022 |
75,000 |
27,556 |
3,030 |
1,000 |
2,030 |
112.69 |
$229 |
$701 |
|||||
|
2021 |
61,500 |
26,754 |
2,942 |
1,000 |
1,942 |
112.29 |
$218 |
$541 |
|||||
| Property Account Status/Adjustments/Exemptions | ||
|---|---|---|
| Account # | Exemption Description | Amount |
|
R113294770 |
5% Capped Account |
0 |
| Property Deed Transaction History (Recorded in the County Clerk's Office) | |||||||
|---|---|---|---|---|---|---|---|
| Date | Type | Book | Page | Price | Grantor | Grantee | |
|
7/3/2024 |
|
Deeds |
$139,000 |
MARTINDALE VERNA MAE |
DELGADO MELODY JEZABEL |
||
|
7/26/2019 |
|
Deeds |
$0 |
MARTINDALE L C & VERNA MAE |
MARTINDALE VERNA MAE |
||
|
7/26/2019 |
|
Deeds |
$0 |
MARTINDALE VERNA MAE |
MARTINDALE VERNA MAE |
||
|
6/17/1999 |
|
Deeds |
$11,000 |
MARTINDALE VERA MAE |
MARTINDALE L C & VERNA MAE |
||
|
11/11/1911 |
|
Historical |
$0 |
|
MARTINDALE L C & VERNA MAE |
||
| Last Mailed Notice of Value (N.O.V.) Information/History | ||||||||
|---|---|---|---|---|---|---|---|---|
| Year | Date | Market Value | Taxable Market Value | Gross Assessed | Exemption | Net Assessed | ||
|
2026 |
02/06/2026 |
132,500 |
132,500 |
14,575 |
0 |
14,575 |
||
|
2025 |
01/31/2025 |
132,000 |
132,000 |
14,520 |
0 |
14,520 |
||
|
2024 |
01/22/2024 |
94,500 |
29,233 |
3,215 |
1,000 |
2,215 |
||
|
2023 |
01/23/2023 |
84,000 |
28,382 |
3,121 |
1,000 |
2,121 |
||
|
2022 |
02/22/2022 |
75,000 |
27,556 |
3,030 |
1,000 |
2,030 |
||
| Property Building Permit History | |||||||||||
|---|---|---|---|---|---|---|---|---|---|---|---|
| Issued | Permit # | Provided by | Bldg # | Description | Est Construction Cost | Status | |||||
| No Building Permit records returned. | |||||||||||
| Click button on building number to access detailed information: | ||||||
|---|---|---|---|---|---|---|
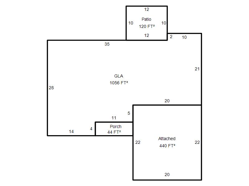
| Bldg # | Vacant/Improved Land | Bldg Description | Year Built | SqFt | # Stories | |
|
1 |
Improved |
Ranch 1 Story |
1972 |
1,056 |
1 Stories |
|