|
|
|
| Larry Stein Oklahoma County Assessor (405) 713-1200 - Public Access System |
|
|
|
|
|
|
| Real Property Display - Screen Produced 2/27/2026 1:42:28 AM | ||||
|---|---|---|---|---|
| Account: R202491120 | Type: Residential | Location: |
16552 ROSEROCK CIR |
|
| Building Name/Occupant: |
|
CHOCTAW |
||
| Owner Name 1: | STUCKEY CAROL |
Parcel PIN#: |
1021-20-249-1120 |
|
| Owner Name 2: | 1/4 section #: |
1021 |
||
| Owner Name 3: | Parent Acct: |
1021-16-867-0445 |
||
| Billing Address: | 16552 ROSEROCK CIR | Tax District: |
|
|
| City, State, Zip | CHOCTAW, OK 73020-6960 | School System: |
Choctaw #4 |
|
|
Country: (If noted) |
Land Size: |
1.0424 Acres |
||
|
Land Value: 79,222 |
|
|||
|
Sect 6-T11N-R1E Qtr NE |
STONEGATE CROSSING SEC 2
Block
004
Lot
011
|
|||
| Full Legal Description: STONEGATE CROSSING SEC 2 BLK 004 LOT 011 |
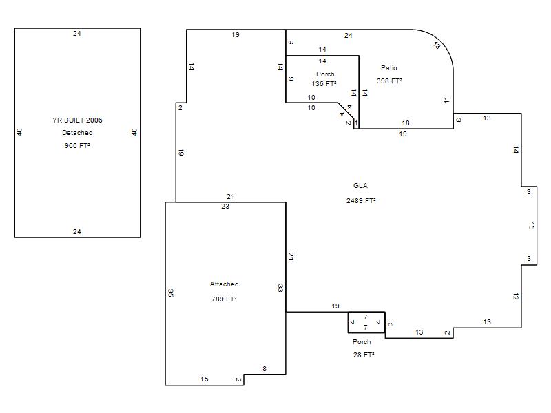
| Photo & Sketch (if available) | Comp Sales (ordered by relevancy) |
|
||||||||||||||||||
|
||||||||||||||||||||
| Value History (*The County Treasurer 405-713-1300 posts & collects actual tax amounts. Contact information HERE) | |||||||||||||
|---|---|---|---|---|---|---|---|---|---|---|---|---|---|
| Year | Market Value | Taxable Mkt Value | Gross Assessed | Exemption | Net Assessed | Millage | Est. Tax | Tax Savings | |||||
|
2025 |
489,000 |
489,000 |
53,790 |
0 |
53,790 |
117.21 |
$6,305 |
$0 |
|||||
|
2024 |
478,000 |
478,000 |
52,580 |
0 |
52,580 |
116.35 |
$6,118 |
$0 |
|||||
|
2023 |
471,000 |
357,321 |
39,304 |
1,000 |
38,304 |
118.06 |
$4,522 |
$1,594 |
|||||
|
2022 |
389,500 |
346,914 |
38,160 |
1,000 |
37,160 |
116.14 |
$4,316 |
$660 |
|||||
|
2021 |
346,000 |
336,810 |
37,049 |
1,000 |
36,049 |
116.17 |
$4,188 |
$234 |
|||||
| Property Account Status/Adjustments/Exemptions | ||
|---|---|---|
| Account # | Exemption Description | Amount |
|
R202491120 |
5% Capped Account |
0 |
| Property Deed Transaction History (Recorded in the County Clerk's Office) | ||||||||||
|---|---|---|---|---|---|---|---|---|---|---|
| Date | Type | Book | Page | Price | Grantor | Grantee | ||||
|
8/31/2023 |
|
Deeds |
$490,000 |
KOONTZ DALE M & PATRICIA A |
STUCKEY CAROL |
|||||
|
5/20/2004 |
|
Deeds |
$242,000 |
CENDANT MOBILITY FINANCIAL CORPORATION |
KOONTZ DALE M & PATRICIA A |
|||||
|
2/17/2004 |
|
Deeds |
$242,000 |
CLIFTON MICHAEL D & MELANI K |
CENDANT MOBILITY FINANCIAL CORPORATION |
|||||
|
4/12/2002 |
|
Deeds |
$0 |
SWM & SONS INC CLIFTON MICHAEL D & MELANI K |
SWM & SONS INC |
|||||
|
4/12/2002 |
|
Deeds |
$0 |
SWM & SONS INC |
CLIFTON MICHAEL D & MELANIE K |
|||||
| Last Mailed Notice of Value (N.O.V.) Information/History | ||||||||
|---|---|---|---|---|---|---|---|---|
| Year | Date | Market Value | Taxable Market Value | Gross Assessed | Exemption | Net Assessed | ||
|
2026 |
02/06/2026 |
520,000 |
513,450 |
56,479 |
0 |
56,479 |
||
|
2025 |
01/31/2025 |
489,000 |
489,000 |
53,790 |
0 |
53,790 |
||
|
2024 |
01/22/2024 |
478,000 |
478,000 |
52,580 |
0 |
52,580 |
||
|
2023 |
01/23/2023 |
471,000 |
357,321 |
39,304 |
1,000 |
38,304 |
||
|
2022 |
02/22/2022 |
389,500 |
346,914 |
38,160 |
1,000 |
37,160 |
||
| Property Building Permit History | ||||||
|---|---|---|---|---|---|---|
| Issued | Permit # | Provided by | Bldg # | Description | Est Construction Cost | Status |
|
1/24/2006 |
10320410 |
CHOCTAW |
1 |
Storage Buil |
17,500 |
Inactive |
|
11/9/2001 |
10274564 |
CHOCTAW |
1 |
Main Dwellin |
165,000 |
Inactive |
| Click button on building number to access detailed information: | ||||||
|---|---|---|---|---|---|---|
| Bldg # | Vacant/Improved Land | Bldg Description | Year Built | SqFt | # Stories | |
|
1 |
Improved |
Ranch 1 Story |
2002 |
2,489 |
1 Stories |
|