|
|
|
| Larry Stein Oklahoma County Assessor (405) 713-1200 - Public Access System |
|
|
|
|
|
|
| Real Property Display - Screen Produced 3/13/2026 12:56:31 AM | ||||
|---|---|---|---|---|
| Account: R160051705 | Type: Residential | Location: |
6115 COX AVE |
|
| Building Name/Occupant: |
|
VALLEY BROOK |
||
| Owner Name 1: | DOBBS JONATHAN D TRS |
Parcel PIN#: |
1701-16-005-1705 |
|
| Owner Name 2: | DOBBS MARGARET J TRS | 1/4 section #: |
1701 |
|
| Owner Name 3: | DOBBS LIV TRUST | Parent Acct: |
|
|
| Billing Address: | 6115 COX AVE | Tax District: |
|
|
| City, State, Zip | OKLAHOMA CITY, OK 73149 | School System: |
Oklahoma City #89 |
|
|
Country: (If noted) |
Land Size: |
0.2238 Acres |
||
|
Land Value: 9,750 |
|
|||
|
Sect 26-T11N-R3W Qtr NE |
A C ANDERSON ADD
Block
004
Lot
013
|
|||
| Full Legal Description: A C ANDERSON ADD 004 013 |
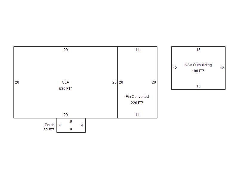
| Photo & Sketch (if available) | Comp Sales (ordered by relevancy) |
|
||||||||||||||||||
|
||||||||||||||||||||
| Value History (*The County Treasurer 405-713-1300 posts & collects actual tax amounts. Contact information HERE) | |||||||||||||
|---|---|---|---|---|---|---|---|---|---|---|---|---|---|
| Year | Market Value | Taxable Mkt Value | Gross Assessed | Exemption | Net Assessed | Millage | Est. Tax | Tax Savings | |||||
|
2025 |
85,000 |
83,475 |
9,182 |
0 |
9,182 |
103.86 |
$954 |
$17 |
|||||
|
2024 |
79,500 |
79,500 |
8,745 |
0 |
8,745 |
104.77 |
$916 |
$0 |
|||||
|
2023 |
94,500 |
94,500 |
10,395 |
0 |
10,395 |
103.55 |
$1,076 |
$0 |
|||||
|
2022 |
39,000 |
31,833 |
3,500 |
0 |
3,500 |
97.23 |
$340 |
$77 |
|||||
|
2021 |
33,000 |
30,318 |
3,334 |
0 |
3,334 |
97.56 |
$325 |
$29 |
|||||
| Property Account Status/Adjustments/Exemptions | ||
|---|---|---|
| Account # | Exemption Description | Amount |
|
R160051705 |
5% Capped Account |
0 |
| Property Deed Transaction History (Recorded in the County Clerk's Office) | |||||||
|---|---|---|---|---|---|---|---|
| Date | Type | Book | Page | Price | Grantor | Grantee | |
|
12/19/2022 |
|
Deeds |
$93,500 |
CHEATWOOD ROBERT G & CHERYL |
DOBBS JONATHAN D TRS |
||
|
10/16/2003 |
|
Deeds |
$19,500 |
MELTON ZELMA BELL |
CHEATWOOD ROBERT G & CHERYL |
||
|
3/13/1996 |
|
Historical |
$0 |
MELTON MACK & ZELMA |
MELTON ZELMA BELL |
||
|
4/1/1981 |
|
Historical |
$0 |
|
MELTON MACK & ZELMA |
||
| Last Mailed Notice of Value (N.O.V.) Information/History | ||||||||
|---|---|---|---|---|---|---|---|---|
| Year | Date | Market Value | Taxable Market Value | Gross Assessed | Exemption | Net Assessed | ||
|
2026 |
02/06/2026 |
88,000 |
87,648 |
9,641 |
0 |
9,641 |
||
|
2025 |
01/31/2025 |
85,000 |
83,475 |
9,182 |
0 |
9,182 |
||
|
2023 |
01/23/2023 |
94,500 |
94,500 |
10,395 |
0 |
10,395 |
||
|
2022 |
02/22/2022 |
39,000 |
31,833 |
3,500 |
0 |
3,500 |
||
|
2021 |
02/24/2021 |
33,000 |
30,318 |
3,334 |
0 |
3,334 |
||
| Property Building Permit History | ||||||
|---|---|---|---|---|---|---|
| Issued | Permit # | Provided by | Bldg # | Description | Est Construction Cost | Status |
|
8/10/1994 |
10252480 |
VALLEY BROOK |
1 |
Burn - Trip |
0 |
Inactive |
| Click button on building number to access detailed information: | ||||||
|---|---|---|---|---|---|---|
| Bldg # | Vacant/Improved Land | Bldg Description | Year Built | SqFt | # Stories | |
|
1 |
Improved |
Ranch 1 Story |
1952 |
580 |
1 Stories |
|