|
|
|
| Larry Stein Oklahoma County Assessor (405) 713-1200 - Public Access System |
|
|
|
|
|
|
| Real Property Display - Screen Produced 3/17/2026 6:20:59 AM | ||||
|---|---|---|---|---|
| Account: R109143070 | Type: Residential | Location: |
7029 S HARVEY AVE |
|
| Building Name/Occupant: |
|
OKLAHOMA CITY |
||
| Owner Name 1: | AGUIRRE VILLALOBOS JOSE ARTEMIO |
Parcel PIN#: |
1710-10-914-3070 |
|
| Owner Name 2: | CHAVEZ GARCIA SANDRA MARIANA | 1/4 section #: |
1710 |
|
| Owner Name 3: | Parent Acct: |
|
||
| Billing Address: | 7029 S HARVEY AVE | Tax District: |
|
|
| City, State, Zip | OKLAHOMA CITY, OK 73139 | School System: |
Oklahoma City #89 |
|
|
Country: (If noted) |
Land Size: |
0.1791 Acres |
||
|
Land Value: 34,320 |
|
|||
|
Sect 28-T11N-R3W Qtr SE |
SOUTHERN OAKS SEC 6
Block
003
Lot
008
|
|||
| Full Legal Description: SOUTHERN OAKS SEC 6 003 008 |
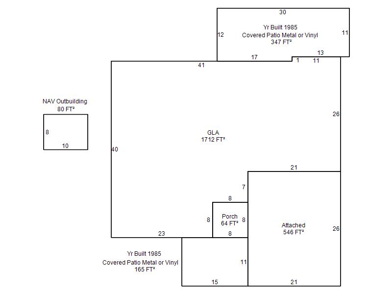
| Photo & Sketch (if available) | Comp Sales (ordered by relevancy) |
|
||||||||||||||||||
|
||||||||||||||||||||
| Value History (*The County Treasurer 405-713-1300 posts & collects actual tax amounts. Contact information HERE) | |||||||||||||
|---|---|---|---|---|---|---|---|---|---|---|---|---|---|
| Year | Market Value | Taxable Mkt Value | Gross Assessed | Exemption | Net Assessed | Millage | Est. Tax | Tax Savings | |||||
|
2025 |
202,000 |
202,000 |
22,220 |
1,000 |
21,220 |
119.02 |
$2,526 |
$119 |
|||||
|
2024 |
199,500 |
198,790 |
21,866 |
1,000 |
20,866 |
119.70 |
$2,498 |
$129 |
|||||
|
2023 |
193,000 |
193,000 |
21,230 |
1,000 |
20,230 |
118.33 |
$2,394 |
$118 |
|||||
|
2022 |
159,000 |
159,000 |
17,490 |
0 |
17,490 |
112.69 |
$1,971 |
$0 |
|||||
|
2021 |
142,000 |
123,890 |
13,627 |
13,627 |
0 |
112.29 |
$0 |
$1,754 |
|||||
| Property Account Status/Adjustments/Exemptions | ||
|---|---|---|
| Account # | Exemption Description | Amount |
|
R109143070 |
3% Cap Homestead |
0 |
|
R109143070 |
Homestead |
1,000 |
| Property Deed Transaction History (Recorded in the County Clerk's Office) | |||||||
|---|---|---|---|---|---|---|---|
| Date | Type | Book | Page | Price | Grantor | Grantee | |
|
3/14/2022 |
|
Deeds |
$190,000 |
LIZZYS FUTURE LLC |
AGUIRRE VILLALOBOS JOSE ARTEMIO |
||
|
8/27/2021 |
|
Deeds |
$105,000 |
WHITE SHERRYL J |
LIZZYS FUTURE LLC |
||
|
5/3/2000 |
|
Deeds |
$86,000 |
NOBLE PEGGY J |
WHITE SHERRYL J |
||
|
2/1/1996 |
|
Historical |
$0 |
DUREE PEGGY J |
NOBLE PEGGY J |
||
|
9/1/1980 |
|
Historical |
$0 |
|
DUREE PEGGY J |
||
| Last Mailed Notice of Value (N.O.V.) Information/History | ||||||||
|---|---|---|---|---|---|---|---|---|
| Year | Date | Market Value | Taxable Market Value | Gross Assessed | Exemption | Net Assessed | ||
|
2026 |
02/06/2026 |
205,000 |
205,000 |
22,550 |
1,000 |
21,550 |
||
|
2025 |
01/31/2025 |
202,000 |
202,000 |
22,220 |
1,000 |
21,220 |
||
|
2024 |
01/22/2024 |
199,500 |
198,790 |
21,866 |
1,000 |
20,866 |
||
|
2023 |
01/23/2023 |
193,000 |
193,000 |
21,230 |
1,000 |
20,230 |
||
|
2022 |
02/22/2022 |
159,000 |
159,000 |
17,490 |
0 |
17,490 |
||
| Property Building Permit History | |||||||||||
|---|---|---|---|---|---|---|---|---|---|---|---|
| Issued | Permit # | Provided by | Bldg # | Description | Est Construction Cost | Status | |||||
| No Building Permit records returned. | |||||||||||
| Click button on building number to access detailed information: | ||||||
|---|---|---|---|---|---|---|
| Bldg # | Vacant/Improved Land | Bldg Description | Year Built | SqFt | # Stories | |
|
1 |
Improved |
Ranch 1 Story |
1979 |
1,712 |
1 Stories |
|