|
|
|
| Larry Stein Oklahoma County Assessor (405) 713-1200 - Public Access System |
|
|
|
|
|
|
| Real Property Display - Screen Produced 4/1/2026 12:30:18 AM | ||||
|---|---|---|---|---|
| Account: R109762035 | Type: Residential | Location: |
6325 S DEWEY AVE |
|
| Building Name/Occupant: |
|
OKLAHOMA CITY |
||
| Owner Name 1: | GONZALES ANSELMO ENCARNACIO LOPEZ |
Parcel PIN#: |
1712-10-976-2035 |
|
| Owner Name 2: | 1/4 section #: |
1712 |
||
| Owner Name 3: | Parent Acct: |
|
||
| Billing Address: | 6325 S DEWEY AVE | Tax District: |
|
|
| City, State, Zip | OKLAHOMA CITY, OK 73139 | School System: |
Oklahoma City #89 |
|
|
Country: (If noted) |
Land Size: |
0.3711 Acres |
||
|
Land Value: 30,415 |
|
|||
|
Sect 28-T11N-R3W Qtr NW |
SOUTHWOOD HILLS
Block
005
Lot
020
|
|||
| Full Legal Description: SOUTHWOOD HILLS 005 020 |
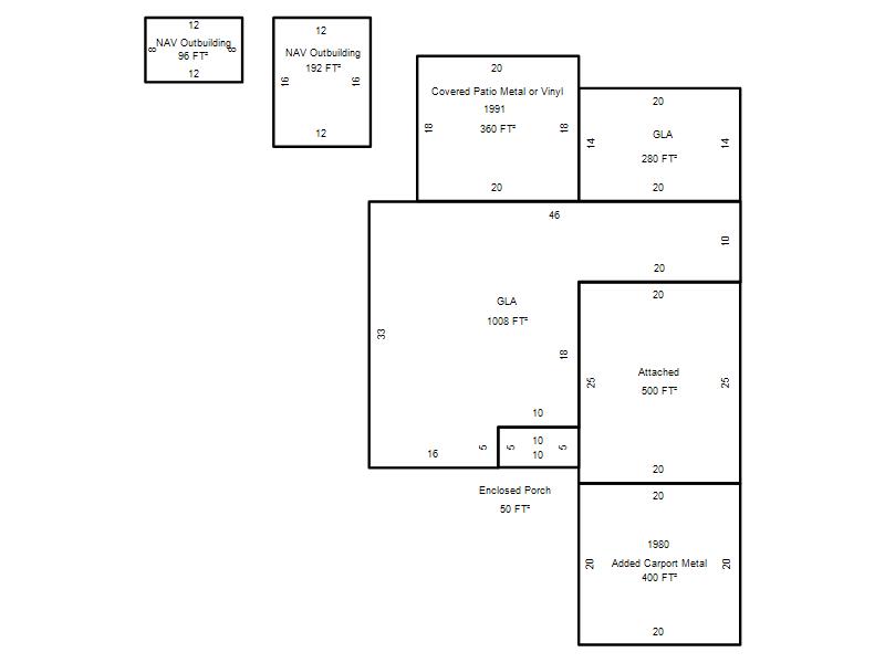
| Photo & Sketch (if available) | Comp Sales (ordered by relevancy) |
|
||||||||||||||||||
|
||||||||||||||||||||
| Value History (*The County Treasurer 405-713-1300 posts & collects actual tax amounts. Contact information HERE) | |||||||||||||
|---|---|---|---|---|---|---|---|---|---|---|---|---|---|
| Year | Market Value | Taxable Mkt Value | Gross Assessed | Exemption | Net Assessed | Millage | Est. Tax | Tax Savings | |||||
|
2026 |
161,500 |
161,500 |
17,765 |
0 |
17,765 |
119.02 |
$2,114 |
$0 |
|||||
|
2025 |
160,000 |
160,000 |
17,600 |
0 |
17,600 |
119.02 |
$2,095 |
$0 |
|||||
|
2024 |
157,500 |
157,500 |
17,325 |
0 |
17,325 |
119.70 |
$2,074 |
$0 |
|||||
|
2023 |
155,000 |
155,000 |
17,050 |
0 |
17,050 |
118.33 |
$2,018 |
$0 |
|||||
|
2022 |
132,000 |
106,359 |
11,698 |
1,000 |
10,698 |
112.69 |
$1,206 |
$431 |
|||||
| Property Account Status/Adjustments/Exemptions | ||
|---|---|---|
| Account # | Exemption Description | Amount |
|
R109762035 |
5% Capped Account |
0 |
| Property Deed Transaction History (Recorded in the County Clerk's Office) | |||||||
|---|---|---|---|---|---|---|---|
| Date | Type | Book | Page | Price | Grantor | Grantee | |
|
3/31/2022 |
|
Deeds |
$154,000 |
CORRALES MARIA GUADALUPE |
GONZALES ANSELMO ENCARNACIO LOPEZ |
||
|
9/29/2017 |
|
Deeds |
$95,000 |
GARRIOTT DOROTHY M & KENNETH B TRS GARRIOTT DOROTHY M 2007 R |
CORRALES MARIA GUADALUPE |
||
|
12/5/2007 |
|
Deeds |
$0 |
TAYLOR DOROTHY MARIE |
GARRIOTT DOROTHY M & KENNETH B TRS GARRIOTT DOROTHY M 2007 R |
||
|
11/11/1911 |
|
Historical |
$0 |
|
TAYLOR DOROTHY MARIE |
||
| Last Mailed Notice of Value (N.O.V.) Information/History | ||||||||
|---|---|---|---|---|---|---|---|---|
| Year | Date | Market Value | Taxable Market Value | Gross Assessed | Exemption | Net Assessed | ||
|
2026 |
02/06/2026 |
161,500 |
161,500 |
17,765 |
0 |
17,765 |
||
|
2025 |
01/31/2025 |
160,000 |
160,000 |
17,600 |
0 |
17,600 |
||
|
2024 |
01/22/2024 |
157,500 |
157,500 |
17,325 |
0 |
17,325 |
||
|
2023 |
01/23/2023 |
155,000 |
155,000 |
17,050 |
0 |
17,050 |
||
|
2022 |
02/22/2022 |
132,000 |
106,359 |
11,698 |
1,000 |
10,698 |
||
| Property Building Permit History | |||||||||||
|---|---|---|---|---|---|---|---|---|---|---|---|
| Issued | Permit # | Provided by | Bldg # | Description | Est Construction Cost | Status | |||||
| No Building Permit records returned. | |||||||||||
| Click button on building number to access detailed information: | ||||||
|---|---|---|---|---|---|---|
| Bldg # | Vacant/Improved Land | Bldg Description | Year Built | SqFt | # Stories | |
|
1 |
Improved |
Ranch 1 Story |
1961 |
1,288 |
1 Stories |
|