|
|
|
| Larry Stein Oklahoma County Assessor (405) 713-1200 - Public Access System |
|
|
|
|
|
|
| Real Property Display - Screen Produced 3/18/2026 5:15:06 PM | ||||
|---|---|---|---|---|
| Account: R109821130 | Type: Residential | Location: |
516 SW 63RD TER |
|
| Building Name/Occupant: |
|
OKLAHOMA CITY |
||
| Owner Name 1: | ESPARZA CASTILLO KEVIN YAIR |
Parcel PIN#: |
1712-10-982-1130 |
|
| Owner Name 2: | 1/4 section #: |
1712 |
||
| Owner Name 3: | Parent Acct: |
|
||
| Billing Address: | 516 SW 63RD TER | Tax District: |
|
|
| City, State, Zip | OKLAHOMA CITY, OK 73139-4103 | School System: |
Oklahoma City #89 |
|
|
Country: (If noted) |
Land Size: |
0.2135 Acres |
||
|
Land Value: 27,435 |
|
|||
|
Sect 28-T11N-R3W Qtr NW |
SOUTHWOOD TERRACE
Block
002
Lot
005
|
|||
| Full Legal Description: SOUTHWOOD TERRACE 002 005 |
| Photo & Sketch (if available) | Comp Sales (ordered by relevancy) |
|
||||||||||||||||||
|
||||||||||||||||||||
| Value History (*The County Treasurer 405-713-1300 posts & collects actual tax amounts. Contact information HERE) | |||||||||||||
|---|---|---|---|---|---|---|---|---|---|---|---|---|---|
| Year | Market Value | Taxable Mkt Value | Gross Assessed | Exemption | Net Assessed | Millage | Est. Tax | Tax Savings | |||||
|
2025 |
175,500 |
138,476 |
15,232 |
0 |
15,232 |
119.02 |
$1,813 |
$485 |
|||||
|
2024 |
174,000 |
131,882 |
14,506 |
0 |
14,506 |
119.70 |
$1,736 |
$555 |
|||||
|
2023 |
158,000 |
125,602 |
13,815 |
0 |
13,815 |
118.33 |
$1,635 |
$422 |
|||||
|
2022 |
143,000 |
119,621 |
13,157 |
0 |
13,157 |
112.69 |
$1,483 |
$290 |
|||||
|
2021 |
125,000 |
113,925 |
12,531 |
0 |
12,531 |
112.29 |
$1,407 |
$137 |
|||||
| Property Account Status/Adjustments/Exemptions | ||||||
|---|---|---|---|---|---|---|
| Account # | Exemption Description | Amount | ||||
| No adjustment/exemption records returned. | ||||||
| Property Deed Transaction History (Recorded in the County Clerk's Office) | ||||||||||
|---|---|---|---|---|---|---|---|---|---|---|
| Date | Type | Book | Page | Price | Grantor | Grantee | ||||
|
8/21/2025 |
|
Deeds |
$183,000 |
VELASCO ESBIN L |
ESPARZA CASTILLO KEVIN YAIR |
|||||
|
11/26/2019 |
|
Deeds |
$110,000 |
AIKEN AUDREY H |
VELASCO ESBIN L |
|||||
|
6/20/2005 |
|
Deeds |
$95,000 |
ARMSTRONG TONY L & MARLENE J |
AIKEN AUDREY H |
|||||
|
9/30/1991 |
|
Historical |
$0 |
ARMSTRONG SYLVIA A |
ARMSTRONG TONY L & MARLENE J |
|||||
|
6/27/1990 |
|
Historical |
$0 |
ARMSTRONG CLIFFORD R & S A |
ARMSTRONG SYLVIA A |
|||||
| Last Mailed Notice of Value (N.O.V.) Information/History | ||||||||
|---|---|---|---|---|---|---|---|---|
| Year | Date | Market Value | Taxable Market Value | Gross Assessed | Exemption | Net Assessed | ||
|
2026 |
02/06/2026 |
177,500 |
177,500 |
19,525 |
0 |
19,525 |
||
|
2025 |
01/31/2025 |
175,500 |
138,476 |
15,232 |
0 |
15,232 |
||
|
2024 |
01/22/2024 |
174,000 |
131,882 |
14,506 |
0 |
14,506 |
||
|
2023 |
01/23/2023 |
158,000 |
125,602 |
13,815 |
0 |
13,815 |
||
|
2022 |
02/22/2022 |
143,000 |
119,621 |
13,157 |
0 |
13,157 |
||
| Property Building Permit History | |||||||||||
|---|---|---|---|---|---|---|---|---|---|---|---|
| Issued | Permit # | Provided by | Bldg # | Description | Est Construction Cost | Status | |||||
| No Building Permit records returned. | |||||||||||
| Click button on building number to access detailed information: | ||||||
|---|---|---|---|---|---|---|
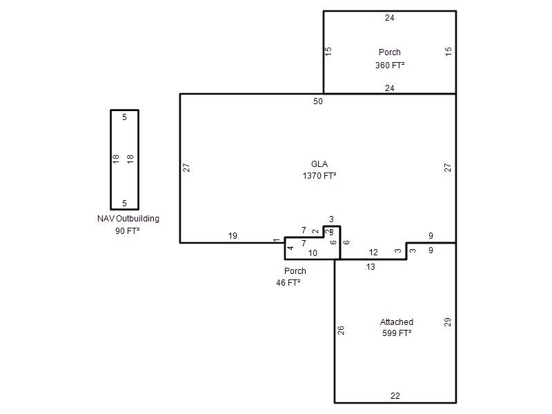
| Bldg # | Vacant/Improved Land | Bldg Description | Year Built | SqFt | # Stories | |
|
1 |
Improved |
Ranch 1 Story |
1964 |
1,370 |
1 Stories |
|