|
|
|
| Larry Stein Oklahoma County Assessor (405) 713-1200 - Public Access System |
|
|
|
|
|
|
| Real Property Display - Screen Produced 4/2/2026 10:14:13 PM | ||||
|---|---|---|---|---|
| Account: R074561555 | Type: Residential | Location: |
1612 SW 68TH ST |
|
| Building Name/Occupant: |
|
OKLAHOMA CITY |
||
| Owner Name 1: | PACHECO SAMUEL VILLICANA |
Parcel PIN#: |
1715-07-456-1555 |
|
| Owner Name 2: | AVILA GABRIELA IGLESIAS | 1/4 section #: |
1715 |
|
| Owner Name 3: | Parent Acct: |
|
||
| Billing Address: | 1612 SW 68TH ST | Tax District: |
|
|
| City, State, Zip | OKLAHOMA CITY, OK 73159 | School System: |
Oklahoma City #89 |
|
|
Country: (If noted) |
Land Size: |
0.1653 Acres |
||
|
Land Value: 23,040 |
|
|||
|
Sect 29-T11N-R3W Qtr SW |
O T WITTENS SOUTHRIDGE
Block
003
Lot
011
|
|||
| Full Legal Description: O T WITTENS SOUTHRIDGE 003 011 |
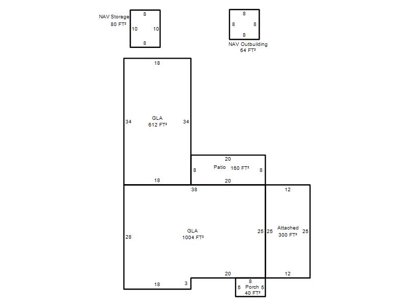
| Photo & Sketch (if available) | Comp Sales (ordered by relevancy) |
|
||||||||||||||||||
|
||||||||||||||||||||
| Value History (*The County Treasurer 405-713-1300 posts & collects actual tax amounts. Contact information HERE) | |||||||||||||
|---|---|---|---|---|---|---|---|---|---|---|---|---|---|
| Year | Market Value | Taxable Mkt Value | Gross Assessed | Exemption | Net Assessed | Millage | Est. Tax | Tax Savings | |||||
|
2026 |
150,500 |
134,284 |
14,770 |
0 |
14,770 |
119.02 |
$1,758 |
$212 |
|||||
|
2025 |
142,500 |
127,890 |
14,067 |
0 |
14,067 |
119.02 |
$1,674 |
$191 |
|||||
|
2024 |
135,500 |
121,800 |
13,398 |
0 |
13,398 |
119.70 |
$1,604 |
$180 |
|||||
|
2023 |
116,000 |
116,000 |
12,760 |
0 |
12,760 |
118.33 |
$1,510 |
$0 |
|||||
|
2022 |
116,000 |
102,532 |
11,278 |
0 |
11,278 |
112.69 |
$1,271 |
$167 |
|||||
| Property Account Status/Adjustments/Exemptions | ||
|---|---|---|
| Account # | Exemption Description | Amount |
|
R074561555 |
5% Capped Account |
0 |
| Property Deed Transaction History (Recorded in the County Clerk's Office) | |||||||
|---|---|---|---|---|---|---|---|
| Date | Type | Book | Page | Price | Grantor | Grantee | |
|
1/21/2022 |
|
Deeds |
$115,000 |
LEASE 2 OWN AMERICA LLC |
PACHECO SAMUEL VILLICANA |
||
|
6/29/2018 |
|
Deeds |
$89,000 |
DORSEY BILLIE R TRS |
LEASE 2 OWN AMERICA LLC |
||
|
6/14/2018 |
|
Deeds |
$0 |
DORSEY LARRY H JR TRS |
DORSEY BILLIE R TRS |
||
|
10/30/1992 |
|
Historical |
$0 |
DORSEY L H JR & B R |
DORSEY LARRY H JR TRS |
||
|
11/11/1911 |
|
Historical |
$0 |
|
DORSEY L H JR & B R |
||
| Last Mailed Notice of Value (N.O.V.) Information/History | ||||||||
|---|---|---|---|---|---|---|---|---|
| Year | Date | Market Value | Taxable Market Value | Gross Assessed | Exemption | Net Assessed | ||
|
2026 |
02/06/2026 |
150,500 |
134,284 |
14,770 |
0 |
14,770 |
||
|
2025 |
01/31/2025 |
142,500 |
127,890 |
14,067 |
0 |
14,067 |
||
|
2024 |
01/22/2024 |
135,500 |
121,800 |
13,398 |
0 |
13,398 |
||
|
2023 |
01/23/2023 |
116,000 |
116,000 |
12,760 |
0 |
12,760 |
||
|
2022 |
02/22/2022 |
116,000 |
102,532 |
11,278 |
0 |
11,278 |
||
| Property Building Permit History | |||||||||||
|---|---|---|---|---|---|---|---|---|---|---|---|
| Issued | Permit # | Provided by | Bldg # | Description | Est Construction Cost | Status | |||||
| No Building Permit records returned. | |||||||||||
| Click button on building number to access detailed information: | ||||||
|---|---|---|---|---|---|---|
| Bldg # | Vacant/Improved Land | Bldg Description | Year Built | SqFt | # Stories | |
|
1 |
Improved |
Ranch 1 Story |
1955 |
1,616 |
1 Stories |
|