|
|
|
| Larry Stein Oklahoma County Assessor (405) 713-1200 - Public Access System |
|
|
|
|
|
|
| Real Property Display - Screen Produced 3/13/2026 12:56:32 AM | ||||
|---|---|---|---|---|
| Account: R074506170 | Type: Residential | Location: |
1445 SW 61ST ST |
|
| Building Name/Occupant: |
|
OKLAHOMA CITY |
||
| Owner Name 1: | HIGGINS RONALD K |
Parcel PIN#: |
1716-07-450-6170 |
|
| Owner Name 2: | HIGGINS RONNIE STUART | 1/4 section #: |
1716 |
|
| Owner Name 3: | Parent Acct: |
|
||
| Billing Address: | 8512 S OLIE AVE | Tax District: |
|
|
| City, State, Zip | OKLAHOMA CITY, OK 73139 | School System: |
Oklahoma City #89 |
|
|
Country: (If noted) |
Land Size: |
0.1389 Acres |
||
|
Land Value: 21,175 |
|
|||
|
Sect 29-T11N-R3W Qtr NW |
HILLCREST HEIGHTS ADD
Block
090
Lot
031
|
|||
| Full Legal Description: HILLCREST HEIGHTS ADD 090 031 |
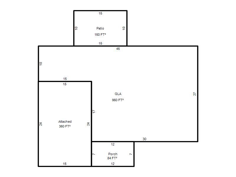
| Photo & Sketch (if available) | Comp Sales (ordered by relevancy) |
|
||||||||||||||||||
|
||||||||||||||||||||
| Value History (*The County Treasurer 405-713-1300 posts & collects actual tax amounts. Contact information HERE) | |||||||||||||
|---|---|---|---|---|---|---|---|---|---|---|---|---|---|
| Year | Market Value | Taxable Mkt Value | Gross Assessed | Exemption | Net Assessed | Millage | Est. Tax | Tax Savings | |||||
|
2025 |
127,000 |
105,840 |
11,642 |
0 |
11,642 |
119.02 |
$1,386 |
$277 |
|||||
|
2024 |
115,500 |
100,800 |
11,088 |
0 |
11,088 |
119.70 |
$1,327 |
$194 |
|||||
|
2023 |
96,000 |
96,000 |
10,560 |
0 |
10,560 |
118.33 |
$1,250 |
$0 |
|||||
|
2022 |
96,000 |
65,959 |
7,255 |
0 |
7,255 |
112.69 |
$818 |
$372 |
|||||
|
2021 |
77,500 |
62,819 |
6,910 |
1,000 |
5,910 |
112.29 |
$664 |
$294 |
|||||
| Property Account Status/Adjustments/Exemptions | ||
|---|---|---|
| Account # | Exemption Description | Amount |
|
R074506170 |
5% Capped Account |
0 |
| Property Deed Transaction History (Recorded in the County Clerk's Office) | |||||||
|---|---|---|---|---|---|---|---|
| Date | Type | Book | Page | Price | Grantor | Grantee | |
|
7/8/2022 |
|
Deeds |
$95,000 |
WARD ROBERT P |
HIGGINS RONALD K |
||
|
10/27/2021 |
|
Hmstd Off & |
$0 |
WARD ELIZABETH CHARLENE |
WARD ROBERT P |
||
|
2/18/2002 |
|
Deeds |
$0 |
WARD ELIZABETH |
WARD ELIZABETH CHARLENE |
||
|
11/11/1911 |
|
Historical |
$0 |
|
WARD ELIZABETH |
||
| Last Mailed Notice of Value (N.O.V.) Information/History | ||||||||
|---|---|---|---|---|---|---|---|---|
| Year | Date | Market Value | Taxable Market Value | Gross Assessed | Exemption | Net Assessed | ||
|
2026 |
02/06/2026 |
125,000 |
111,132 |
12,224 |
0 |
12,224 |
||
|
2025 |
01/31/2025 |
127,000 |
105,840 |
11,642 |
0 |
11,642 |
||
|
2024 |
01/22/2024 |
115,500 |
100,800 |
11,088 |
0 |
11,088 |
||
|
2023 |
01/23/2023 |
96,000 |
96,000 |
10,560 |
0 |
10,560 |
||
|
2022 |
02/22/2022 |
96,000 |
62,819 |
6,910 |
1,000 |
5,910 |
||
| Property Building Permit History | |||||||||||
|---|---|---|---|---|---|---|---|---|---|---|---|
| Issued | Permit # | Provided by | Bldg # | Description | Est Construction Cost | Status | |||||
| No Building Permit records returned. | |||||||||||
| Click button on building number to access detailed information: | ||||||
|---|---|---|---|---|---|---|
| Bldg # | Vacant/Improved Land | Bldg Description | Year Built | SqFt | # Stories | |
|
1 |
Improved |
Ranch 1 Story |
1962 |
960 |
1 Stories |
|