|
|
|
| Larry Stein Oklahoma County Assessor (405) 713-1200 - Public Access System |
|
|
|
|
|
|
| Real Property Display - Screen Produced 4/5/2026 2:04:58 AM | ||||
|---|---|---|---|---|
| Account: R148472670 | Type: Residential | Location: |
8816 LAWTON AVE |
|
| Building Name/Occupant: |
|
OKLAHOMA CITY |
||
| Owner Name 1: | GONZALEZ EDGAR BAEZ |
Parcel PIN#: |
1723-14-847-2670 |
|
| Owner Name 2: | RAMIREZ KARLA L ALVAREZ | 1/4 section #: |
1723 |
|
| Owner Name 3: | Parent Acct: |
|
||
| Billing Address: | PO BOX 1225 | Tax District: |
|
|
| City, State, Zip | BURNS FLAT, OK 73624 | School System: |
Moore #2 |
|
|
Country: (If noted) |
Land Size: |
0.1515 Acres |
||
|
Land Value: 24,420 |
|
|||
|
Sect 31-T11N-R3W Qtr SW |
P B ODOMS KROEGER HTS 2ND
Block
019
Lot
006
|
|||
| Full Legal Description: P B ODOMS KROEGER HTS 2ND 019 006 |
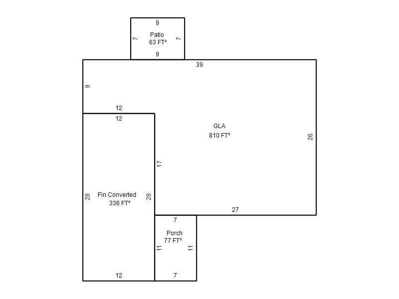
| Photo & Sketch (if available) | Comp Sales (ordered by relevancy) |
|
||||||||||||||||||
|
||||||||||||||||||||
| Value History (*The County Treasurer 405-713-1300 posts & collects actual tax amounts. Contact information HERE) | |||||||||||||
|---|---|---|---|---|---|---|---|---|---|---|---|---|---|
| Year | Market Value | Taxable Mkt Value | Gross Assessed | Exemption | Net Assessed | Millage | Est. Tax | Tax Savings | |||||
|
2026 |
131,500 |
112,289 |
12,351 |
0 |
12,351 |
120.83 |
$1,492 |
$255 |
|||||
|
2025 |
136,500 |
106,942 |
11,763 |
0 |
11,763 |
120.83 |
$1,421 |
$393 |
|||||
|
2024 |
128,500 |
101,850 |
11,203 |
0 |
11,203 |
119.82 |
$1,342 |
$351 |
|||||
|
2023 |
97,000 |
97,000 |
10,670 |
0 |
10,670 |
119.00 |
$1,270 |
$0 |
|||||
|
2022 |
97,000 |
97,000 |
10,670 |
0 |
10,670 |
121.59 |
$1,297 |
$0 |
|||||
| Property Account Status/Adjustments/Exemptions | ||
|---|---|---|
| Account # | Exemption Description | Amount |
|
R148472670 |
5% Capped Account |
0 |
| Property Deed Transaction History (Recorded in the County Clerk's Office) | |||||||
|---|---|---|---|---|---|---|---|
| Date | Type | Book | Page | Price | Grantor | Grantee | |
|
3/5/2021 |
|
Deeds |
$95,000 |
INGRAM JAMES A & PHYLLIS |
GONZALEZ EDGAR BAEZ |
||
|
10/13/1987 |
|
Historical |
$30,160 |
SECRETARY OF HOUSING |
INGRAM JAMES A & PHYLLIS |
||
|
3/23/1987 |
|
Historical |
$0 |
MOBERLY TOM H & MARY E |
SECRETARY OF HOUSING |
||
|
11/1/1981 |
|
Historical |
$0 |
|
MOBERLY TOM H & MARY E |
||
| Last Mailed Notice of Value (N.O.V.) Information/History | ||||||||
|---|---|---|---|---|---|---|---|---|
| Year | Date | Market Value | Taxable Market Value | Gross Assessed | Exemption | Net Assessed | ||
|
2026 |
02/06/2026 |
131,500 |
112,289 |
12,351 |
0 |
12,351 |
||
|
2025 |
01/31/2025 |
136,500 |
106,942 |
11,763 |
0 |
11,763 |
||
|
2024 |
01/22/2024 |
128,500 |
101,850 |
11,203 |
0 |
11,203 |
||
|
2022 |
02/22/2022 |
97,000 |
97,000 |
10,670 |
0 |
10,670 |
||
|
2021 |
02/24/2021 |
87,000 |
81,900 |
9,009 |
0 |
9,009 |
||
| Property Building Permit History | |||||||||||
|---|---|---|---|---|---|---|---|---|---|---|---|
| Issued | Permit # | Provided by | Bldg # | Description | Est Construction Cost | Status | |||||
| No Building Permit records returned. | |||||||||||
| Click button on building number to access detailed information: | ||||||
|---|---|---|---|---|---|---|
| Bldg # | Vacant/Improved Land | Bldg Description | Year Built | SqFt | # Stories | |
|
1 |
Improved |
Ranch 1 Story |
1965 |
810 |
1 Stories |
|