|
|
|
| Larry Stein Oklahoma County Assessor (405) 713-1200 - Public Access System |
|
|
|
|
|
|
| Real Property Display - Screen Produced 3/13/2026 1:03:12 AM | ||||
|---|---|---|---|---|
| Account: R074671985 | Type: Residential | Location: |
3836 SW 40TH PL |
|
| Building Name/Occupant: |
|
OKLAHOMA CITY |
||
| Owner Name 1: | SOTO FILADELFO & MARIA |
Parcel PIN#: |
1854-07-467-1985 |
|
| Owner Name 2: | 1/4 section #: |
1854 |
||
| Owner Name 3: | Parent Acct: |
|
||
| Billing Address: | 3829 SW 40TH PL | Tax District: |
|
|
| City, State, Zip | OKLAHOMA CITY, OK 73119 | School System: |
Oklahoma City #89 |
|
|
Country: (If noted) |
Land Size: |
0.1703 Acres |
||
|
Land Value: 10,759 |
|
|||
|
Sect 14-T11N-R4W Qtr SE |
CROCKER YOUNG
Block
005
Lot
010
|
|||
| Full Legal Description: CROCKER YOUNG 005 010 |
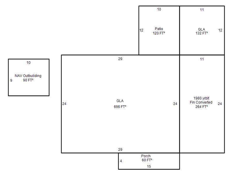
| Photo & Sketch (if available) | Comp Sales (ordered by relevancy) |
|
||||||||||||||||||
|
||||||||||||||||||||
| Value History (*The County Treasurer 405-713-1300 posts & collects actual tax amounts. Contact information HERE) | |||||||||||||
|---|---|---|---|---|---|---|---|---|---|---|---|---|---|
| Year | Market Value | Taxable Mkt Value | Gross Assessed | Exemption | Net Assessed | Millage | Est. Tax | Tax Savings | |||||
|
2025 |
73,000 |
54,600 |
6,006 |
0 |
6,006 |
119.02 |
$715 |
$241 |
|||||
|
2024 |
52,000 |
52,000 |
5,720 |
0 |
5,720 |
119.70 |
$685 |
$0 |
|||||
|
2023 |
60,500 |
43,871 |
4,825 |
0 |
4,825 |
118.33 |
$571 |
$216 |
|||||
|
2022 |
53,000 |
41,782 |
4,595 |
0 |
4,595 |
112.69 |
$518 |
$139 |
|||||
|
2021 |
44,500 |
39,793 |
4,376 |
0 |
4,376 |
112.29 |
$492 |
$58 |
|||||
| Property Account Status/Adjustments/Exemptions | ||
|---|---|---|
| Account # | Exemption Description | Amount |
|
R074671985 |
5% Capped Account |
0 |
| Property Deed Transaction History (Recorded in the County Clerk's Office) | |||||||
|---|---|---|---|---|---|---|---|
| Date | Type | Book | Page | Price | Grantor | Grantee | |
|
7/6/2023 |
|
Deeds |
$60,000 |
BLACK WALTER H JR |
SOTO FILADELFO & MARIA |
||
|
2/4/2019 |
|
Hmstd Off & |
$0 |
BLACK R H |
BLACK WALTER H JR |
||
|
2/18/1986 |
|
Historical |
$0 |
BLACK R H |
BLACK R H |
||
| Last Mailed Notice of Value (N.O.V.) Information/History | ||||||||
|---|---|---|---|---|---|---|---|---|
| Year | Date | Market Value | Taxable Market Value | Gross Assessed | Exemption | Net Assessed | ||
|
2026 |
02/06/2026 |
74,000 |
57,330 |
6,306 |
0 |
6,306 |
||
|
2025 |
01/31/2025 |
73,000 |
54,600 |
6,006 |
0 |
6,006 |
||
|
2024 |
01/22/2024 |
52,000 |
52,000 |
5,720 |
0 |
5,720 |
||
|
2023 |
01/23/2023 |
60,500 |
43,871 |
4,825 |
0 |
4,825 |
||
|
2022 |
02/22/2022 |
53,000 |
41,782 |
4,594 |
0 |
4,594 |
||
| Property Building Permit History | |||||||||||
|---|---|---|---|---|---|---|---|---|---|---|---|
| Issued | Permit # | Provided by | Bldg # | Description | Est Construction Cost | Status | |||||
| No Building Permit records returned. | |||||||||||
| Click button on building number to access detailed information: | ||||||
|---|---|---|---|---|---|---|
| Bldg # | Vacant/Improved Land | Bldg Description | Year Built | SqFt | # Stories | |
|
1 |
Improved |
Ranch 1 Story |
1954 |
828 |
1 Stories |
|