|
|
|
| Larry Stein Oklahoma County Assessor (405) 713-1200 - Public Access System |
|
|
|
|
|
|
| Real Property Display - Screen Produced 3/12/2026 8:26:02 PM | ||||
|---|---|---|---|---|
| Account: R120663870 | Type: Residential | Location: |
8313 SW 36TH ST |
|
| Building Name/Occupant: |
|
OKLAHOMA CITY |
||
| Owner Name 1: | SFR OWNER I LLC |
Parcel PIN#: |
1870-12-066-3870 |
|
| Owner Name 2: | 1/4 section #: |
1870 |
||
| Owner Name 3: | Parent Acct: |
|
||
| Billing Address: | PO BOX 130 | Tax District: |
|
|
| City, State, Zip | PORTSMOUTH, NH 03802-0069 | School System: |
Western Heights #41 |
|
|
Country: (If noted) |
Land Size: |
0.1826 Acres |
||
|
Land Value: 35,625 |
|
|||
|
Sect 18-T11N-R4W Qtr SE |
WINDS WEST
Block
015
Lot
012
|
|||
| Full Legal Description: WINDS WEST 015 012 |
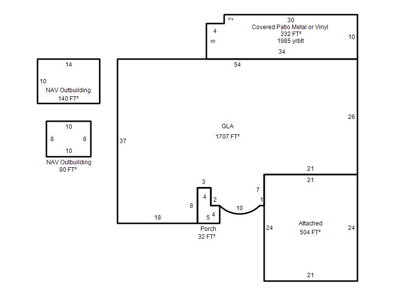
| Photo & Sketch (if available) | Comp Sales (ordered by relevancy) |
|
||||||||||||||||||
|
||||||||||||||||||||
| Value History (*The County Treasurer 405-713-1300 posts & collects actual tax amounts. Contact information HERE) | |||||||||||||
|---|---|---|---|---|---|---|---|---|---|---|---|---|---|
| Year | Market Value | Taxable Mkt Value | Gross Assessed | Exemption | Net Assessed | Millage | Est. Tax | Tax Savings | |||||
|
2025 |
221,500 |
156,500 |
17,214 |
1,000 |
16,214 |
117.97 |
$1,913 |
$961 |
|||||
|
2024 |
207,000 |
151,942 |
16,712 |
1,000 |
15,712 |
118.45 |
$1,861 |
$836 |
|||||
|
2023 |
188,500 |
147,517 |
16,226 |
1,000 |
15,226 |
116.31 |
$1,771 |
$641 |
|||||
|
2022 |
171,000 |
143,221 |
15,753 |
1,000 |
14,753 |
117.67 |
$1,736 |
$477 |
|||||
|
2021 |
149,500 |
139,050 |
15,295 |
1,000 |
14,295 |
120.74 |
$1,726 |
$260 |
|||||
| Property Account Status/Adjustments/Exemptions | ||||||
|---|---|---|---|---|---|---|
| Account # | Exemption Description | Amount | ||||
| No adjustment/exemption records returned. | ||||||
| Property Deed Transaction History (Recorded in the County Clerk's Office) | |||||||
|---|---|---|---|---|---|---|---|
| Date | Type | Book | Page | Price | Grantor | Grantee | |
|
7/10/2025 |
|
Deeds |
$217,500 |
BRADLEY ROCKY L & PENNY L |
SFR OWNER I LLC |
||
|
8/4/1998 |
|
Historical |
$79,500 |
WISER RAPLH L & DARLA K |
BRADLEY ROCKY L & PENNY L |
||
|
9/22/1988 |
|
Historical |
$50,000 |
SOCIETY FOR SAVINGS |
WISER RAPLH L & DARLA K |
||
|
3/17/1988 |
|
Historical |
$65,000 |
VICARI HENRY W II |
SOCIETY FOR SAVINGS |
||
|
4/1/1984 |
|
Historical |
$0 |
|
VICARI HENRY W II |
||
| Last Mailed Notice of Value (N.O.V.) Information/History | ||||||||
|---|---|---|---|---|---|---|---|---|
| Year | Date | Market Value | Taxable Market Value | Gross Assessed | Exemption | Net Assessed | ||
|
2026 |
02/06/2026 |
215,500 |
215,500 |
23,705 |
0 |
23,705 |
||
|
2025 |
01/31/2025 |
221,500 |
156,500 |
17,214 |
1,000 |
16,214 |
||
|
2024 |
01/22/2024 |
207,000 |
151,942 |
16,712 |
1,000 |
15,712 |
||
|
2023 |
01/23/2023 |
188,500 |
147,517 |
16,226 |
1,000 |
15,226 |
||
|
2022 |
02/22/2022 |
171,000 |
143,221 |
15,753 |
1,000 |
14,753 |
||
| Property Building Permit History | |||||||||||
|---|---|---|---|---|---|---|---|---|---|---|---|
| Issued | Permit # | Provided by | Bldg # | Description | Est Construction Cost | Status | |||||
| No Building Permit records returned. | |||||||||||
| Click button on building number to access detailed information: | ||||||
|---|---|---|---|---|---|---|
| Bldg # | Vacant/Improved Land | Bldg Description | Year Built | SqFt | # Stories | |
|
1 |
Improved |
Ranch 1 Story |
1983 |
1,707 |
1 Stories |
|