|
|
|
| Larry Stein Oklahoma County Assessor (405) 713-1200 - Public Access System |
|
|
|
|
|
|
| Real Property Display - Screen Produced 3/12/2026 8:23:27 PM | ||||
|---|---|---|---|---|
| Account: R141415560 | Type: Residential | Location: |
7717 DUDLEY ST |
|
| Building Name/Occupant: |
|
OKLAHOMA CITY |
||
| Owner Name 1: | NOBLE RYAN WESLEY & KELLY MICHELE |
Parcel PIN#: |
1915-14-141-5560 |
|
| Owner Name 2: | 1/4 section #: |
1915 |
||
| Owner Name 3: | Parent Acct: |
|
||
| Billing Address: | PO BOX 24 | Tax District: |
|
|
| City, State, Zip | WHEATLAND, OK 73097 | School System: |
Western Heights #41 |
|
|
Country: (If noted) |
Land Size: |
6.0018 Acres |
||
|
Land Value: 219,084 |
|
|||
|
Sect 29-T11N-R4W Qtr SW |
UNPLTD PT SEC 29 11N 4W
Block
000
Lot
000
|
|||
| Full Legal Description: UNPLTD PT SEC 29 11N 4W 000 000 PT OF SW4 SEC 29 11N 4W BEG 632FT W OF NE/C OF SW4 TH W688FT S380FT E688FT N380FT TO BEG |
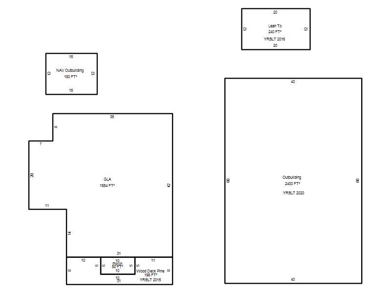
| Photo & Sketch (if available) | Comp Sales (ordered by relevancy) |
|
||||||||||||||||||
|
||||||||||||||||||||
| Value History (*The County Treasurer 405-713-1300 posts & collects actual tax amounts. Contact information HERE) | |||||||||||||
|---|---|---|---|---|---|---|---|---|---|---|---|---|---|
| Year | Market Value | Taxable Mkt Value | Gross Assessed | Exemption | Net Assessed | Millage | Est. Tax | Tax Savings | |||||
|
2025 |
375,500 |
375,500 |
41,305 |
1,000 |
40,305 |
117.97 |
$4,755 |
$118 |
|||||
|
2024 |
370,500 |
212,514 |
23,375 |
1,000 |
22,375 |
118.45 |
$2,651 |
$2,177 |
|||||
|
2023 |
331,000 |
206,325 |
22,695 |
1,000 |
21,695 |
116.31 |
$2,523 |
$1,711 |
|||||
|
2022 |
276,000 |
200,316 |
22,034 |
1,000 |
21,034 |
117.67 |
$2,475 |
$1,097 |
|||||
|
2021 |
213,500 |
168,268 |
18,509 |
1,000 |
17,509 |
120.74 |
$2,114 |
$721 |
|||||
| Property Account Status/Adjustments/Exemptions | ||
|---|---|---|
| Account # | Exemption Description | Amount |
|
R141415560 |
3% Cap Homestead |
0 |
|
R141415560 |
Homestead |
1,000 |
| Property Deed Transaction History (Recorded in the County Clerk's Office) | ||||||||||
|---|---|---|---|---|---|---|---|---|---|---|
| Date | Type | Book | Page | Price | Grantor | Grantee | ||||
|
8/29/2024 |
|
Deeds |
$325,000 |
BARTA NATHAN W & REBECCA A |
NOBLE RYAN WESLEY & KELLY MICHELE |
|||||
|
1/2/2015 |
|
Deeds |
$0 |
TURNER GREG & BECKY WOLF BARTA RECBECCA A & NATHAN WILLIAM |
BARTA NATHAN W & REBECCA A |
|||||
|
5/15/2013 |
|
Deeds |
$0 |
BARTA BECKY BARTA NATHAN |
BARTA NATHAN W & REBECCA A |
|||||
|
4/30/2013 |
|
Other |
$0 |
TURNER GREG TURNER BECKY |
BARTA BECKY BARTA NATHAN |
|||||
|
10/18/2011 |
|
Deeds |
$40,000 |
PAULSON RICHARD R & ROBIN G REVOCABLE LIVING TRUST |
TURNER GREG TURNER BECKY |
|||||
| Last Mailed Notice of Value (N.O.V.) Information/History | ||||||||
|---|---|---|---|---|---|---|---|---|
| Year | Date | Market Value | Taxable Market Value | Gross Assessed | Exemption | Net Assessed | ||
|
2025 |
01/31/2025 |
375,500 |
375,500 |
41,305 |
1,000 |
40,305 |
||
|
2024 |
01/22/2024 |
370,500 |
212,514 |
23,375 |
1,000 |
22,375 |
||
|
2023 |
01/23/2023 |
331,000 |
206,325 |
22,695 |
1,000 |
21,695 |
||
|
2022 |
02/22/2022 |
276,000 |
200,316 |
22,034 |
1,000 |
21,034 |
||
|
2021 |
02/24/2021 |
213,500 |
168,268 |
18,509 |
1,000 |
17,509 |
||
| Property Building Permit History | ||||||
|---|---|---|---|---|---|---|
| Issued | Permit # | Provided by | Bldg # | Description | Est Construction Cost | Status |
|
1/7/2020 |
|
|
1 |
Storage Buil |
30,000 |
Inactive |
|
11/30/2012 |
10447211 |
OKLAHOMA CITY |
1 |
Remodeled |
8,000 |
Inactive |
|
8/1/2002 |
10234357 |
OKLAHOMA CITY |
1 |
Demolish |
0 |
Inactive |
| Click button on building number to access detailed information: | ||||||
|---|---|---|---|---|---|---|
| Bldg # | Vacant/Improved Land | Bldg Description | Year Built | SqFt | # Stories | |
|
1 |
Improved |
Ranch 1 Story |
1960 |
1,554 |
1 Stories |
|