|
|
|
| Larry Stein Oklahoma County Assessor (405) 713-1200 - Public Access System |
|
|
|
|
|
|
| Real Property Display - Screen Produced 2/27/2026 8:45:50 AM | ||||
|---|---|---|---|---|
| Account: R260084020 | Type: Residential | Location: |
17907 NE 50TH ST |
|
| Building Name/Occupant: |
|
UNINCORPORATED |
||
| Owner Name 1: | VAN DERWARKER TIMOTHY C |
Parcel PIN#: |
2030-26-008-4020 |
|
| Owner Name 2: | KLIPPSTEIN KARLENE J | 1/4 section #: |
2030 |
|
| Owner Name 3: | Parent Acct: |
|
||
| Billing Address: | 17907 NE 50TH ST | Tax District: |
|
|
| City, State, Zip | CHOCTAW, OK 73020 | School System: |
Harrah #7 |
|
|
Country: (If noted) |
Land Size: |
2.5000 Acres |
||
|
Land Value: 65,998 |
|
|||
|
Sect 8-T12N-R1E Qtr SE |
ELK TOWNSHIP
Block
000
Lot
000
|
|||
| Full Legal Description: ELK TOWNSHIP 000 000 PT SE4 SEC 8 12N 1E E 1/2 OF W 1/2 OF SE4 OF SE4 OF SE4 |
| Photo & Sketch (if available) | Comp Sales (ordered by relevancy) |
|
||||||||||||||||||
|
||||||||||||||||||||
| Value History (*The County Treasurer 405-713-1300 posts & collects actual tax amounts. Contact information HERE) | |||||||||||||
|---|---|---|---|---|---|---|---|---|---|---|---|---|---|
| Year | Market Value | Taxable Mkt Value | Gross Assessed | Exemption | Net Assessed | Millage | Est. Tax | Tax Savings | |||||
|
2025 |
234,000 |
167,091 |
18,379 |
1,000 |
17,379 |
107.54 |
$1,869 |
$899 |
|||||
|
2024 |
208,000 |
162,225 |
17,844 |
0 |
17,844 |
110.62 |
$1,974 |
$557 |
|||||
|
2023 |
154,500 |
154,500 |
16,995 |
0 |
16,995 |
97.88 |
$1,663 |
$0 |
|||||
|
2022 |
154,500 |
154,500 |
16,995 |
0 |
16,995 |
99.50 |
$1,691 |
$0 |
|||||
|
2021 |
176,000 |
159,075 |
17,498 |
0 |
17,498 |
99.52 |
$1,741 |
$185 |
|||||
| Property Account Status/Adjustments/Exemptions | ||
|---|---|---|
| Account # | Exemption Description | Amount |
|
R260084020 |
Homestead |
1,000 |
|
R260084020 |
3% Cap Homestead |
0 |
| Property Deed Transaction History (Recorded in the County Clerk's Office) | ||||||||||
|---|---|---|---|---|---|---|---|---|---|---|
| Date | Type | Book | Page | Price | Grantor | Grantee | ||||
|
7/27/2021 |
|
Deeds |
$150,000 |
XAYADETH SONLAVANH |
VAN DERWARKER TIMOTHY C |
|||||
|
10/19/2009 |
|
Deeds |
$97,000 |
WALLER IRENE W |
XAYADETH SONLAVANH |
|||||
|
12/14/2004 |
|
Deeds |
$0 |
WALLER BOBBIE D |
WALLER IRENE W |
|||||
|
3/5/1990 |
|
Historical |
$0 |
TINKER CREDIT UNION |
WALLER BOBBIE D & IRENE W |
|||||
|
11/27/1989 |
|
Historical |
$0 |
LAWSON RICKEY & JOAN |
TINKER CREDIT UNION |
|||||
| Last Mailed Notice of Value (N.O.V.) Information/History | ||||||||
|---|---|---|---|---|---|---|---|---|
| Year | Date | Market Value | Taxable Market Value | Gross Assessed | Exemption | Net Assessed | ||
|
2026 |
02/06/2026 |
234,500 |
172,103 |
18,931 |
1,000 |
17,931 |
||
|
2025 |
01/31/2025 |
234,000 |
170,336 |
18,736 |
0 |
18,736 |
||
|
2024 |
01/22/2024 |
208,000 |
162,225 |
17,844 |
0 |
17,844 |
||
|
2021 |
02/24/2021 |
176,000 |
159,075 |
17,498 |
0 |
17,498 |
||
|
2019 |
02/26/2019 |
163,000 |
157,500 |
17,325 |
0 |
17,325 |
||
| Property Building Permit History | |||||||||||
|---|---|---|---|---|---|---|---|---|---|---|---|
| Issued | Permit # | Provided by | Bldg # | Description | Est Construction Cost | Status | |||||
| No Building Permit records returned. | |||||||||||
| Click button on building number to access detailed information: | ||||||
|---|---|---|---|---|---|---|
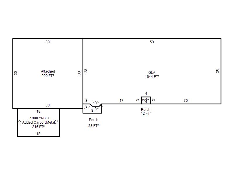
| Bldg # | Vacant/Improved Land | Bldg Description | Year Built | SqFt | # Stories | |
|
1 |
Improved |
Ranch 1 Story |
1977 |
1,644 |
1 Stories |
|