|
|
|
| Larry Stein Oklahoma County Assessor (405) 713-1200 - Public Access System |
|
|
|
|
|
|
| Real Property Display - Screen Produced 2/27/2026 5:13:52 AM | ||||
|---|---|---|---|---|
| Account: R260172000 | Type: Residential | Location: |
17494 NE 50TH ST |
|
| Building Name/Occupant: |
|
UNINCORPORATED |
||
| Owner Name 1: | FINLEY JARRED |
Parcel PIN#: |
2065-26-017-2000 |
|
| Owner Name 2: | FINLEY REBEKAH | 1/4 section #: |
2065 |
|
| Owner Name 3: | Parent Acct: |
|
||
| Billing Address: | 17494 NE 50TH ST | Tax District: |
|
|
| City, State, Zip | CHOCTAW, OK 73020-9406 | School System: |
Harrah #7 |
|
|
Country: (If noted) |
Land Size: |
5.0000 Acres |
||
|
Land Value: 100,653 |
|
|||
|
Sect 17-T12N-R1E Qtr NE |
ELK TOWNSHIP
Block
000
Lot
000
|
|||
| Full Legal Description: ELK TOWNSHIP 000 000 PT NE4 SEC 17 12N 1E BEG 1559.86FT W OF NE/C NE4 TH W682.69FT TO CENTER LINE OF RIVER TH SE203.60FT SE303.87FT SE144.36FT SE97.36FT NE357.79FT NW293.76FT TO BEG CONT 5ACRS MORE OR LESS |
| Photo & Sketch (if available) | Comp Sales (ordered by relevancy) |
|
||||||||||||||||||
|
||||||||||||||||||||
| Value History (*The County Treasurer 405-713-1300 posts & collects actual tax amounts. Contact information HERE) | |||||||||||||
|---|---|---|---|---|---|---|---|---|---|---|---|---|---|
| Year | Market Value | Taxable Mkt Value | Gross Assessed | Exemption | Net Assessed | Millage | Est. Tax | Tax Savings | |||||
|
2025 |
317,000 |
289,800 |
31,878 |
0 |
31,878 |
107.54 |
$3,428 |
$322 |
|||||
|
2024 |
276,000 |
276,000 |
30,360 |
0 |
30,360 |
110.62 |
$3,358 |
$0 |
|||||
|
2023 |
276,000 |
262,500 |
28,875 |
0 |
28,875 |
97.88 |
$2,826 |
$145 |
|||||
|
2022 |
250,000 |
250,000 |
27,500 |
0 |
27,500 |
99.50 |
$2,736 |
$0 |
|||||
|
2021 |
224,500 |
202,650 |
22,291 |
0 |
22,291 |
99.52 |
$2,218 |
$239 |
|||||
| Property Account Status/Adjustments/Exemptions | ||
|---|---|---|
| Account # | Exemption Description | Amount |
|
R260172000 |
5% Capped Account |
0 |
| Property Deed Transaction History (Recorded in the County Clerk's Office) | ||||||||||
|---|---|---|---|---|---|---|---|---|---|---|
| Date | Type | Book | Page | Price | Grantor | Grantee | ||||
|
11/3/2023 |
|
Deeds |
$239,000 |
17494 NE 50TH ST LLC |
FINLEY JARRED |
|||||
|
6/11/2021 |
|
Deeds |
$188,000 |
CAMARGO JEREMY RYAN & ANDREA MARIE |
17494 NE 50TH ST LLC |
|||||
|
10/12/2017 |
|
Deeds |
$0 |
CAMARGO JEREMY RYAN |
CAMARGO JEREMY RYAN & ANDREA MARIE |
|||||
|
1/5/2007 |
|
Deeds |
$154,000 |
COUCH CARY W & MIKKI |
CAMARGO JEREMY RYAN |
|||||
|
11/20/2006 |
|
Deeds |
$0 |
COUCH CARY W & MIKKI |
COUCH CARY W & MIKKI |
|||||
| Last Mailed Notice of Value (N.O.V.) Information/History | ||||||||
|---|---|---|---|---|---|---|---|---|
| Year | Date | Market Value | Taxable Market Value | Gross Assessed | Exemption | Net Assessed | ||
|
2026 |
02/06/2026 |
310,000 |
304,290 |
33,471 |
0 |
33,471 |
||
|
2025 |
01/31/2025 |
317,000 |
289,800 |
31,878 |
0 |
31,878 |
||
|
2024 |
01/22/2024 |
276,000 |
276,000 |
30,360 |
0 |
30,360 |
||
|
2023 |
01/23/2023 |
276,000 |
262,500 |
28,875 |
0 |
28,875 |
||
|
2022 |
02/22/2022 |
250,000 |
250,000 |
27,500 |
0 |
27,500 |
||
| Property Building Permit History | |||||||||||
|---|---|---|---|---|---|---|---|---|---|---|---|
| Issued | Permit # | Provided by | Bldg # | Description | Est Construction Cost | Status | |||||
| No Building Permit records returned. | |||||||||||
| Click button on building number to access detailed information: | ||||||
|---|---|---|---|---|---|---|
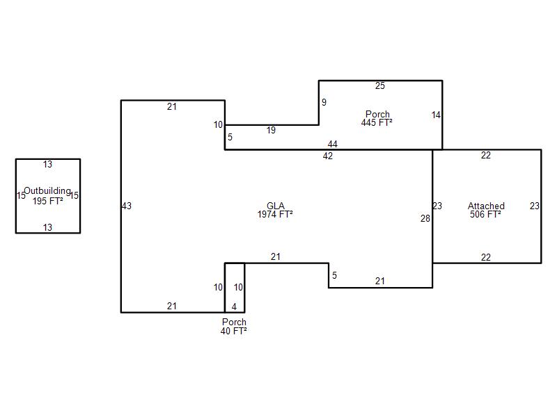
| Bldg # | Vacant/Improved Land | Bldg Description | Year Built | SqFt | # Stories | |
|
1 |
Improved |
Ranch 1 Story |
1982 |
1,974 |
1 Stories |
|