|
|
|
| Larry Stein Oklahoma County Assessor (405) 713-1200 - Public Access System |
|
|
|
|
|
|
| Real Property Display - Screen Produced 2/27/2026 3:34:56 AM | ||||
|---|---|---|---|---|
| Account: R194351500 | Type: Residential | Location: |
2518 MAPLE DR |
|
| Building Name/Occupant: |
|
HARRAH |
||
| Owner Name 1: | ROBERTS MARIA P |
Parcel PIN#: |
2083-19-435-1500 |
|
| Owner Name 2: | 1/4 section #: |
2083 |
||
| Owner Name 3: | Parent Acct: |
|
||
| Billing Address: | 2518 MAPLE DR | Tax District: |
|
|
| City, State, Zip | HARRAH, OK 73045 | School System: |
Harrah #7 |
|
|
Country: (If noted) |
Land Size: |
0.8243 Acres |
||
|
Land Value: 24,729 |
|
|||
|
Sect 21-T12N-R1E Qtr SW |
ANDERSON HILLS
Block
002
Lot
016
|
|||
| Full Legal Description: ANDERSON HILLS 002 016 |
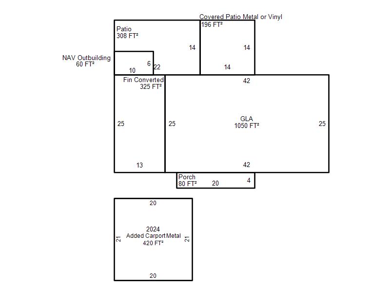
| Photo & Sketch (if available) | Comp Sales (ordered by relevancy) |
|
||||||||||||||||||
|
||||||||||||||||||||
| Value History (*The County Treasurer 405-713-1300 posts & collects actual tax amounts. Contact information HERE) | |||||||||||||
|---|---|---|---|---|---|---|---|---|---|---|---|---|---|
| Year | Market Value | Taxable Mkt Value | Gross Assessed | Exemption | Net Assessed | Millage | Est. Tax | Tax Savings | |||||
|
2025 |
195,000 |
170,980 |
18,807 |
1,000 |
17,807 |
107.54 |
$1,915 |
$392 |
|||||
|
2024 |
166,000 |
166,000 |
18,260 |
0 |
18,260 |
110.62 |
$2,020 |
$0 |
|||||
|
2023 |
160,500 |
160,500 |
17,655 |
0 |
17,655 |
97.88 |
$1,728 |
$0 |
|||||
|
2022 |
148,000 |
118,518 |
13,036 |
0 |
13,036 |
99.50 |
$1,297 |
$323 |
|||||
|
2021 |
127,000 |
112,875 |
12,416 |
0 |
12,416 |
99.52 |
$1,236 |
$155 |
|||||
| Property Account Status/Adjustments/Exemptions | ||
|---|---|---|
| Account # | Exemption Description | Amount |
|
R194351500 |
Homestead |
1,000 |
|
R194351500 |
3% Cap Homestead |
0 |
| Property Deed Transaction History (Recorded in the County Clerk's Office) | |||||||
|---|---|---|---|---|---|---|---|
| Date | Type | Book | Page | Price | Grantor | Grantee | |
|
9/6/2022 |
|
Deeds |
$147,000 |
MOSS LESTER |
ROBERTS MARIA P |
||
|
1/25/2008 |
|
Deeds |
$91,000 |
WILLIAMS JIMMY L & JOYCE R |
MOSS LESTER |
||
|
1/1/1980 |
|
Historical |
$0 |
|
WILLIAMS JIMMY L & JOYCE R |
||
| Last Mailed Notice of Value (N.O.V.) Information/History | ||||||||
|---|---|---|---|---|---|---|---|---|
| Year | Date | Market Value | Taxable Market Value | Gross Assessed | Exemption | Net Assessed | ||
|
2025 |
01/31/2025 |
195,000 |
170,980 |
18,807 |
1,000 |
17,807 |
||
|
2024 |
01/22/2024 |
166,000 |
166,000 |
18,260 |
0 |
18,260 |
||
|
2023 |
01/23/2023 |
160,500 |
160,500 |
17,655 |
0 |
17,655 |
||
|
2022 |
02/22/2022 |
148,000 |
118,518 |
13,036 |
0 |
13,036 |
||
|
2021 |
02/24/2021 |
127,000 |
112,875 |
12,416 |
0 |
12,416 |
||
| Property Building Permit History | |||||||||||
|---|---|---|---|---|---|---|---|---|---|---|---|
| Issued | Permit # | Provided by | Bldg # | Description | Est Construction Cost | Status | |||||
| No Building Permit records returned. | |||||||||||
| Click button on building number to access detailed information: | ||||||
|---|---|---|---|---|---|---|
| Bldg # | Vacant/Improved Land | Bldg Description | Year Built | SqFt | # Stories | |
|
1 |
Improved |
Ranch 1 Story |
1976 |
1,050 |
1 Stories |
|