|
|
|
| Larry Stein Oklahoma County Assessor (405) 713-1200 - Public Access System |
|
|
|
|
|
|
| Real Property Display - Screen Produced 3/19/2026 12:32:38 AM | ||||
|---|---|---|---|---|
| Account: R197971670 | Type: Residential | Location: |
17620 NE 12TH ST |
|
| Building Name/Occupant: |
|
HARRAH |
||
| Owner Name 1: | SHOLLY BENJAMIN E |
Parcel PIN#: |
2114-19-797-1670 |
|
| Owner Name 2: | SHOLLY CLARISSA G | 1/4 section #: |
2114 |
|
| Owner Name 3: | Parent Acct: |
|
||
| Billing Address: | 17620 NE 12TH ST | Tax District: |
|
|
| City, State, Zip | CHOCTAW, OK 73020 | School System: |
Choctaw #4 |
|
|
Country: (If noted) |
UNITED STATES |
Land Size: |
1.8200 Acres |
|
|
Land Value: 53,526 |
|
|||
|
Sect 29-T12N-R1E Qtr SE |
GILLESPIE ESTATES 2ND
Block
002
Lot
000
|
|||
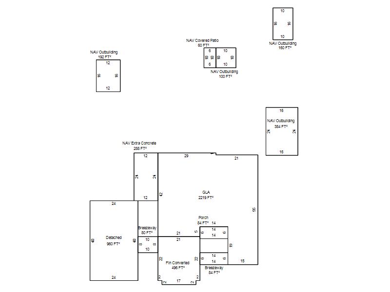
| Full Legal Description: GILLESPIE ESTATES 2ND 002 000 LOTS 34 & 35 |
| Photo & Sketch (if available) | Comp Sales (ordered by relevancy) |
|
||||||||||||||||||
|
||||||||||||||||||||
| Value History (*The County Treasurer 405-713-1300 posts & collects actual tax amounts. Contact information HERE) | |||||||||||||
|---|---|---|---|---|---|---|---|---|---|---|---|---|---|
| Year | Market Value | Taxable Mkt Value | Gross Assessed | Exemption | Net Assessed | Millage | Est. Tax | Tax Savings | |||||
|
2025 |
315,000 |
232,627 |
25,588 |
0 |
25,588 |
117.21 |
$2,999 |
$1,062 |
|||||
|
2024 |
236,000 |
221,550 |
24,370 |
0 |
24,370 |
116.35 |
$2,836 |
$185 |
|||||
|
2023 |
211,000 |
211,000 |
23,210 |
0 |
23,210 |
117.10 |
$2,718 |
$0 |
|||||
|
2022 |
238,000 |
168,331 |
18,516 |
1,000 |
17,516 |
115.17 |
$2,017 |
$998 |
|||||
|
2021 |
181,500 |
163,429 |
17,976 |
1,000 |
16,976 |
115.06 |
$1,953 |
$344 |
|||||
| Property Account Status/Adjustments/Exemptions | ||
|---|---|---|
| Account # | Exemption Description | Amount |
|
R197971670 |
Homestead |
1,000 |
|
R197971670 |
3% Cap Homestead |
0 |
| Property Deed Transaction History (Recorded in the County Clerk's Office) | ||||||||||
|---|---|---|---|---|---|---|---|---|---|---|
| Date | Type | Book | Page | Price | Grantor | Grantee | ||||
|
5/20/2022 |
|
Deeds |
$210,000 |
LEONARD GREG |
SHOLLY BENJAMIN E |
|||||
|
7/25/2008 |
|
Deeds |
$0 |
LEONARD GREG |
LEONARD GREG |
|||||
|
5/7/2008 |
|
Mult Parcel |
$110,000 |
WM SPECIALTY MORTGAGE LLC |
LEONARD GREG |
|||||
|
6/27/2007 |
|
Hmstd Off & |
$0 |
MCCURLEY DAVID B & NYLA J |
WM SPECIALTY MORTGAGE LLC |
|||||
|
8/10/1987 |
|
Historical |
$0 |
CREDITHRIFT OF AMERICA INC |
MCCURLEY DAVID B & NYLA J |
|||||
| Last Mailed Notice of Value (N.O.V.) Information/History | ||||||||
|---|---|---|---|---|---|---|---|---|
| Year | Date | Market Value | Taxable Market Value | Gross Assessed | Exemption | Net Assessed | ||
|
2026 |
02/06/2026 |
329,500 |
244,258 |
26,867 |
0 |
26,867 |
||
|
2025 |
01/31/2025 |
315,000 |
232,627 |
25,588 |
0 |
25,588 |
||
|
2024 |
01/22/2024 |
236,000 |
221,550 |
24,370 |
0 |
24,370 |
||
|
2023 |
01/23/2023 |
211,000 |
211,000 |
23,210 |
0 |
23,210 |
||
|
2022 |
02/22/2022 |
238,000 |
168,331 |
18,515 |
1,000 |
17,515 |
||
| Property Building Permit History | ||||||
|---|---|---|---|---|---|---|
| Issued | Permit # | Provided by | Bldg # | Description | Est Construction Cost | Status |
|
10/29/2008 |
10361154 |
OKLAHOMA CITY |
1 |
Remodeled |
0 |
Inactive |
|
9/12/1994 |
10263785 |
HARRAH |
1 |
Storage Buil |
1,200 |
Inactive |
| Click button on building number to access detailed information: | ||||||
|---|---|---|---|---|---|---|
| Bldg # | Vacant/Improved Land | Bldg Description | Year Built | SqFt | # Stories | |
|
1 |
Improved |
Ranch 1 Story |
1974 |
2,219 |
1 Stories |
|