|
|
|
| Larry Stein Oklahoma County Assessor (405) 713-1200 - Public Access System |
|
|
|
|
|
|
| Real Property Display - Screen Produced 3/12/2026 9:26:08 PM | ||||
|---|---|---|---|---|
| Account: R252118005 | Type: Residential | Location: |
2600 HARDIN DR |
|
| Building Name/Occupant: |
|
UNINCORPORATED |
||
| Owner Name 1: | GUNDRY MARK & DEJOHNNA |
Parcel PIN#: |
1243-25-211-8005 |
|
| Owner Name 2: | 1/4 section #: |
1243 |
||
| Owner Name 3: | Parent Acct: |
|
||
| Billing Address: | PO BOX 4 | Tax District: |
|
|
| City, State, Zip | SUMMIT, AR 72677-0004 | School System: |
Choctaw #4 |
|
|
Country: (If noted) |
Land Size: |
2.5000 Acres |
||
|
Land Value: 38,509 |
|
|||
|
Sect 11-T11N-R1W Qtr SW |
CASS TOWNSHIP
Block
000
Lot
000
|
|||
| Full Legal Description: CASS TOWNSHIP PT SW4 SEC 11 11N 1W S 1/2 OF E 1/2 OF SE4 OF NE4 OF SW4 OR S 1/2 OF TR 11 CONT 2 1/2ACRS MORE OR LESS |
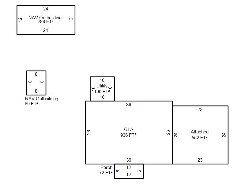
| Photo & Sketch (if available) | Comp Sales (ordered by relevancy) |
|
||||||||||||||||||
|
||||||||||||||||||||
| Value History (*The County Treasurer 405-713-1300 posts & collects actual tax amounts. Contact information HERE) | |||||||||||||
|---|---|---|---|---|---|---|---|---|---|---|---|---|---|
| Year | Market Value | Taxable Mkt Value | Gross Assessed | Exemption | Net Assessed | Millage | Est. Tax | Tax Savings | |||||
|
2025 |
161,000 |
129,654 |
14,261 |
0 |
14,261 |
117.21 |
$1,672 |
$404 |
|||||
|
2024 |
152,000 |
123,480 |
13,582 |
0 |
13,582 |
116.35 |
$1,580 |
$365 |
|||||
|
2023 |
141,500 |
117,600 |
12,936 |
0 |
12,936 |
117.10 |
$1,515 |
$308 |
|||||
|
2022 |
112,000 |
112,000 |
12,320 |
0 |
12,320 |
115.17 |
$1,419 |
$0 |
|||||
|
2021 |
111,500 |
111,500 |
12,265 |
0 |
12,265 |
115.06 |
$1,411 |
$0 |
|||||
| Property Account Status/Adjustments/Exemptions | ||||||
|---|---|---|---|---|---|---|
| Account # | Exemption Description | Amount | ||||
| No adjustment/exemption records returned. | ||||||
| Property Deed Transaction History (Recorded in the County Clerk's Office) | ||||||||||
|---|---|---|---|---|---|---|---|---|---|---|
| Date | Type | Book | Page | Price | Grantor | Grantee | ||||
|
6/13/2025 |
|
Deeds |
$185,000 |
HART JIMMY D & KARIN K KELLY |
GUNDRY MARK & DEJOHNNA |
|||||
|
5/8/2019 |
|
Deeds |
$117,000 |
OMEGA INVESTMENTS LLC |
HART JIMMY D & KARIN K KELLY |
|||||
|
4/18/2018 |
|
Deeds |
$50,000 |
DEUTSCHE BANK NATIONAL TRUST COMPANY |
OMEGA INVESTMENTS LLC |
|||||
|
12/19/2017 |
|
Deeds |
$49,000 |
BAXTER DAVID W & KIMBERLY J |
DEUTSCHE BANK NATIONAL TRUST COMPANY |
|||||
|
6/30/2004 |
|
Deeds |
$40,000 |
IYAYE BRIGHT A |
BAXTER DAVID W & KIMBERLY J |
|||||
| Last Mailed Notice of Value (N.O.V.) Information/History | ||||||||
|---|---|---|---|---|---|---|---|---|
| Year | Date | Market Value | Taxable Market Value | Gross Assessed | Exemption | Net Assessed | ||
|
2026 |
02/06/2026 |
165,000 |
165,000 |
18,150 |
0 |
18,150 |
||
|
2025 |
01/31/2025 |
161,000 |
129,654 |
14,261 |
0 |
14,261 |
||
|
2024 |
01/22/2024 |
152,000 |
123,480 |
13,582 |
0 |
13,582 |
||
|
2023 |
01/23/2023 |
141,500 |
117,600 |
12,936 |
0 |
12,936 |
||
|
2022 |
02/22/2022 |
112,000 |
112,000 |
12,320 |
0 |
12,320 |
||
| Property Building Permit History | |||||||||||
|---|---|---|---|---|---|---|---|---|---|---|---|
| Issued | Permit # | Provided by | Bldg # | Description | Est Construction Cost | Status | |||||
| No Building Permit records returned. | |||||||||||
| Click button on building number to access detailed information: | ||||||
|---|---|---|---|---|---|---|
| Bldg # | Vacant/Improved Land | Bldg Description | Year Built | SqFt | # Stories | |
|
1 |
Improved |
Ranch 1 Story |
1953 |
936 |
1 Stories |
|